Druell Way, Alconbury Weald

£2,200pcm

4 Bedroom House for rent in Huntingdon

1 4 2
  • Detached Family Home.
  • Four Bedrooms.
  • En-suite Shower Room to Primary Bedroom.
  • Driveway Parkway and Enclosed Rear Garden.
  • Popular Alconbury Weald Development.
  • Close Proximity to A1 and RAF Alconbury.
  • Gas Central Heating.
  • UPVC Double Glazing.
  • Available: End of October 2025.
  • EPC: B.



Located in the sought after Alconbury Weald development is this modern detached family home. The property boasts, integrated appliances, four bedrooms with EN-SUITE shower room to primary bedroom, enclosed rear garden, driveway parking and provides excellent access to the A1 road network and RAF Alconbury.

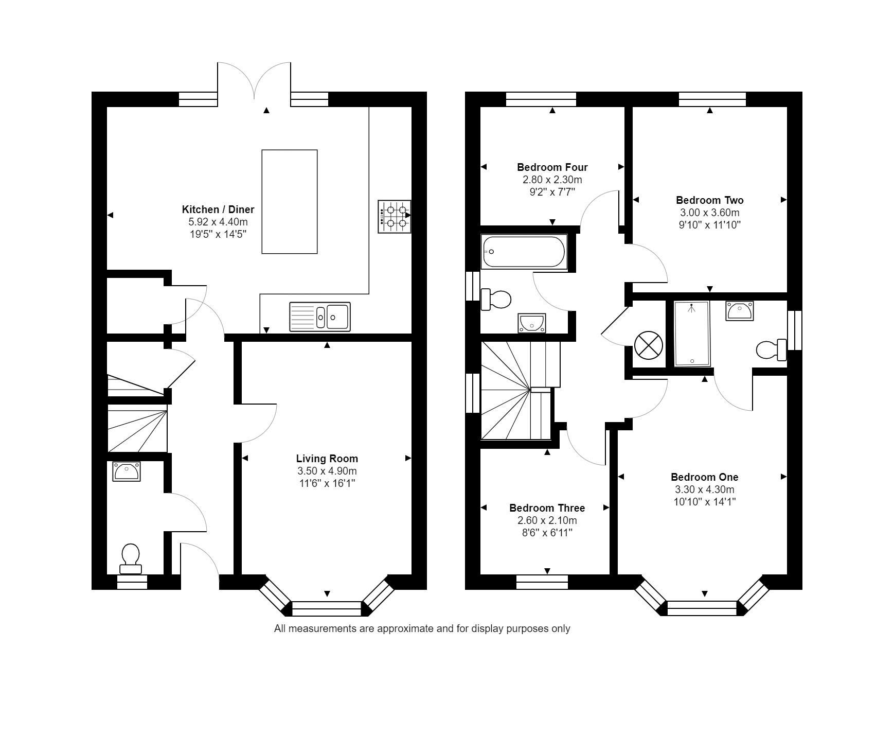
ENTRANCE HALL

Front entry door. Under stairs storage cupboard.

CLOAKROOM

Fitted with a two-piece suite comprising WC with low level cistern and wash hand basin. Obscure UPVC window to front elevation.

LOUNGE

UPVC bay window to front elevation.

KITCHEN/DINER

Fitted with a range of wall mounted and base units with worksurface over. Kitchen centre island. Integrated double electric oven. Integrated fridge/freezer/ Integrated dishwasher. Four-ring gas hob with cooker extractor over. Sink and drainer unit. Cupboard housing washing machine. UPVC patio doors to rear elevation leading in to garden.

STAIRS AND LANDING

UPVC window to side elevation. Airing cupboard.

BEDROOM ONE

UPVC bay window to front elevation.

EN-SUITE

Fitted with a three-piece suite comprising shower enclosure, WC with low level cistern and wash hand basin. Chrome heated towel rail. Obscure UPVC window to side elevation.

BEDROOM TWO

UPVC window to rear elevation.

BEDROOM THREE

UPVC window to front elevation.

BEDROOM FOUR

UPVC window to rear elevation.

BATHROOM

Fitted with a three-piece suite comprising panelled bath with shower over, WC with low level cistern and wash hand basin. Chrome heated towel rail. Obscure UPVC window to side elevation.

EXTERNAL

To the side of the property is off-road driveway parking for two/three vehicles. Side gated access leads to the enclosed rear garden which is laid mainly to lawn with patio seating area. Please note that the garage does not form part of the let.

PETS

Sorry, no pets at this property.

SECURITY DEPOSIT

£2538.00

COUNCIL TAX

Band

REFERENCING AND HOLDING DEPOSIT

Each applicant over the age of 18 years old will be required to be referenced and will be required to provide photographic identification and proof of address/residency. A holding deposit of one weeks rent will be requested at point of application. Until payment has been received viewings will continue on the property. Should the tenancy then not proceed due to the decision of ourselves as agent or the Landlord then this will be repaid to you in full. A decision on this will be made within 15 days of the payment being made and the holding fee returned to you within 7 days of the decision being made not to proceed. This payment though will not be refunded in the event that you withdraw your application to rent the property, you fail your right to rent checks or you provide false or misleading information on your application form leading to the application failing. Should the tenancy proceed as planned then this holding charge will be converted in to part payment of the security deposit for the tenancy.

AGENTS NOTES

These particulars whilst believed to be correct at time of publishing should be used as a guide only. Any electrical items other than those used for heating, lighting or cooking are provided on the understanding that the Landlord will not be held liable for their repair or replacement should they breakdown unless otherwise agreed.

Property Ref: EAXML13152_12451234

Share:

Similar Properties

North Road, Alconbury Weston

3 Bedroom House | £1,800pcm

An extended and improved family home with stunning open countryside views from the nearly 200ft rear garden. The proper...

Arundel Road, Hartford, Huntingdon

3 Bedroom Bungalow | £1,500pcm

A rarely available three-bedroom detached BUNGALOW in the sought after Hartford area of Huntingdon. The property boasts...

Sapley Park, Huntingdon

4 Bedroom House | £1,500pcm

A spacious home within close proximity to local shops and amenities, the property boasts four bedrooms - TWO EN-SUITE s...

Fen Road, Pidley, Huntingdon

5 Bedroom House | £2,250pcm

Located in the picturesque village of Pidley is this spacious and verastile five bedroom family home, boasting EN-SUITE...

Low Road, Little Stukeley

4 Bedroom House | £2,300pcm

A unique and individually designed FOUR BEDROOM home offering stylish accommodation in a tranquil setting.

Carnaile Road, Alconbury Weald

4 Bedroom House | £2,500pcm

Constructed in 2018 is this substantial four bedroom detached family home, boasting two reception rooms, open plan kitc...

Oliver James Property Sales & Lettings (Huntingdon)

1 George Street, Huntingdon, Cambridgeshire, PE29 3AD

01480 458762

How much is your home worth?

Use our short form to request a valuation of your property.

Request a Valuation
©2025 The Guild of Property Professionals. All rights reserved. Terms and Conditions | Privacy Policy | Cookie Policy | Complaints Policy | Members Login
The Guild of Property Professionals Trading Address: 121 Park Lane, London W1K 7AG. GPEA Limited. Registered in England & Wales.  Company No: 02819824.  Registered Office Address: 2 St. Stephen's Court, St. Stephen's Road, Bournemouth, Dorset, England, BH2 6LA.  VAT Registration No: 576 8795 61
Book a Property Valuation Update Cookies Preferences