Caversham Road, Kentish Town NW5

£390pw
Let Agreed
This property listing is now Let Agreed

1 Bedroom Apartment for rent in Kentish Town

1
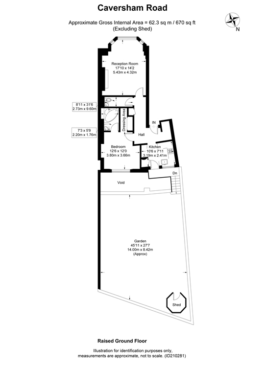
  • A Superb One Double Bedroom Garden Flat
  • Located on a quiet & sought after road
  • South Facing, Spacious Bay Fronted Reception
  • Separate Kitchen with Modern Integrated Appliances
  • Double bedroom with Dressing Room and En-Suite Bathroom
  • Period Features Throughout
  • Well located for local amenities & transport links
  • Easy access to Camden School for Girls and the Collège Français Bilingue de Londres

A superb one double bedroom garden flat arranged over the raised ground floor of this handsome Victorian property located on one of Kentish Town’s most sought after roads. The accommodation comprises a south facing, spacious bay fronted reception room, separate kitchen with modern integrated appliances which opens out onto a private garden, large double bedroom with dressing room and en-suite bathroom as well as a separate WC. A charming property with fine original period features throughout including high ceilings, feature fireplace and sash windows. Ideally placed close to the many local amenities including the refurbished Victorian swimming baths, underground and over-ground stations, local shops on the High Street along with easy access to Camden School for Girls and the Collège Français Bilingue de Londres on Holmes Road.

Property Ref: 58726_50174

Share:

Similar Properties

Euston Road, Euston NW1

Studio Apartment | £390pw

A fantastically-located bright and airy studio apartment set within a period conversion situated above Warren Street und...

Allcroft Road, Kentish Town NW5

1 Bedroom Apartment | £390pw

A stunning new build one double bedroom first floor apartment in a boutique development built by Telford Holmes. The gen...

Wadham Gardens, Primrose Hill NW3

Studio Apartment | £385pw

Located moments from the wide open spaces of Primrose Hill park, this beautiful studio flat is arranged on the ground fl...

Talacre Road, Kentish Town NW5

2 Bedroom Flat | £392pw

A generously proportioned two bedroom apartment arranged over second floor of this end of terrace period property. Accom...

Malden Road, Kentish Town NW5

1 Bedroom Flat | £392pw

A bright one-bedroom apartment with high ceilings between Hampstead and Kentish Town. Comprising, large open plan kitche...

Camden, NW1

Studio Apartment | £392pw

Centrally located Studio with separate kitchen, wooden flooring and access to a shared garden. Comprising a south facing...

Olivers Town (Kentish Town)

189 Kentish Town Road, Kentish Town, London, NW5 2JU

0207 2841222

How much is your home worth?

Use our short form to request a valuation of your property.

Request a Valuation
©2025 The Guild of Property Professionals. All rights reserved. Terms and Conditions | Privacy Policy | Cookie Policy | Complaints Policy | Members Login
The Guild of Property Professionals Trading Address: 121 Park Lane, London W1K 7AG. GPEA Limited. Registered in England & Wales.  Company No: 02819824.  Registered Office Address: 2 St. Stephen's Court, St. Stephen's Road, Bournemouth, Dorset, England, BH2 6LA.  VAT Registration No: 576 8795 61
Book a Property Valuation Update Cookies Preferences