Hollybank Apartments, Chapel Allerton, Leeds

£1,350pcm
Let Agreed
This property listing is now Let Agreed

2 Bedroom Apartment for rent in Leeds

1 2 2
  • Unfurnished
  • Modern Interior
  • Ground Floor
  • Private Gated Parking
  • Two Double Bedrooms
  • Tiled Bathroom & En-Suite
  • Private Decking Area
  • Available 20th May!

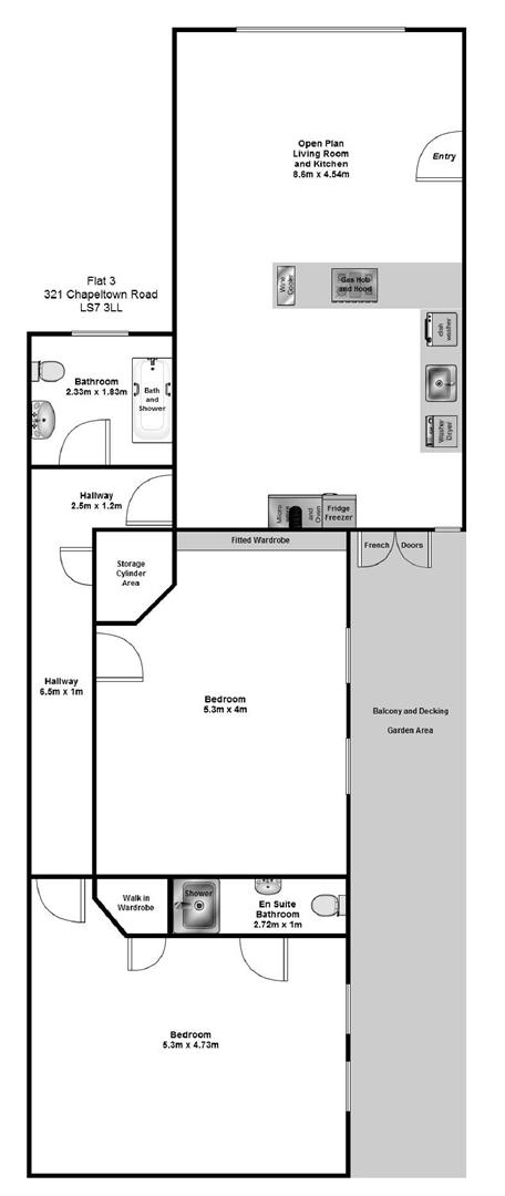
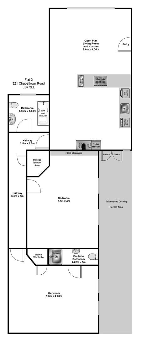
Stoneacre Properties are delighted to offer this most spectacular ground floor apartment boasting an ultra modern interior throughout. The apartment comprises of; Spacious Lounge featuring inset mood spotlighting, luxury feature wallpapering, black corner sofa and glass dining table; Open plan Kitchen featuring gloss units, fitted white goods, integrated appliances including wine cooler and neutrally tiled flooring; An Exceptionally well sized Master bedroom boasting a queen sized bed, glossed fitted wardrobes, lovely feature wall and a walk in wardrobe. The Master bedroom also boasts a beautifully tiled En-Suite. Bedroom Two, an excellent size again features fitted wardrobes, neutral carpet and a double bed. Finally a Fully tiled modern bathroom with shower over bath and ceramic heat proof mirror. This apartment also features a private decking area to the rear and private parking within the gated development. FURNISHED. The property is undergoing some renovation works. Available 20th May!

Lounge Angle One -

Lounge Angle Two -

Lounge Angle Three -

Kitchen Angle One -

Kitchen Angle Two -

Kitchen Angle Three -

Bedroom One Angle One -

Bedroom One Angle Two -

Bedroom One En-Suite -

Bedroom One En-Suite 2 -

Bedroom Two Angle One -

Bedroom Two Angle Two -

Bathroom Angle One -

Bathroom Angle Two -

Private Decking Area -

Front External -

Rear Communal Garden -

Property Ref: 478966_34370767

Share:

Similar Properties

Devonshire Avenue, Leeds, LS8 1AU

3 Bedroom Semi-Detached House | £1,350pcm

Stoneacre Properties are excited to share this superb opportunity for the professional couple or family to rent this thr...

Eton Court, Allerton Park, Leeds

2 Bedroom Apartment | £1,350pcm

*** OUTSTANDING LUXURY APARTMENT IN CHAPEL ALLERTON *** Stoneacre Properties are delighted to offer to the rental market...

Latchmere Road, Leeds, LS16

3 Bedroom Semi-Detached House | £1,300pcm

BEAUTIFUL, LIGHT AND AIRY, THREE BED SEMI DETACHED HOUSE with OFF ROAD PARKING, GARDENS TO FRONT AND REAR PLUS OUTHOUSE...

Kirkham Way, Leeds

3 Bedroom Semi-Detached House | £1,395pcm

Stoneacre Properties are delighted to present this three-bedroom, new Build, semi-detached house located on Kirkham Way...

St Martins Apartments, Chapeltown Road, Leeds

2 Bedroom Flat | £1,395pcm

Stoneacre Properties are delighted to offer to let this two bedroom, two bathroom apartment within the gated development...

Kingfisher Way, Alwoodley, Leeds

4 Bedroom Semi-Detached House | £1,395pcm

Stoneacre Properties are delighted to offer to the rental market a four bedroom semi detached property located in Alwood...

Stoneacre Properties (Leeds)

Chapel Allerton, Leeds, West Yorkshire, LS7 4NZ

0113 2370999

How much is your home worth?

Use our short form to request a valuation of your property.

Request a Valuation
©2026 The Guild of Property Professionals. All rights reserved. Terms and Conditions | Privacy Policy | Cookie Policy | Complaints Policy | Members Login
The Guild of Property Professionals Trading Address: 121 Park Lane, London W1K 7AG. GPEA Limited. Registered in England & Wales.  Company No: 02819824.  Registered Office Address: 2 St. Stephen's Court, St. Stephen's Road, Bournemouth, Dorset, England, BH2 6LA.  VAT Registration No: 576 8795 61
Book a Property Valuation Update Cookies Preferences