Central Gardens, Benson Street, Liverpool

£825pcm

1 Bedroom Apartment for rent in Liverpool

1 1 1
  • FURNISHED
  • ONE BEDROOM
  • ELECTRIC HEATING
  • DOUBLE GLAZED
  • INTEGRATED APPLIANCES
  • AVAILABLE NOW

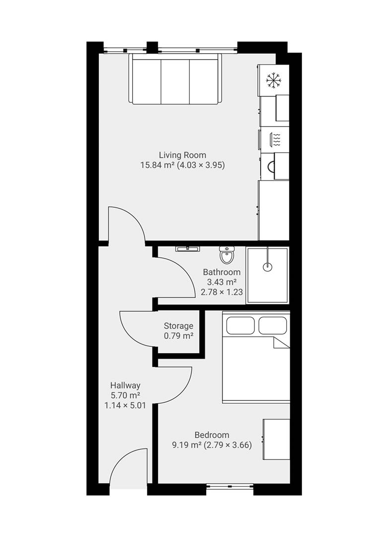
Welcome to this charming ONE BEDROOM FURNISHED apartment TO LET located in the heart of Central Gardens, Benson Street, Liverpool. This property boasts a open plan lounge kitchen room, perfect for relaxing or entertaining guests. With one spacious bedroom, you'll have a comfortable retreat to unwind after a long day. The apartment features a modern shower room, ideal for your daily routines.

Situated in a desirable area, this apartment offers the convenience of double-glazed windows, ensuring a peaceful atmosphere and energy efficiency. The electric heating system provides warmth during the colder months, keeping you snug and comfortable throughout the year.

Don't miss the opportunity to make this apartment your new home.

Deposit: £825.00
Council Tax Band: A
Minimum Term: 12 Months

Hallway - Entrance door, carpet, electric wall heater

Lounge Kitchen - Double glazed windows, electric wall heater, carpet in lounge area tiled floor in kitchen area, kitchen comprises of a range of fitted base and wall units stainless steel sink with mixer taps, electric oven and hob, extractor hood, washing machine, fridge/ freezer, furnishings include 2 seater sofa, coffee table, dining table and 2 chairs

Bedroom - Double glazed windows, carpet, electric wall heater, furnishings include wardrobe, Bed and mattress

Shower Room - Part tiled walls, tiled floor, electric towel rail, Shower with glass doors, sink and low level w.c.

Property Ref: 7776452_33313676

Share:

Similar Properties

Sky Gardens, Crosby Road North, Waterloo, Liverpool

1 Bedroom Apartment | £825pcm

Sky Gardens is a stunning residential development set in the heart of one of Liverpool's most affluent suburbs. Berkeley...

Leeds Street, Liverpool

1 Bedroom Apartment | £825pcm

Welcome to this delightful one-bedroom apartment located in the vibrant heart of Liverpool on Leeds Street. This modern...

Crosby Gardens, Crosby Road North, Waterloo, Liverpool

1 Bedroom Apartment | £825pcm

Crosby Gardens is a stunning residential development set in the heart of one of Liverpool's most affluent suburbs. We ha...

Stanley Road, Kirkdale, Liverpool

4 Bedroom Terraced House | £850pcm

4 BEDROOM FURNISHED NEW BUILD HOUSE - Available January 2021 this four double bedroom house has much to offer. Available...

Dowhills Road, Blundellsands, Merseyside

2 Bedroom Apartment | £850pcm

Berkeley Shaw Estate Agents are pleased to offer TO LET UNFURNISHED 2 Bedroom First Floor Apartment within a purpose bui...

Liverpool Road, Crosby

2 Bedroom Apartment | £850pcm

Berkeley Shaw Estate Agents are pleased to offer a first floor TWO BEDROOM DUPLEX Apartment which offers a private entra...

Berkeley Shaw Real Estate (Liverpool)

Old Haymarket, Liverpool, Merseyside, L1 6ER

0151 924 6000

How much is your home worth?

Use our short form to request a valuation of your property.

Request a Valuation
©2025 The Guild of Property Professionals. All rights reserved. Terms and Conditions | Privacy Policy | Cookie Policy | Complaints Policy | Members Login
The Guild of Property Professionals Trading Address: 121 Park Lane, London W1K 7AG. GPEA Limited. Registered in England & Wales.  Company No: 02819824.  Registered Office Address: 2 St. Stephen's Court, St. Stephen's Road, Bournemouth, Dorset, England, BH2 6LA.  VAT Registration No: 576 8795 61
Book a Property Valuation Update Cookies Preferences