Lindfield Gardens, Hampstead NW3

£4,312pcm
Let Agreed
This property listing is now Let Agreed

3 Bedroom Flat for rent in London

1 3 2
  • High ceilings
  • private decked patio
  • Own entrance

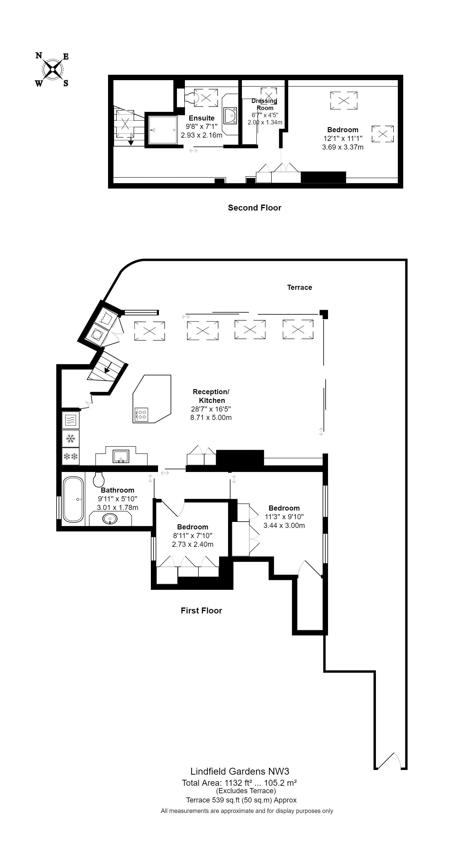
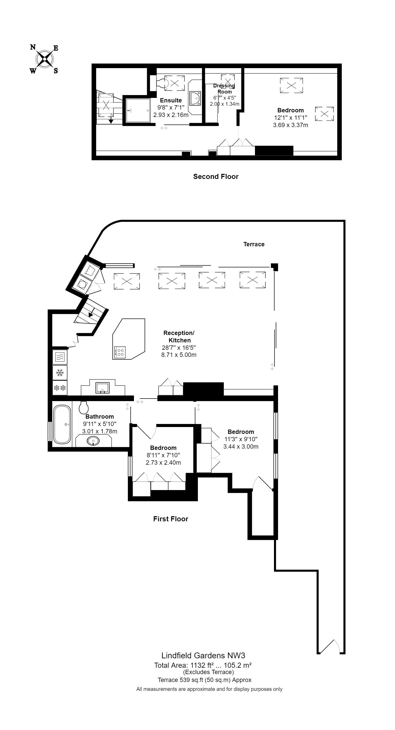
Stunning, modern, own entrance, three bedroom, two bathroom maisonette located on a beautiful, quiet tree-lined residential street, moments from the local amenities of Finchley Road and walking distance into the heart of Hampstead. The apartment comprises; an open plan reception with a fully fitted modern kitchen and wrap-around fully retractable glass doors and feature fireplace, good-sized bedroom with fitted wardrobes, a single bedroom/study, and a family bathroom with a bath. Upstairs comprises a good sized main bedroom with fitted wardrobes and large shower room, remote control blinds. The apartment is available from the 21st February 2026 on a furnished / part-furnished basis. Council tax band G / EPC rating C / 6 week deposit £5,970.00 / approx 1132 sq ft (105 sq m) on street car parking available via Camden council. Stairs up to entrance with further stairs in the flat. Ofcom details mobile phone coverage with 02, Vodaphone, 3 and EE / broadband availability - Openreach, virgin media and G network.

Important Information

  • This Council Tax band for this property is: G
  • EPC Rating is C

Property Ref: HAM230024

Share:

Similar Properties

Strathmore Court, Park Road, St Johns Wood

2 Bedroom Not Specified | £4,312pcm

Stylish 2-Bedroom 1 bathroom apartment in Prime Regent’s Park Location, 916 sq. ft second-floor apartment, set within a...

Kilburn Lane, Queens Park W9

4 Bedroom Flat | £3,999pcm

lovely, spacious 4 bedroom flat over 3 floors with light and bright large lounge and little balcony space off the lounge...

Maygrove Road, West Hampstead. NW6

3 Bedroom Flat | £3,792pcm

Lovely well appointed three double bedroom, two bathroom apartment situated on the 4th floor (top) with lift access from...

Fellows Road, Belsize Park NW3

3 Bedroom Flat | £4,333pcm

A spectacular, architect designed, 3 bedroom, 2 bath duplex apartment located moments from Primrose Hill and within a sh...

Glastonbury Street, West Hampstead

3 Bedroom Terraced House | £4,333pcm

Stunning 3-Bedroom Interior-Designed Family Home located on a quiet, sought-after residential street in West Hampstead,...

Haverstock Hill, Belsize Park NW3

3 Bedroom Flat | £5,450pcm

A discreet and elegantly appointed three-bedroom, three-bathroom garden apartment with private entrance, set in a prime...

Property Divas (Hampstead)

Rosslyn Hill, Hampstead, London, NW3 1NH

020 7431 8000

How much is your home worth?

Use our short form to request a valuation of your property.

Request a Valuation
©2026 The Guild of Property Professionals. All rights reserved. Terms and Conditions | Privacy Policy | Cookie Policy | Complaints Policy | Members Login
The Guild of Property Professionals Trading Address: 121 Park Lane, London W1K 7AG. GPEA Limited. Registered in England & Wales.  Company No: 02819824.  Registered Office Address: 2 St. Stephen's Court, St. Stephen's Road, Bournemouth, Dorset, England, BH2 6LA.  VAT Registration No: 576 8795 61
Book a Property Valuation Update Cookies Preferences