Bravington Road - 2 double bed Garden Flat

£611pw
Under Offer
This property listing is now Under Offer

2 Bedroom Apartment for rent in London

1 2 1
  • Excellent Condition
  • Reception Room with Bi-Fold Doors
  • Private Garden
  • Well Equipped Eat-in Kitchen
  • Two Double Bedrooms with Fitted Wardrobes
  • Modern Family Bathroom
  • Available from End of Jan 2025
  • Part Furnished
  • EPC = C
  • Council Tax = Band C

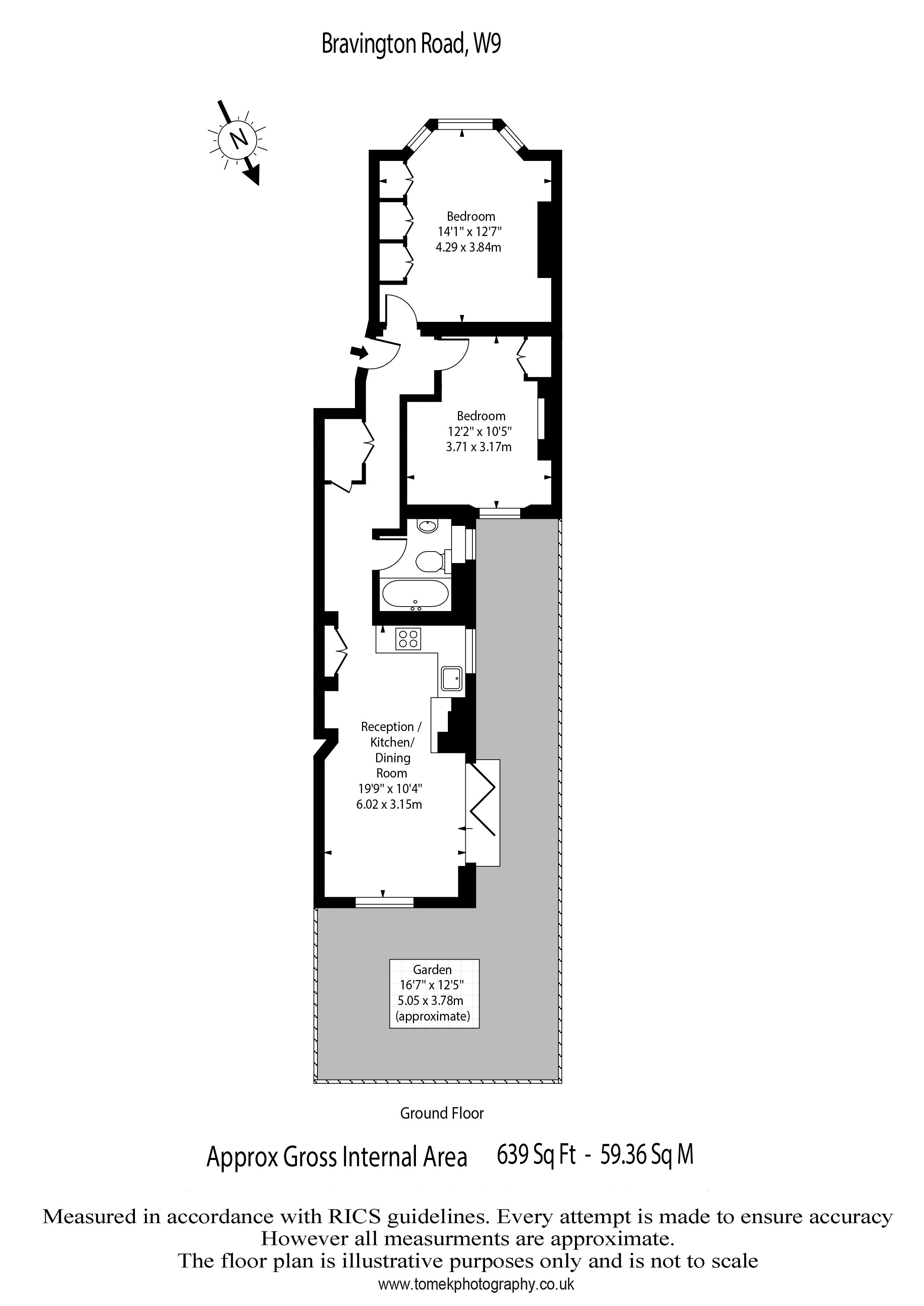
An exceptional two bedroomed apartment with a private garden on this popular residential street. The property is in excellent condition with a bright and airy feel. The accommodation has wood flooring throughout and comprises: double aspect reception room with bi-folding doors to the garden, modern eat-in kitchen with the usual appliances, larger that average main bedroom with bay window and lots of fitted wardrobes, second double bedroom with feature wall and built-in wardrobes, family bathroom with window and a low maintenance garden. Located within close proximity to Queen Park Station (Bakerloo and Over Ground Services) and the shops and restaurants of Salusbury Road. Available end of Jan 2025. on a part furnished basis. EPC= C. Council Tax Band = C.

Property Ref: EAXML1225_12549391

Share:

Similar Properties

Lanhill Road, London

2 Bedroom Apartment | £588pw

A very well presented two bedroom apartment with private garden. This property is in good condition and benefits from ha...

Randolph Avenue, London

2 Bedroom Flat | £577pw

A delightful two bedroom apartment located on the 1st floor moments from Maida Vale Station. The apartment comprises bri...

St. Michaels Street, Patio / Gated Mews

1 Bedroom Apartment | £565pw

A beautifully presented one bedroom apartment situated within this secure gated development close to Paddington Station...

CARLTON VALE - 779 sq. Garden & Balcony

2 Bedroom Flat | £612pw

Available Now. A delightful two bedroom apartment on the raised ground floor of this imposing period house. The property...

Marylands Road, - ROOF TERRACE

2 Bedroom Apartment | £623pw

Spacious first floor flat in a charming Victorian period property. Located close to transport and the open space of Padd...

Randolph Avenue, Maida Vale W9

2 Bedroom Apartment | £625pw

A stunning first floor apartment located in the heart of Maida Vale, offering a fabulous living & entertaining space wit...

Ashley Milton Property Agents (Maida Vale)

Maida Vale, London, W9 1JS

020 7286 6565

How much is your home worth?

Use our short form to request a valuation of your property.

Request a Valuation
©2026 The Guild of Property Professionals. All rights reserved. Terms and Conditions | Privacy Policy | Cookie Policy | Complaints Policy | Members Login
The Guild of Property Professionals Trading Address: 121 Park Lane, London W1K 7AG. GPEA Limited. Registered in England & Wales.  Company No: 02819824.  Registered Office Address: 2 St. Stephen's Court, St. Stephen's Road, Bournemouth, Dorset, England, BH2 6LA.  VAT Registration No: 576 8795 61
Book a Property Valuation Update Cookies Preferences