Portnall Road, London

£635pw
Under Offer
This property listing is now Under Offer

2 Bedroom Apartment for rent in London

1 2 2
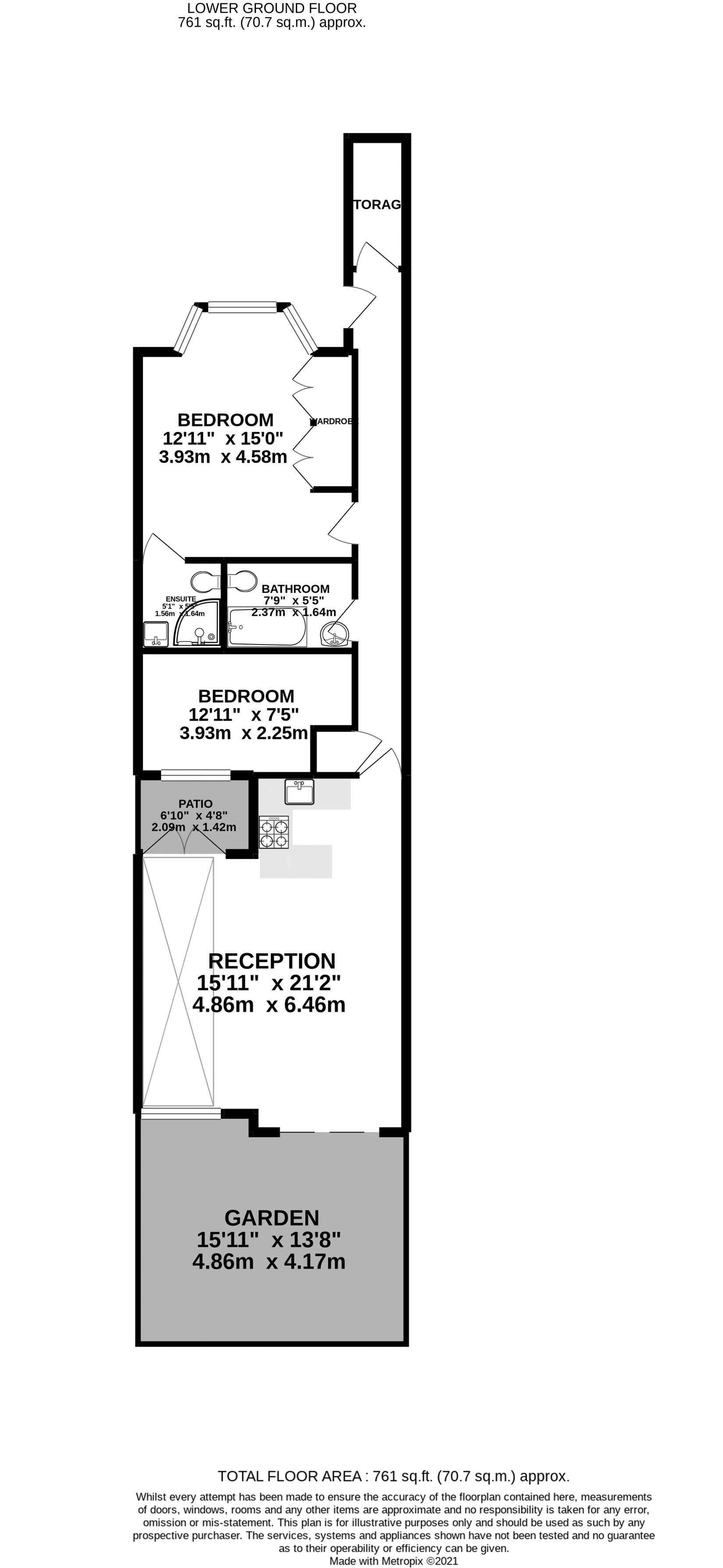
  • LOVELY CONDITION
  • PRIVATE GARDEN
  • OWN ENTRANCE
  • STUNNING RECEPTION / KITCHEN DINER
  • TWO DOUBLE BEDROOMS
  • EN-SUITE SHOWER ROOM
  • FAMILY BATHROOM
  • AVAILABLE 1ST DECEMBER

A beautifully presented and extended flat with private garden. The property comprises: stunning reception room / kitchen diner with doors to garden and superb natural light, master bedroom with en-suite, second double bedroom, family bathroom and excellent storage. Located close to transport and shops. Available 4th December. Must be seen. EPC = C / Council Tax Band = C

Property Ref: EAXML1225_10962101

Share:

Similar Properties

Randolph Avenue, Maida Vale W9

2 Bedroom Apartment | £625pw

A stunning first floor apartment located in the heart of Maida Vale, offering a fabulous living & entertaining space wit...

Marylands Road, - ROOF TERRACE

2 Bedroom Apartment | £623pw

Spacious first floor flat in a charming Victorian period property. Located close to transport and the open space of Padd...

CARLTON VALE - 779 sq. Garden & Balcony

2 Bedroom Flat | £612pw

Available Now. A delightful two bedroom apartment on the raised ground floor of this imposing period house. The property...

Southern Row, - 3 beds / Ideal for Sharers

3 Bedroom Apartment | £646pw

Ideal for professional sharers, this bright and spacious three-bedroom ground floor flat is located within a well-mainta...

Randolph Avenue W9

1 Bedroom Apartment | £650pw

A delightful one bedroom apartment on the first floor of this desirable white stucco fronted house. The property benefit...

Chippenham Road Private Roof Terrace

2 Bedroom Apartment | £658pw

Located over the road from the open space of Tamplin Mews Gardens, is this spacious and light two double bedroom multi l...

Ashley Milton Property Agents (Maida Vale)

Maida Vale, London, W9 1JS

020 7286 6565

How much is your home worth?

Use our short form to request a valuation of your property.

Request a Valuation
©2026 The Guild of Property Professionals. All rights reserved. Terms and Conditions | Privacy Policy | Cookie Policy | Complaints Policy | Members Login
The Guild of Property Professionals Trading Address: 121 Park Lane, London W1K 7AG. GPEA Limited. Registered in England & Wales.  Company No: 02819824.  Registered Office Address: 2 St. Stephen's Court, St. Stephen's Road, Bournemouth, Dorset, England, BH2 6LA.  VAT Registration No: 576 8795 61
Book a Property Valuation Update Cookies Preferences