Blenheim Close, Winchmore Hill, N21

£2,500pcm
Let Agreed
This property listing is now Let Agreed

4 Bedroom House for rent in London

2 4 3
  • Four Bedroom Townhouse
  • Spacious Reception
  • Ground Floor Guest W.C
  • Utility Room
  • Private Rear Garden with Views of the New River
  • Gas Central Heating
  • Double Glazing
  • Driveway
  • Nearby: Winchmore Hill Rail Station (Zone 4)

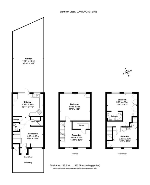
Arranged over Three Floors, on the ground floor you will find a Spacious Reception, 2 Piece Guest W.C/Toilet, Separate Utility Room, Large Fitted Modern Kitchen/Diner with Integrated Appliances (untested) and a Private Rear Garden along with Beautiful views of the New River/New River Path. To the first floor, there are Two Bedrooms (one of the proposed bedroom are currently used as a First Floor Lounge/Reception) along with a beautiful Three Piece Modern Bathroom Suite. Finally in the Top Floor, there is the Master Bedroom with a 3 Piece En-Suite Bathroom and another Double Bedroom with a 2 Piece En-Suite/Shower Room. The property further benefits from Gas Central Heating, Double Glazing, Private Off-Street Parking courtesy of a Driveway and a mixture of Laminated/Carpeted Flooring. Blenheim Close, N21 is situated in an ever popular & sought after location with its close links to transport as Winchmore Hill Rail Station (Zone 4) and Grange Park Rail Station (Zone 5) are both within easy reach along with the very well connected A10 & A406 roads for those who own and commute via a vehicle. Furthermore, Green Lanes that also happens to be one of the longest stretches of road/street in the capital, is also within very close proximity, providing direct access to many amenities for the day to day running of your household, along with being in the catchment area of local Primary & Secondary Schools rated Good and above. Call us Now to Arrange a Viewing to Avoid Disappointment. EPC Rating - D Council Tax Band – F Disclaimer - The information contained herein has been obtained through sources deemed reliable but cannot be guaranteed by Filey Properties London Ltd as to its accuracy. Any information of special interest should be obtained through independent verification.

Important Information

  • This Council Tax band for this property is: F
  • EPC Rating is D

Property Ref: 2645085

Share:

Similar Properties

Imber Close, Southgate, N14

3 Bedroom House | £2,400pcm

A superb three double bedroom house offering light and airy interiors with well proportioned rooms and an excellent loca...

Horizonz Tower

3 Bedroom Apartment | £2,400pcm

Brand new Horizons Development - three double bedroom luxury apartment with fantastic view of Riverside is now available...

Chimes Avenue, Palmers Green, N13

3 Bedroom House | £2,200pcm

Filey Properties are delighted to offer on the market this Exceptional Three Bedroom Mid-Terraced House, situated in an...

Inverness Road, Edmonton, N18

4 Bedroom End of Terrace House | £2,650pcm

4 Bedroom | Kitchen | Close to Station | Two Receptions | Upstairs bathroom | Modern decor | Garden | Close to Tottenham...

WALTHAM CROSS HERTFORDSHIRE

5 Bedroom House | £2,650pcm

We are delighted to offer this immaculately presented five bedroom family home situated on a quiet road in Waltham Cross...

Southgate N14

3 Bedroom End of Terrace House | £2,700pcm

Filey Properties are delighted to offer on the market this beautifully presented Three Bedroom End of Terraced House sit...

Filey Properties (Enfield)

78 Lancaster Road, Enfield, London, EN2 0BZ

0203 231 4081

How much is your home worth?

Use our short form to request a valuation of your property.

Request a Valuation
©2026 The Guild of Property Professionals. All rights reserved. Terms and Conditions | Privacy Policy | Cookie Policy | Complaints Policy | Members Login
The Guild of Property Professionals Trading Address: 121 Park Lane, London W1K 7AG. GPEA Limited. Registered in England & Wales.  Company No: 02819824.  Registered Office Address: 2 St. Stephen's Court, St. Stephen's Road, Bournemouth, Dorset, England, BH2 6LA.  VAT Registration No: 576 8795 61
Book a Property Valuation Update Cookies Preferences