Ullswater Crescent, London, SW15

£12,500pcm

6 Bedroom House for rent in London

6

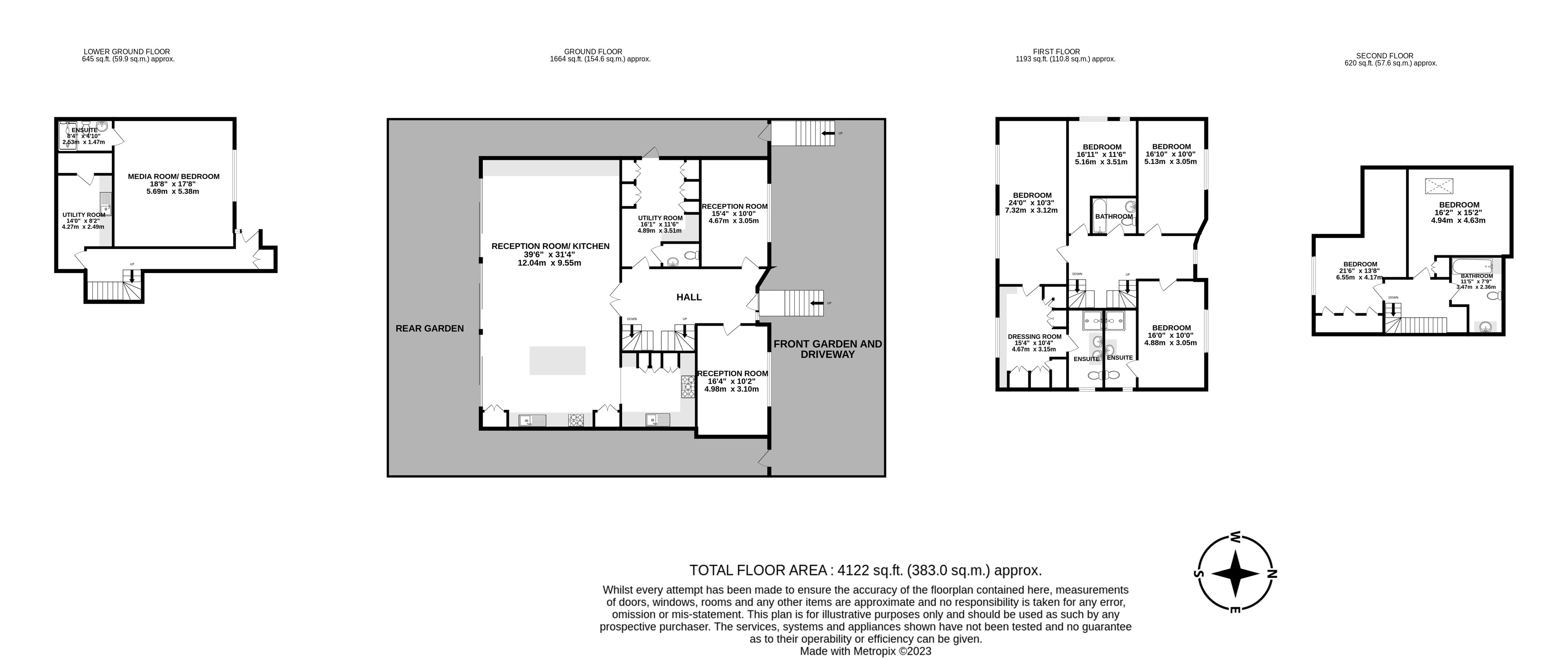
This stunning new build has been renovated to a high specification, offering seven bedrooms, five bathrooms, a dressing room, and a utility room. The beautiful decorative flooring is set throughout the property with large windows, boasting natural light. Measuring approximately at 4122 sq ft, this house is arranged over four levels and benefits from a private garden and terrace with a perfect south facing view.

The property is located close to Richmond Park and Kingston Hill. With an excellent selection of schools and numerous recreational facilities including several golf clubs. Transport links include Norbiton and Kingston Station with mainline links to Waterloo. The A3 provides provides direct routes in and out of London. Heathrow and Gatwick airports are also accessible via the A3 and M25.

* Photos taken prior to current tenancy

Please note, there is some flexibility on the availabilty date, as current tenants may be open to leaving earlier than end of June.

Property Ref: CAR230070_L

Share:

Similar Properties

Elm Road, New Malden, KT3

3 Bedroom House | £4,000pcm

Discover this beautifully presented three-double-bedroom semi-detached home, meticulously modernised to an exceptional s...

Orchard Road, Kingston Upon Thames, Greater London, KT1

5 Bedroom House | £3,450pcm

This 5 bedroom semi-detached property is perfect for professional sharers or a family, moments away from Kingston town c...

Meadway, Surbiton, KT5

3 Bedroom House | £2,250pcm

Nestled in a quiet cul-de-sac, this well-presented three-bedroom terraced house is ideally situated on a quiet residenti...

Carringtons Residential (Kingston upon Thames)

Kingston Hill, Kingston upon Thames, Surrey, KT2 7PW

0208 5493366

How much is your home worth?

Use our short form to request a valuation of your property.

Request a Valuation
©2026 The Guild of Property Professionals. All rights reserved. Terms and Conditions | Privacy Policy | Cookie Policy | Complaints Policy | Members Login
The Guild of Property Professionals Trading Address: 121 Park Lane, London W1K 7AG. GPEA Limited. Registered in England & Wales.  Company No: 02819824.  Registered Office Address: 2 St. Stephen's Court, St. Stephen's Road, Bournemouth, Dorset, England, BH2 6LA.  VAT Registration No: 576 8795 61
Book a Property Valuation Update Cookies Preferences