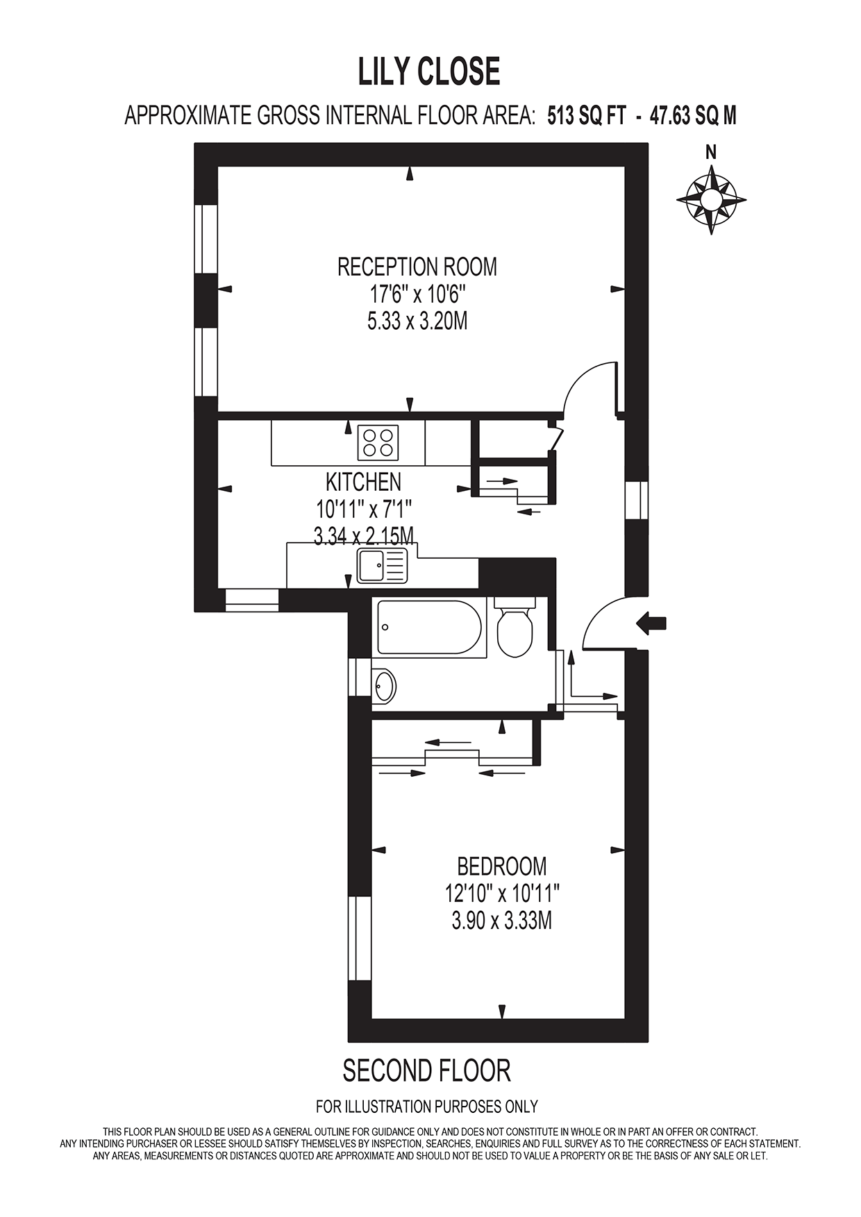
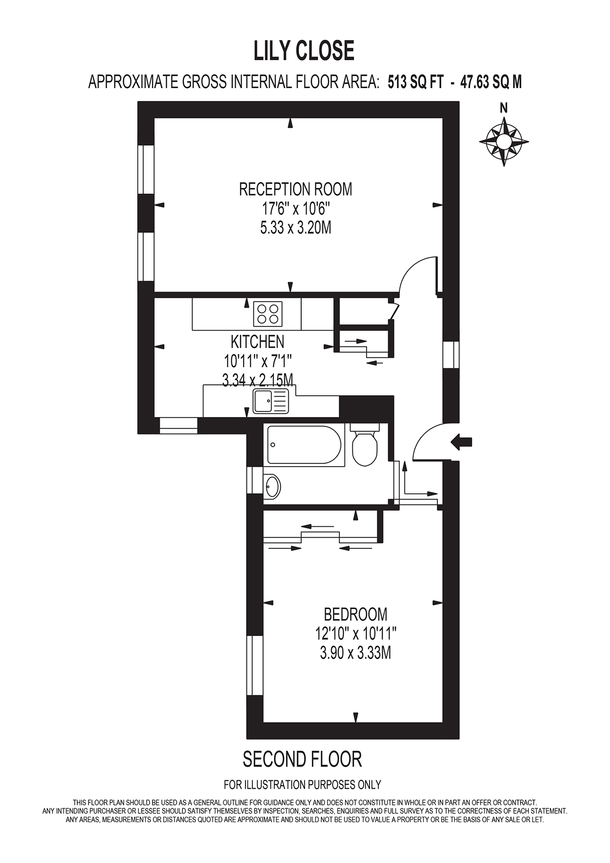
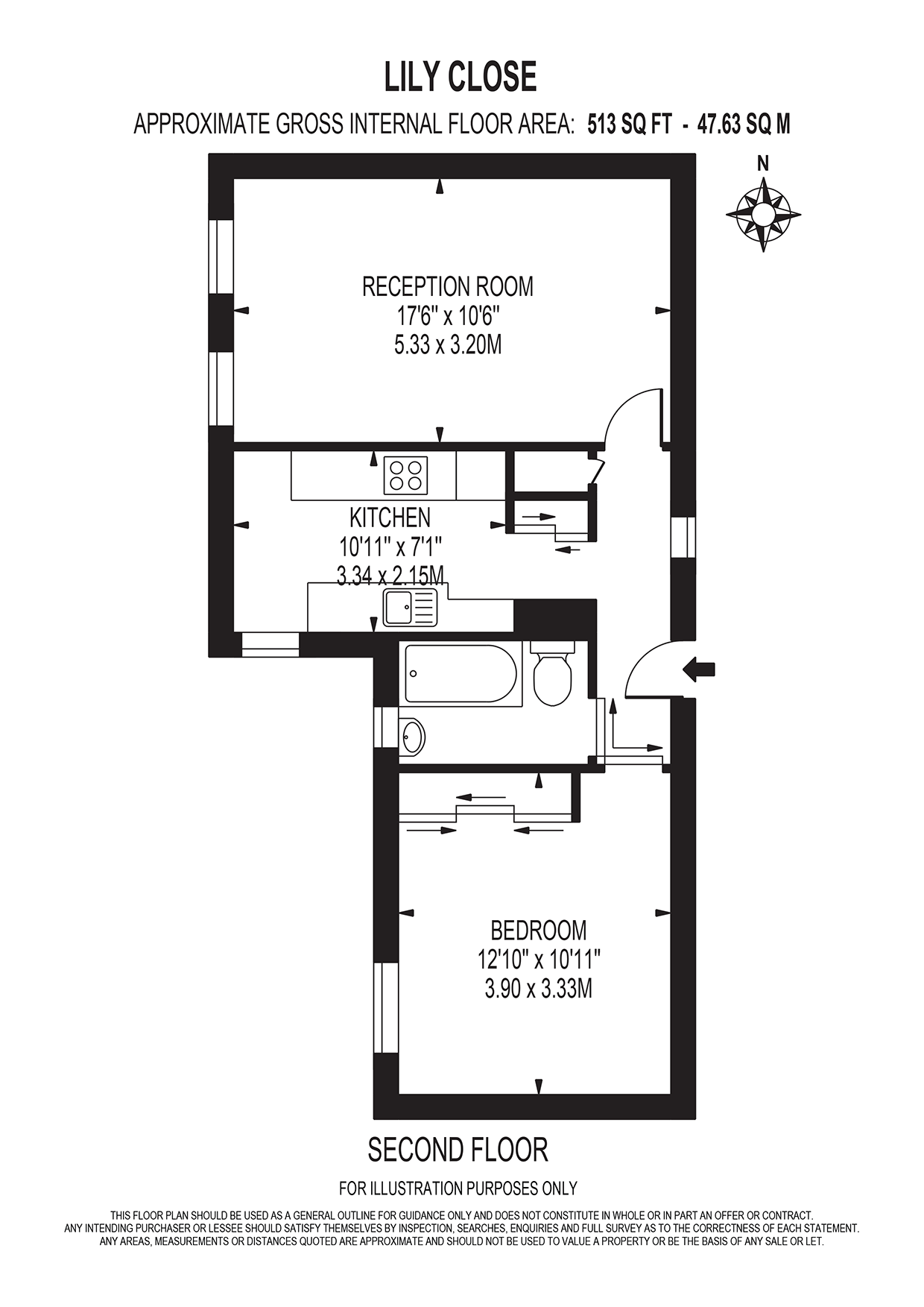
Lily Close, London , W14

£415pw
Under Offer
This property listing is now Under Offer

1 Bedroom Flat for rent in London

1 1 1
  • Heating and hot water included
  • Close to hammersmith tube link
  • Brook Green on doorstep
  • Lots of cafes/restaurants nearby
  • Walking distance to Thames Path
  • Easy reach of Westfield
  • New Ikea nearby

Willmotts pleased to offer this Lovely purpose built One bedroom property. Includes HEATING AND HOT WATER BILLS! A very well presented one double bedroom apartment in a well maintained block. It has an abundance of natural light. The rent includes central heating and hot water.  It has the excellent transport links of Hammersmith (Piccadilly, District, Metropolitan, Hammersmith & City Lines) just a few minutes walk away.

Brook Green is close by as is a very scenic stretch of the River Thames. The river tow path will take you to Putney, Barnes, Chiswick and further if you have the time and energy. Kensington Olympia Overground station is 5 minutes walk away. High Street Kensington is a few minutes on a local bus or a brisk 15 minute walk.

Heating for the radiators is usually turned on in October and off in late April. We can confirm dates with block management. 

Council Tax: D
EPC: C

Holding Fee: 1 weeks Rent: £415
Deposit: 5 weeks at £2075

Property Ref: 58434_WILL1000A45

Share:

Similar Properties

Clapham Common Southside , Clapham, London, SW4

1 Bedroom Flat | £415pw

Double Bedroom Apartment. FULLY MANAGED. Opposite Clapham Common. Near Clapham Common Tube (Northern Line). Long Let Ava...

latymer Court , London, W6

1 Bedroom Apartment | £415pw

Willmotts are pleased to present this charming One-Bedroom Flat in Latymer Court, W6 This bright and well-presented one-...

Headley Court, 76 Worple Road, Wimbledon, SW19

2 Bedroom Flat | £415pw

Stunning converted loft apartment within this delightful period mansion block. Situated within 10 minutes walk of Wimble...

Kings Avenue, Clapham, London, SW4

1 Bedroom Flat | £425pw

Property is FULLY FURNISHED SMART TOP FLOOR APARTMENT, SHOPPING, ENTERTAINING, WORK OUTS, TAKE OUTS.

Pembridge Square , Notting Hill, London, W2

Flat | £425pw

Beautiful split-level studio apartment in the heart of Notting Hill , it benefits from huge windows that let in a lot of...

Lavender Hill , Clapham, London, SW11

1 Bedroom Flat | £425pw

Lovely 1 bedroom flat on Lavender Hill. Close to Clapham Junction, Northcote Road and Clapham Common.Available now.

Willmotts Real Estate Agents (Hammersmith)

12 Blacks Road, Hammersmith, London, W6 9EU

0208 222 9958

How much is your home worth?

Use our short form to request a valuation of your property.

Request a Valuation
©2025 The Guild of Property Professionals. All rights reserved. Terms and Conditions | Privacy Policy | Cookie Policy | Complaints Policy | Members Login
The Guild of Property Professionals Trading Address: 121 Park Lane, London W1K 7AG. GPEA Limited. Registered in England & Wales.  Company No: 02819824.  Registered Office Address: 2 St. Stephen's Court, St. Stephen's Road, Bournemouth, Dorset, England, BH2 6LA.  VAT Registration No: 576 8795 61
Book a Property Valuation Update Cookies Preferences