Wellfields, Loughton, Essex, IG10

£4,000pcm

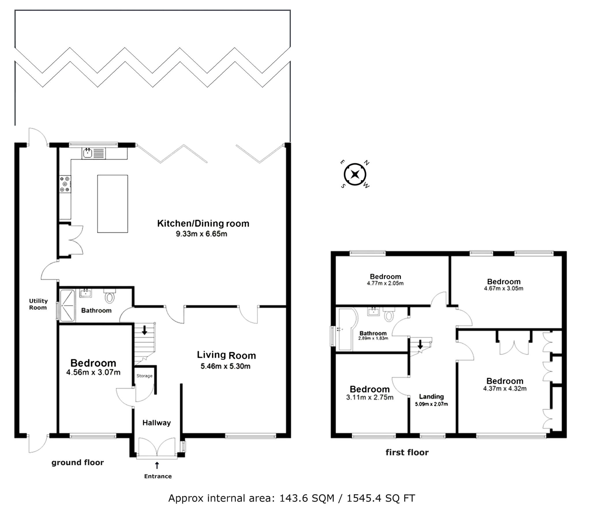
5 Bedroom Semi-Detached House for rent in Loughton

1 5 2
  • Semi-detached house
  • Five double bedroom
  • Good size kitchen/dining room
  • Good size living room
  • Two family bathroom
  • Good size private garden
  • Off street parking
  • Close to local shops and amenities

This expansive five double bedroom semi-detached house represents a fantastic long-term rental opportunity, combining generous internal space with desirable external features and an enviable location.
Nestled in the highly sought-after Wellfields area of Loughton, this impressive five double bedroom semi-detached house presents an exceptional opportunity for families seeking substantial living space and convenience. Boasting a prime location, the property is perfectly positioned to take advantage of local shops, amenities, and excellent transport links, making daily life effortlessly manageable.
Upon entering, you are greeted by a welcoming atmosphere that flows seamlessly throughout the generously proportioned accommodation. The heart of this home is undoubtedly the good size kitchen/dining room, a versatile space designed for both everyday family meals and entertaining guests. This area offers ample room for culinary creativity and a dedicated dining zone, ensuring everyone can gather comfortably.
Adjacent to this, the good size living room provides a perfect sanctuary for relaxation, offering a bright and inviting environment for unwinding after a long day or enjoying quality time with loved ones. On the ground floor you can find also a double bedroom that can be used as a dedicated study, a nursery, or even a convenient storage area, adapting to the specific needs of the occupants.
Ascending to the upper floors, the property reveals four well-appointed double bedrooms, each offering comfortable dimensions and a peaceful retreat. The abundance of double bedrooms provides incredible flexibility, ideal for growing families, those needing dedicated home office spaces, or accommodating guests with ease.
Complementing these spacious bedrooms are two modern family bathrooms, thoughtfully designed to cater to the needs of a busy household. These bathrooms ensure convenience and comfort for all residents, featuring contemporary fixtures and fittings.
Externally, the property truly shines with its good size private garden. This outdoor oasis offers a wonderful space for alfresco dining, children's play, or simply enjoying the fresh air in a secluded setting. The garden provides a blank canvas for keen gardeners to cultivate their own haven or for those who prefer a low-maintenance outdoor area. A significant advantage of this property is the inclusion of off-street parking, a highly desirable feature in Loughton, providing secure and convenient parking for residents and visitors alike.
Residents benefit from easy access to a diverse range of local shops, supermarkets, and independent businesses, ensuring all daily necessities are within close reach. The area is also well-served by reputable schools, making it an ideal choice for families with children.
If this property matches what you are looking for, contact us today on O20 8519 2000 to arrange a viewing or simply message me.(working professionals preffered.)

Important Information

  • This Council Tax band for this property is: G

Property Ref: 123456_453531

Share:

Similar Properties

Northbank Road, London, E17

5 Bedroom Terraced House | £3,000pcm

Bright and spacious five-bedroom terrace available now for rent

Victoria Park Road, Hackney, London, E9

3 Bedroom Apartment | £3,000pcm

Exceptional three-bedroom apartment, offering generous living space and timeless character in one of East London's most...

Dispensary Lane, Hackney, London, E8

2 Bedroom Penthouse | £3,000pcm

Modern Two-Bedroom Penthouse with Roof Terrace to Let

Mile End Road, London, E1

Shop | £4,600pcm

Spacious Commercial Property for Rent on Mile End Road

Donald Drive, Romford, RM6

6 Bedroom Semi-Detached House | £4,750pcm

Stunning Six-Bedroom Family Home Available to Rent

High Road Leytonstone, Leytonstone, London. E11

Shop | £8,995pa

Victor Michael is pleased to present this commercial unit to the market. Situated on a prime, busy road, this property c...

Victor Michael Limited (Stratford)

Stratford, London, E15 1SQ

0208 519 2000

How much is your home worth?

Use our short form to request a valuation of your property.

Request a Valuation
©2025 The Guild of Property Professionals. All rights reserved. Terms and Conditions | Privacy Policy | Cookie Policy | Complaints Policy | Members Login
The Guild of Property Professionals Trading Address: 121 Park Lane, London W1K 7AG. GPEA Limited. Registered in England & Wales.  Company No: 02819824.  Registered Office Address: 2 St. Stephen's Court, St. Stephen's Road, Bournemouth, Dorset, England, BH2 6LA.  VAT Registration No: 576 8795 61
Book a Property Valuation Update Cookies Preferences