Lentune Way, Lymington, Hampshire, SO41

£2,200pcm
Let Agreed
This property listing is now Let Agreed

3 Bedroom Detached House for rent in Lymington

2 3 2

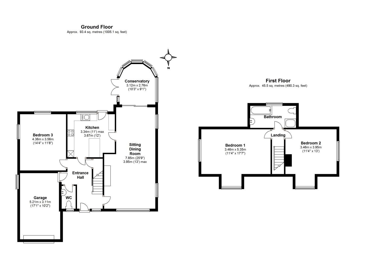
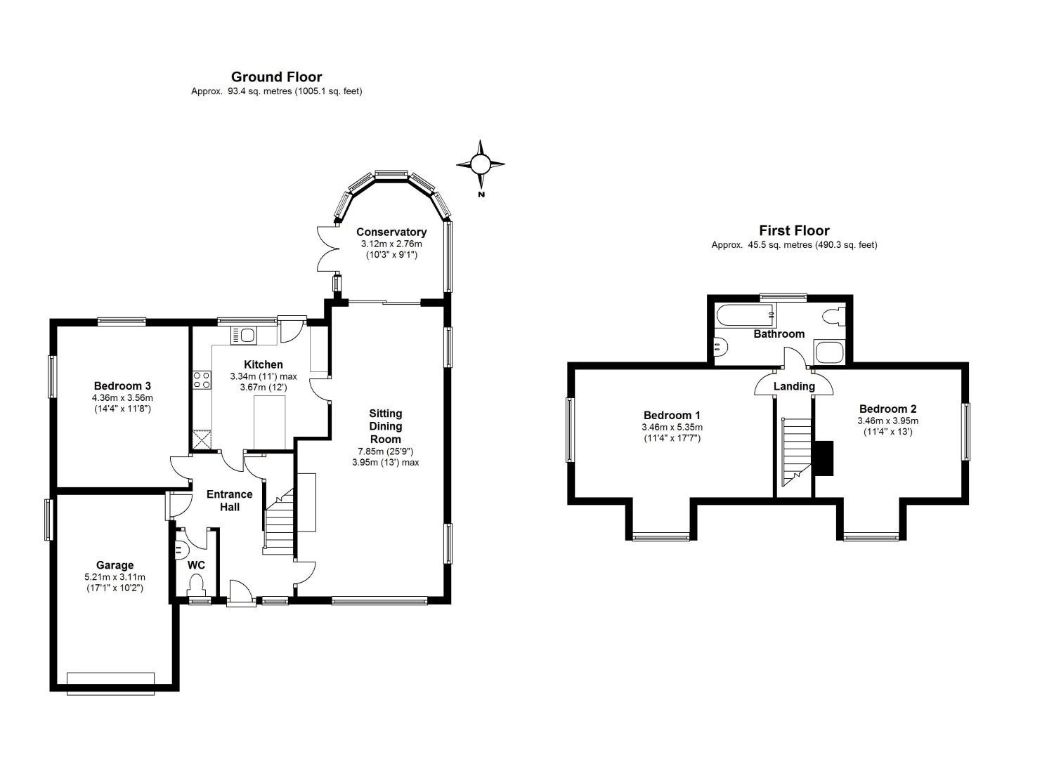
Three double bedroom detached Chalet bungalow in a popular area of Lymington. Offered part-furnished and available early November.



Hayward Fox are pleased to offer for let:



* Detached Chalet bungalow



* Three double bedrooms



* Large rear garden



* Family bathroom with bath and separate shower



* Driveway parking and garage



* Kitchen with Breakfast bar



* Conservatory



* EPC Band D



* Council Tax Band F
* Affordability: Prospective tenants will need to earn a combined £66,000 pa and have clear credit history.

Lymington is a lively sailing town at the mouth of the Lymington River enhanced by its marinas, yacht haven and sailing clubs. The Isle of Wight ferry operates regularly to Yarmouth. The lanes and streets around the Quay side retain the flavour of an old harbour town with Georgian and Victorian cottages, houses and unique shops. The bustling High Street supports an excellent variety of community facilities with a Saturday street market. Lymington is an ideal location for water sports enthusiasts with superb walks along the Foreshore with a wide range of recreational facilities being available throughout the New Forest National Park which surrounds the town. Lymington also has a nine hole golf course in an enviable position with views extending to the Isle of Wight, tennis club, bowls, cricket, rugby and football clubs, a wide range of schools and a recreation centre. Lymington is served by a good communication with road and rail links with the town railway station providing twice hourly access to Brockenhurst, a mainline station to London Waterloo. The international airports of Bournemouth and Southampton are both within 45 minute's drive.

Property Ref: 746198_10083595

Share:

Similar Properties

Buckland Gardens, Lymington, Hampshire, SO41 8QL

4 Bedroom Townhouse | £2,200pcm

Recently refurbished and beautifully presented four bedroom Town House. Offered unfurnished and available early July.

Trafalgar Place, Lymington, Hampshire, SO41

3 Bedroom Townhouse | £2,200pcm

Beautifully presented, spacious three story town house in an extremely sought after location, close to Lymington High St...

Courtenay Place, Lymington, Hampshire, SO41

4 Bedroom End of Terrace House | £2,050pcm

Beautifully presented four-bedroom Georgian style end of terrace property nestled within the sought after Courtenay Plac...

The Boltons, Milford on Sea, Lymington, Hampshire, SO41

4 Bedroom Link Detached House | £2,250pcm

Fantastic location close to Milford beach, well presented, recently redecorated and versatile four/three bedroom link de...

Harewood Green, Keyhaven, Lymington, Hampshire, SO41 0TZ

3 Bedroom Detached House | £2,250pcm

Three/four bedroom detached house in the stunning location of Keyhaven. Offering downstairs shower room, snug room, larg...

Kingston Park, Pennington, Lymington, Hampshire, SO41

4 Bedroom Semi-Detached House | £2,300pcm

A beautifully presented and carefully remodelled and refurbished semi detached home. Offering an excellent balance of ac...

Hayward Fox Lettings (Lymington)

12 Stanford Road, Lymington, Hampshire, SO41 9GF

01590 675424

How much is your home worth?

Use our short form to request a valuation of your property.

Request a Valuation
©2025 The Guild of Property Professionals. All rights reserved. Terms and Conditions | Privacy Policy | Cookie Policy | Complaints Policy | Members Login
The Guild of Property Professionals Trading Address: 121 Park Lane, London W1K 7AG. GPEA Limited. Registered in England & Wales.  Company No: 02819824.  Registered Office Address: 2 St. Stephen's Court, St. Stephen's Road, Bournemouth, Dorset, England, BH2 6LA.  VAT Registration No: 576 8795 61
Book a Property Valuation Update Cookies Preferences