Spacious Two Double Bedroom Apartment in Private Gated Development | Off-Street Parking | Moments from Mill Hill Broadwa

£2,000pcm

2 Bedroom Flat for rent in Mill Hill

1 2 2
  • - Allocated Gated Parking - Spacious Lounge - Master Bedrooms with en-suite - Gated Development - Close to Northern Line - Waitrose and Virgin Active

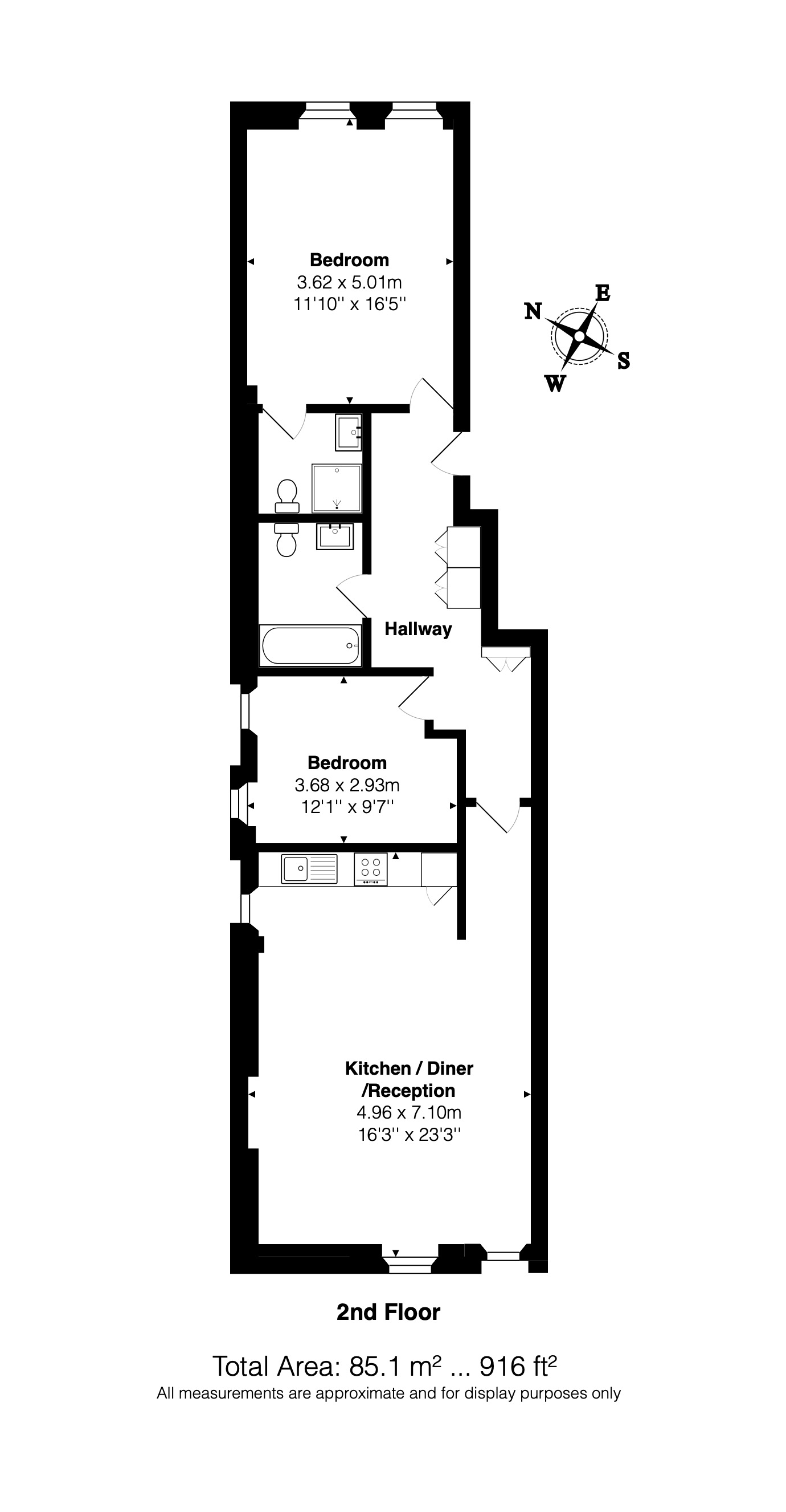
The property features a generously sized reception room with dual aspect windows, allowing natural light to flood the space and creating an ideal setting for both relaxing and entertaining. The modern fitted kitchen is well appointed with contemporary fixtures and ample storage.

The principal bedroom benefits from a luxury en-suite bathroom, while the second double bedroom is served by a stylish separate shower room, making the property ideal for professional sharers or couples requiring additional space.

Further benefits include off-street parking within the gated development, well-maintained communal areas and a peaceful residential setting while still being conveniently located for transport links into Central London.

Offered unfurnished and available for long-term let, this apartment provides spacious accommodation in a highly desirable Mill Hill location.

Important Information

  • This Council Tax band for this property is: F
  • EPC Rating is C

Property Ref: FIN250248

Share:

Similar Properties

Richmond Court, 75 High Street

2 Bedroom Flat | £2,000pcm

A well-presented and spacious two bedroom upper floor flat set within a modern gated development, ideally located just a...

Gerrards Close, N14

3 Bedroom End of Terrace House | £2,000pcm

This delightful Ground Floor Maisonette boasts a cosy reception room, with three bedrooms. The property features a well-...

High Road, East Finchley

2 Bedroom Flat | £2,000pcm

Two bedroom APARTMENT with a PRIVATE ROOF TERRACE set within SMALL DEVELOPMENT and just a stone throw from EAST FINCHLEY...

Bright Two-Bedroom Apartment | Recently Refurbished | Moments from Seven Sisters Station

2 Bedroom Flat | £2,040pcm

A well-presented and recently refurbished two-bedroom apartment ideally located on High Road, just a short walk from Sev...

Holloway Road, Islington

1 Bedroom Flat | £2,050pcm

A stunning brand new one bedroom second floor flat set within a beautifully restored listed period conversion, ideally l...

Holloway Road, Islington

1 Bedroom Ground Floor Flat | £2,050pcm

*WATER BILL INCLUDED* A beautifully refurbished one-bedroom ground-floor flat set within a listed period conversion, jus...

Drivers & Norris (Holloway)

Holloway, London, N7 6HP

0207 607 5001

How much is your home worth?

Use our short form to request a valuation of your property.

Request a Valuation
©2026 The Guild of Property Professionals. All rights reserved. Terms and Conditions | Privacy Policy | Cookie Policy | Complaints Policy | Members Login
The Guild of Property Professionals Trading Address: 121 Park Lane, London W1K 7AG. GPEA Limited. Registered in England & Wales.  Company No: 02819824.  Registered Office Address: 2 St. Stephen's Court, St. Stephen's Road, Bournemouth, Dorset, England, BH2 6LA.  VAT Registration No: 576 8795 61
Book a Property Valuation Update Cookies Preferences