Dandelion Drive, Cramlington, Newcastle Upon Tyne

£1,250pcm
Let Agreed
This property listing is now Let Agreed

3 Bedroom Townhouse for rent in Newcastle Upon Tyne

1 3 2
  • Professional Landlord
  • Brand New Property
  • White Goods Included
  • Off Road Parking
  • Pets Considered
  • Call For More Information
  • Long Term Tenancies Available
  • Zero Deposit Option Available

ZERO DEPOSIT OPTION AVAILABLE. Jan Forster Estates are delighted to offer this brand new 'Norbury', located in the magnificent new development called West Meadows in Cramlington.

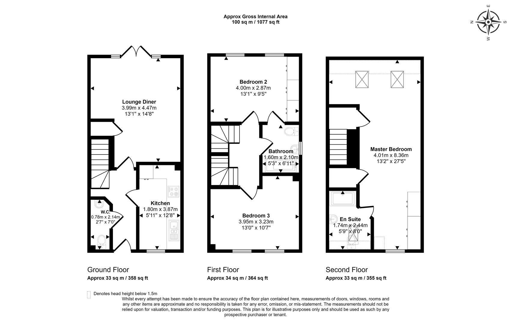
Experience the grandeur of this remarkable three-storey home, featuring generously sized rooms and abundant storage options. The ground floor welcomes you with a delightful lounge/diner located at the rear of the property, where French doors seamlessly link the indoor and outdoor spaces. At the front, a modern kitchen awaits, accompanied by a separate WC and a convenient storage cupboard.

The first floor accommodates 2 spacious double bedrooms situated at the front and rear of the property, providing generous storage and floor area. A family bathroom serves as a dividing space between these two bedrooms.
The second floor provides an expansive main bedroom, which covers the entire floor space and includes a dressing area, en-suite and further storage cupboards!

Living here means you can enjoy country walks at Northumberlandia, just minutes from your doorstep. As well as being a short drive or walk from Manor Walks shopping centre and Cramlington train station. With local amenities, close access to the A19 and A1 and schools rated 'Good' nearby, West Meadows is the perfect place for your family to call home.

*Hyperoptic broadband pre-installed

*Council Tax TBC.

Lomond on behalf of Lloyds Living, part of Lloyds Banking Group operates a growing portfolio of more than 3,000 professionally managed homes for rent, improving access to good value, quality, sustainable housing across the UK. Lloyds Living helps to support investment into local communities by building and renting homes that people want, in the places they are needed.

Property Ref: 58799_34140092

Share:

Similar Properties

Violet Drive, Cramlington, Newcastle Upon Tyne

3 Bedroom Townhouse | £1,250pcm

ZERO DEPOSIT OPTION AVAILABLE. Jan Forster Estates are delighted to offer this brand new 'Norbury', located in the magni...

Dandelion, Cramlington, Newcastle Upon Tyne

3 Bedroom Townhouse | £1,250pcm

ZERO DEPOSIT OPTION AVAILABLE. Jan Forster Estates are delighted to offer this brand new 'Norbury', located in the magni...

Dandelion, Cramlington, Newcastle Upon Tyne

3 Bedroom Townhouse | £1,250pcm

ZERO DEPOSIT OPTION AVAILABLE. Jan Forster Estates are delighted to offer this brand new 'Brentford', located in the mag...

Lavender Way, West Meadows, Cramlington

3 Bedroom Semi-Detached House | £1,275pcm

ZERO DEPOSIT OPTION AVAILABLE. Jan Forster Estates are delighted to offer this brand new 'Brentford', located in West Me...

Lavender Way, Cramlington, Newcastle Upon Tyne

3 Bedroom Townhouse | £1,275pcm

ZERO DEPOSIT OPTION AVAILABLE. Jan Forster Estates are delighted to offer this brand new 'Norbury', located in the magni...

Violet Drive, Cramlington, Newcastle Upon Tyne

3 Bedroom Townhouse | £1,275pcm

ZERO DEPOSIT OPTION AVAILABLE. Jan Forster Estates are delighted to offer this brand new 'Brentford', located in the mag...

Jan Forster Estates (High Heaton)

159 Benton Road, High Heaton, Tyne and Wear, NE7 7DU

0191 270 1122

How much is your home worth?

Use our short form to request a valuation of your property.

Request a Valuation
©2025 The Guild of Property Professionals. All rights reserved. Terms and Conditions | Privacy Policy | Cookie Policy | Complaints Policy | Members Login
The Guild of Property Professionals Trading Address: 121 Park Lane, London W1K 7AG. GPEA Limited. Registered in England & Wales.  Company No: 02819824.  Registered Office Address: 2 St. Stephen's Court, St. Stephen's Road, Bournemouth, Dorset, England, BH2 6LA.  VAT Registration No: 576 8795 61
Book a Property Valuation Update Cookies Preferences