Castleford Road, Normanton

£675pcm

2 Bedroom Flat for rent in Normanton

1 2 1
  • First Floor Flat
  • Good Size Lounge/Diner
  • Fitted Modern Kitchen
  • Two Good Sized Bedrooms
  • Three Piece Bathroom
  • Council Tax Band A
  • EPC Grade D

Welcome to this impeccably designed property nestled in the vibrant neighbourhood of Normanton. Situated in a desirable location, this flat offers access to local amenities, including shops, cafes, and transport links, ensuring a vibrant and convenient lifestyle at your doorstep. With its perfect design and prime location, this property presents an exceptional opportunity for comfortable living in a thriving community.

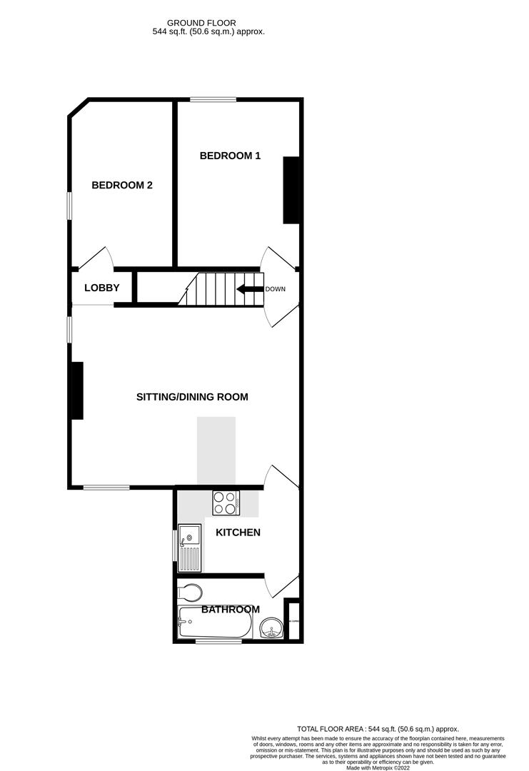
Entrance Lobby - Entrance to flat from paneled door, Stairs to first floor.

Lounge/Diner - 3.96m x 5.15 (max) (12'11" x 16'10" (max)) - Large, bright dual aspect room with dining area and wall mounted electric fire.

Kitchen - 1.92m x 2.74m (6'3" x 8'11") - Modern fitted units with tiled walls, base and wall cupboards, work surfaces, single drainer stainless steel sink, 4 ring ceramic hob and built in electric oven with extractor hood, plumbing for a washing machine. Electric radiator and rear facing window.

Bathroom - 1.463m x 2.44m (4'9" x 8'0") - 3 piece suite, low flush wc pedestal and paneled bath with electric shower over. Cylinder/airing cupboard, opaque window, vinyl floor and shower rail.

Bedroom 1 - 2.74m x 3.719m (max) (8'11" x 12'2" (max)) - Carpeted room with tv point and electric radiator, window to the front.

Bedroom 2 - 2.286m x 3.719m (max) (7'5" x 12'2" (max)) - Carpeted room with tv point and electric radiator, window to side.

Property Ref: 53422_34184600

Share:

Similar Properties

Shakespeare Crescent, Castleford

2 Bedroom Flat | £675pcm

Nestled within a serene cul-de-sac, this charming two-bedroom ground floor flat offers an ideal retreat for comfortable...

Queen Street, Castleford

1 Bedroom Flat | £600pcm

We are pleased to present this well-situated and competitively priced one-bedroom flat, ideally located within walking d...

Station Lane, Featherstone

1 Bedroom Flat | £575pcm

This first-floor flat centrally located in Featherstone on Station Lane. The location of this apartment is truly ideal,...

Crossman Drive, Normanton

2 Bedroom End of Terrace House | £750pcm

Located in Normanton, this delightful two-bedroom end terrace house on Crossman Drive is now available to let. This prop...

Richmond Street, Castleford

2 Bedroom Terraced House | £775pcm

This well presented two bedroom terrace house is ideal for any small family. Situated in a popular and convenient locati...

The Square, Castleford

2 Bedroom Flat | £775pcm

COMING SOON! This two-bedroom first-floor flat situated in the Airedale area of Castleford, conveniently positioned abov...

Castle Dwellings (Castleford)

22 Bank Street, Castleford, West Yorkshire, WF10 1JD

01977 285 111

How much is your home worth?

Use our short form to request a valuation of your property.

Request a Valuation
©2025 The Guild of Property Professionals. All rights reserved. Terms and Conditions | Privacy Policy | Cookie Policy | Complaints Policy | Members Login
The Guild of Property Professionals Trading Address: 121 Park Lane, London W1K 7AG. GPEA Limited. Registered in England & Wales.  Company No: 02819824.  Registered Office Address: 2 St. Stephen's Court, St. Stephen's Road, Bournemouth, Dorset, England, BH2 6LA.  VAT Registration No: 576 8795 61
Book a Property Valuation Update Cookies Preferences