Mulberry Court, Taverham, Norwich

£700pcm
Let Agreed
This property listing is now Let Agreed

1 Bedroom End of Terrace House for rent in Norwich

1 1 1
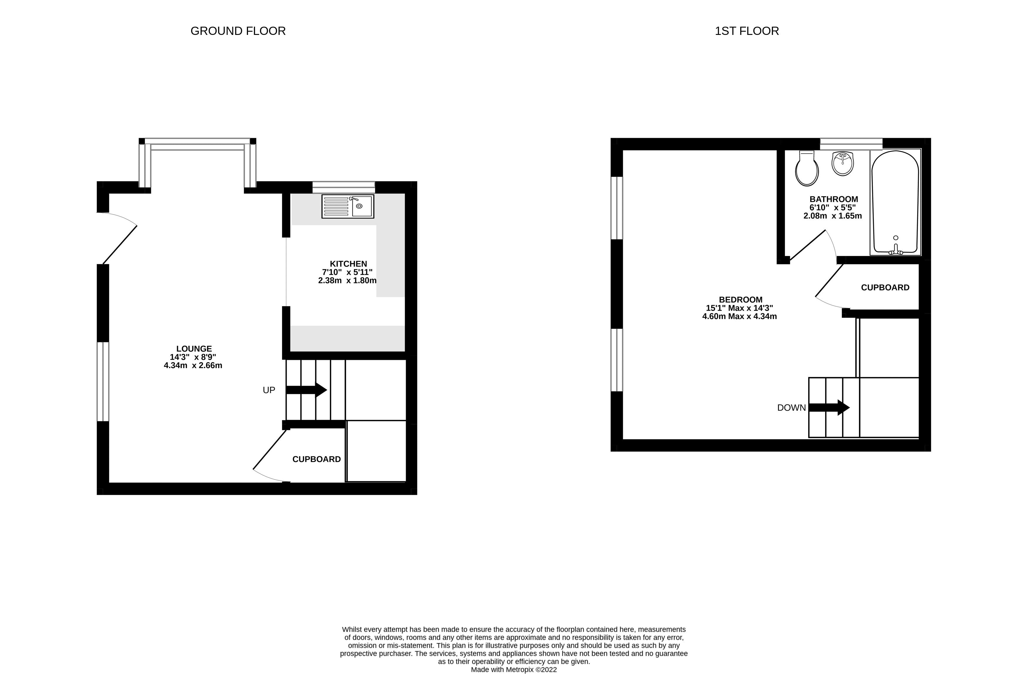
  • End Of Terrace House
  • One Spacious Double Bedroom
  • 14ft Bay Fronted Lounge
  • Kitchen
  • Family Bathroom
  • Ample Storage
  • Allocated Parking
  • Sought After Taverham Cul-De-Sac Position
  • Available From Late April
  • Long Term Tenant Preferred & Pets Considered

***READY TO RENT FROM EARLY MAY*** Iconic estate agents are delighted to offer this ONE bedroom, end of terrace house situated in a sought after cul-de-sac in this central Taverham location. The property offers accommodation which comprises; 14ft bay fronted lounge, kitchen, two storage cupboards, spacious double bedroom and a separate family bathroom. Outside there is an allocated parking space and a selection of visitor spaces positioned around the close. The property is situated within easy access to the local shops, amenities and is walking distance to regular bus service. Early viewings are strongly advised, so call Iconic today.

***READY TO RENT FROM EARLY MAY*** Iconic estate agents are delighted to offer this ONE bedroom, end of terrace house situated in a sought after cul-de-sac in this central Taverham location. The property offers accommodation which comprises; 14ft bay fronted lounge, kitchen, two storage cupboards, spacious double bedroom and a separate family bathroom. Outside there is an allocated parking space and a selection of visitor spaces positioned around the close. The property is situated within easy access to the local shops, amenities and is walking distance to regular bus service. Early viewings are strongly advised, so call Iconic today.

 

 

 

Property Ref: EAXML11851_11296437

Share:

Similar Properties

Hotblack Road, Norwich

1 Bedroom Flat | £700pcm

***AVAILABLE IMMEDIATELY*** A superb one bedroom first floor flat situated in the popular NR2 postcode. The accommodatio...

Paradise Place, Norwich

1 Bedroom Ground Floor Flat | £675pcm

***CITY CENTRE LIVING*** Iconic estate agents are delighted to offer for rent, this well-presented ground floor apartmen...

Church Street, Brisley, Dereham

2 Bedroom Cottage | £650pcm

***CHARACTER COTTAGE WITH FIELD VIEWS*** Iconic are pleased to offer for let this two bedroom mid terrace cottage situat...

Mulberry Court, Taverham, Norwich

1 Bedroom Apartment | £750pcm

**AVAILABLE FROM THE END OF APRIL** Iconic estate agents are pleased to offer this first floor one bedroom apartment sit...

Mulberry Court, Taverham, Norwich

1 Bedroom Apartment | £750pcm

***READY TO RENT*** Iconic estate agents are pleased to offer to the market, this immaculately presented first floor apa...

Snowberry Close, Taverham, Norwich

1 Bedroom House | £750pcm

An attractive one bedroom house situated in the popular location of Taverham. Situated close to all road links and good...

Iconic (Norwich)

Taverham, Norwich, Norfolk, NR8 6LE

01603 261104

How much is your home worth?

Use our short form to request a valuation of your property.

Request a Valuation
©2026 The Guild of Property Professionals. All rights reserved. Terms and Conditions | Privacy Policy | Cookie Policy | Complaints Policy | Members Login
The Guild of Property Professionals Trading Address: 121 Park Lane, London W1K 7AG. GPEA Limited. Registered in England & Wales.  Company No: 02819824.  Registered Office Address: 2 St. Stephen's Court, St. Stephen's Road, Bournemouth, Dorset, England, BH2 6LA.  VAT Registration No: 576 8795 61
Book a Property Valuation Update Cookies Preferences