Hotblack Road, Norwich

£800pcm
Let Agreed
This property listing is now Let Agreed

1 Bedroom Ground Floor Flat for rent in Norwich

1 1 1
  • Ground Floor Flat in Located in NR2
  • Generous Rear Garden
  • Modern Electric Heating Throughout
  • Redecorated and Carpeted
  • FItted Kitchen
  • Lounge
  • Generous Bedroom
  • Secure Entrance
  • Council Tax Band A
  • EPC Rating E

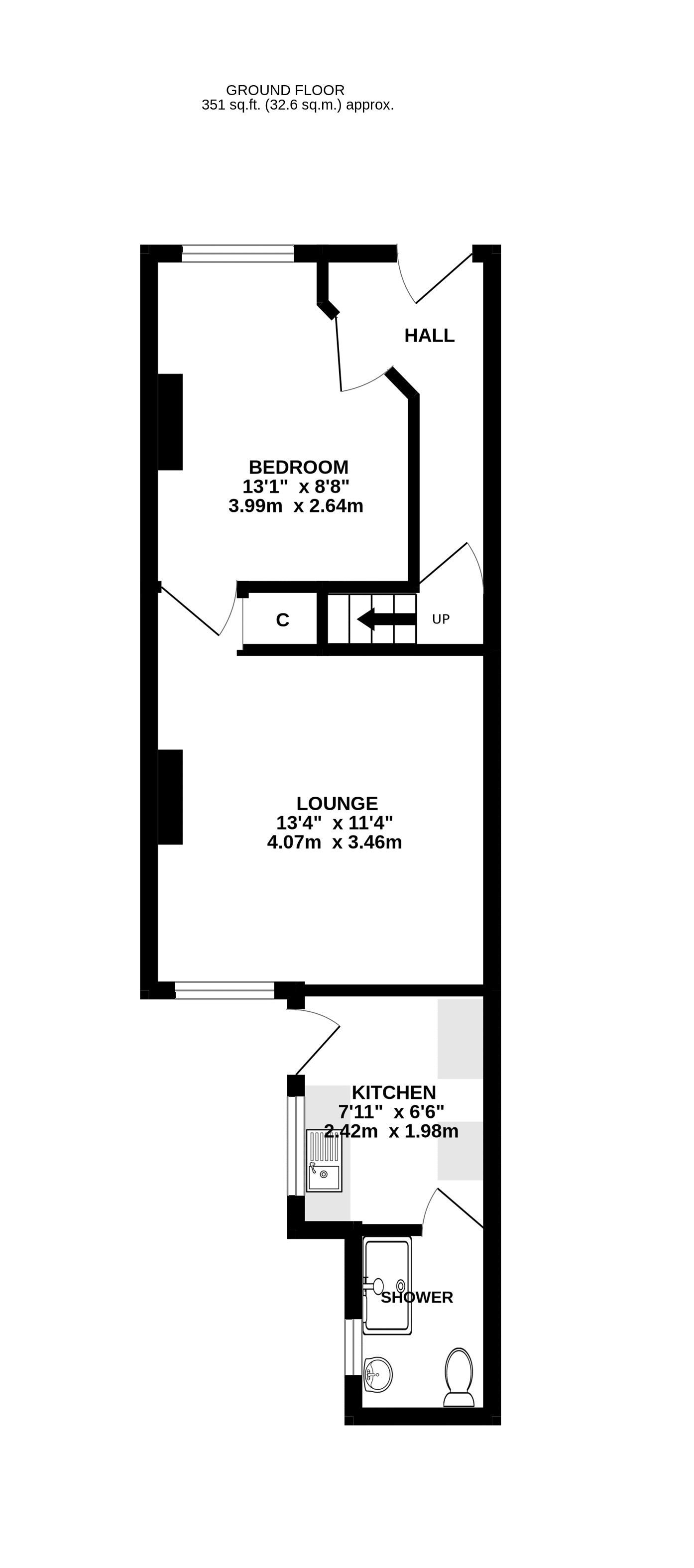
***IMMEDIATE AVAILABILITY*** Iconic are pleased to bring to the market this ground floor one bedroom flat situated in the popular NR2 postcode. The property occupies a good position close to local amenities and also offers good transport links to both Norwich City Centre, NNUH and university. The accommodation comprises of a shared entrance hallway which services just two flats with an entrance door on the right. There is a well-proportioned bedroom, separate lounge, fitted kitchen and a shower room. The property also has an impressive long garden to the rear aspect. Having been redecorated and carpeted throughout this great home is ready to move into.

Property Ref: EAXML11851_12785373

Share:

Similar Properties

Harwood Road, Norwich

2 Bedroom Apartment | £800pcm

****SPACIOUS APARTMENT WITHIN EASY ACCESS TO THE CITY CENTRE**** Iconic estate agents are delighted to offer for rent, t...

Glenmore Gardens, Norwich

2 Bedroom Apartment | £800pcm

A well-presented two-bedroom first floor apartment ideally situated close to the city centre and a wide range of local a...

Tower Close, Old Costessey, Norwich

2 Bedroom Flat | £800pcm

***READY TO RENT*** Iconic estate agents are pleased to market this two-bedroom first floor flat situated in a cul-de-sa...

Nelson Road North, Great Yarmouth

3 Bedroom House | £825pcm

***READY TO RENT AT THE END OF APRIL*** Iconic estate agents are delighted to offer to let, this three bedroom mid terra...

Meadow Way, Hellesdon, Norwich

3 Bedroom Bungalow | £825pcm

****NOW LET**** Iconic estate agents are delighted to offer for rent this two/three bedroom semi-detached bungalow situa...

Holt Road, Holt

2 Bedroom Cottage | £830pcm

***CHARACTER AND CHARM*** Iconic estate agents are pleased to offer for let this Intriguing character cottage featuring...

Iconic (Norwich)

Taverham, Norwich, Norfolk, NR8 6LE

01603 261104

How much is your home worth?

Use our short form to request a valuation of your property.

Request a Valuation
©2026 The Guild of Property Professionals. All rights reserved. Terms and Conditions | Privacy Policy | Cookie Policy | Complaints Policy | Members Login
The Guild of Property Professionals Trading Address: 121 Park Lane, London W1K 7AG. GPEA Limited. Registered in England & Wales.  Company No: 02819824.  Registered Office Address: 2 St. Stephen's Court, St. Stephen's Road, Bournemouth, Dorset, England, BH2 6LA.  VAT Registration No: 576 8795 61
Book a Property Valuation Update Cookies Preferences