Berrington Road, Hellesdon, Norwich

£1,250pcm
Let Agreed
This property listing is now Let Agreed

3 Bedroom Chalet for rent in Norwich

1 3 1
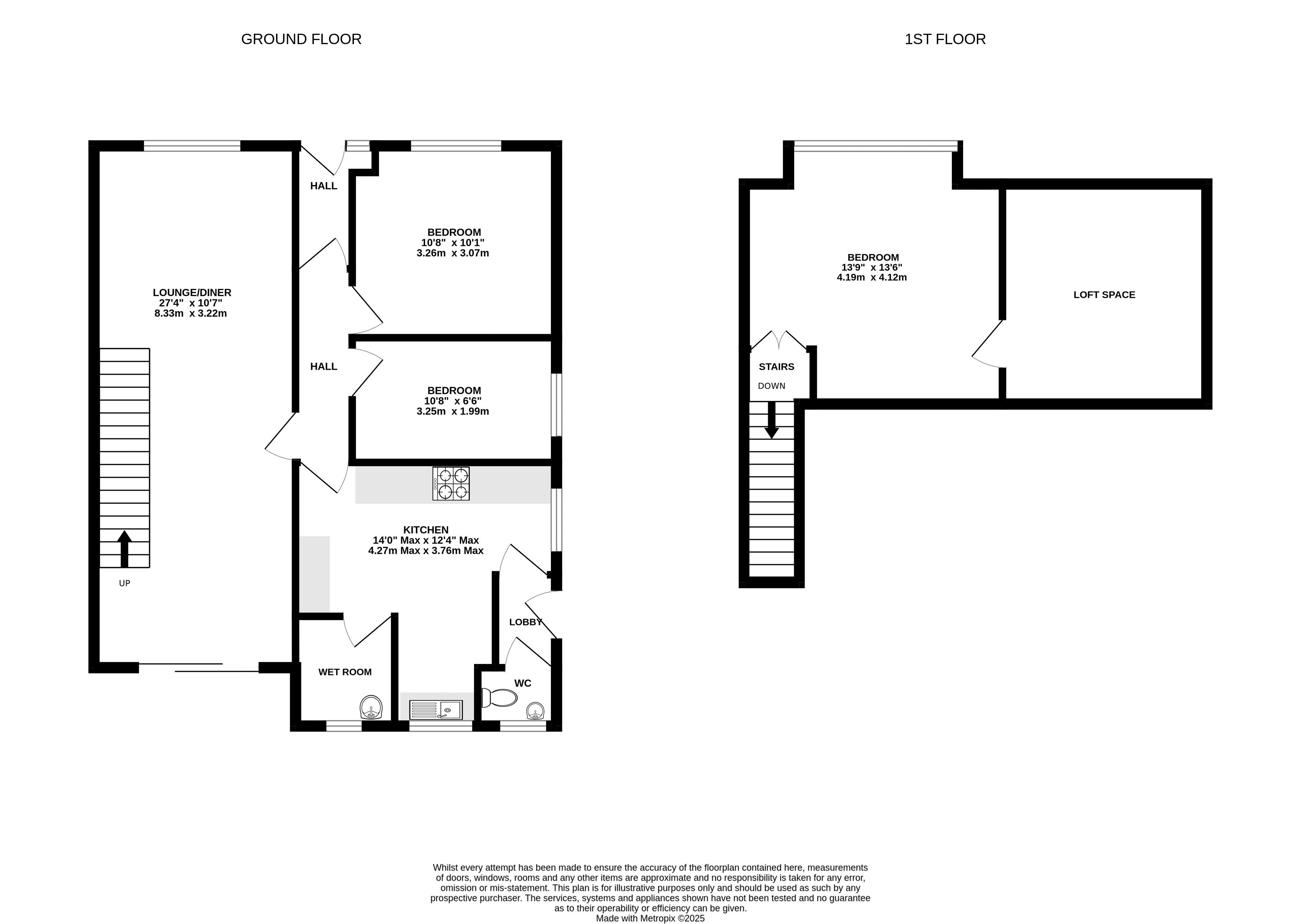
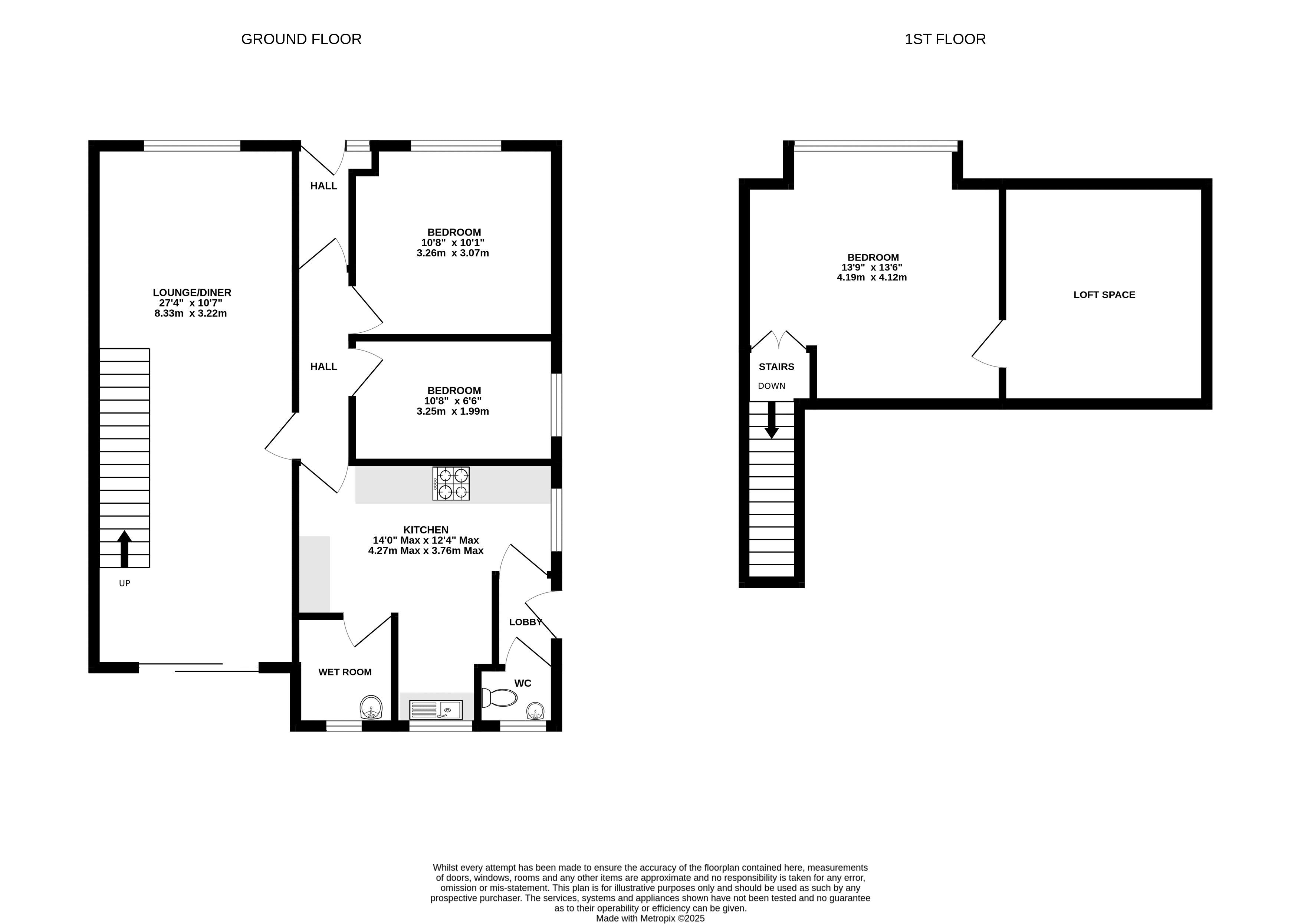
  • Recently Renovated Semi Detached Chalet
  • Three Bedrooms (Two Downstairs)
  • Wet Room Shower Room
  • 27ft Lounge/Diner
  • Kitchen With Upgraded Appliances
  • South Facing Rear Garden
  • Ample Off Road Parking
  • Entrance Hall With New Flooring
  • Ready To Rent
  • Epc Rating C / Council Tax Band C

***READY TO RENT*** Recently Renovated Three Bedroom Semi-Detached Chalet – Desirable Hellesdon Location. Iconic Estate Agents are delighted to offer to let this beautifully refurbished semi-detached chalet situated in a highly sought-after Hellesdon position. The property has undergone extensive renovation throughout, including new electrics, a new boiler, and complete redecoration, providing a modern and comfortable home ready to move into. The accommodation comprises a welcoming entrance hall, a spacious 27ft open-plan lounge/dining room, and a stylish updated kitchen with a brand-new hob and oven. The ground floor also benefits from a modern wet room and a separate WC. There are two bedrooms off the entrance hall while upstairs there is a well-proportioned double bedroom, ideal for families or professionals seeking extra space. Outside, the property offers ample off-road parking to the front and side. Please note, the garage will be retained by the landlord for storage, however tenants have full use of the sunny rear garden and shed. Located close to well-regarded local schools, shops, and amenities, this fantastic home is perfectly positioned to enjoy all that Hellesdon has to offer.

Property Ref: EAXML11851_12785349

Share:

Similar Properties

Olive Avenue, Newton Flotman, Norwich

3 Bedroom Semi-Detached House | £1,250pcm

Iconic estate agents are delighted to bring to the rental market this immaculately presented three bedroom semi detache...

Purland Road, Norwich

3 Bedroom Semi-Detached House | £1,250pcm

Situated on the popular eastern side of Norwich, this three-bedroom semi-detached home has recently undergone cosmetic u...

Lloyd Road, Taverham, Norwich

3 Bedroom Bungalow | £1,250pcm

***READY TO RENT*** Iconic estate agents are delighted to offer to let, this well-presented semi-detached bungalow in th...

Holt Road, Norwich

3 Bedroom Chalet | £1,300pcm

A two/three bedroom detached chalet home in the popular village of Horsford. Occupying a generous plot, this property i...

Nightingale Drive, Taverham, Norwich

3 Bedroom House | £1,300pcm

***WELL PRESENTED DETACHED FAMILY HOME*** Iconic estate agents are pleased to offer for let, this well presented detache...

Beverley Way, Drayton, Norwich

3 Bedroom Bungalow | £1,350pcm

***AVAILABLE TO RENT FROM END OF AUGUST*** Iconic estate agents are pleased to bring to the rental market this lovely th...

Iconic (Norwich)

Taverham, Norwich, Norfolk, NR8 6LE

01603 261104

How much is your home worth?

Use our short form to request a valuation of your property.

Request a Valuation
©2026 The Guild of Property Professionals. All rights reserved. Terms and Conditions | Privacy Policy | Cookie Policy | Complaints Policy | Members Login
The Guild of Property Professionals Trading Address: 121 Park Lane, London W1K 7AG. GPEA Limited. Registered in England & Wales.  Company No: 02819824.  Registered Office Address: 2 St. Stephen's Court, St. Stephen's Road, Bournemouth, Dorset, England, BH2 6LA.  VAT Registration No: 576 8795 61
Book a Property Valuation Update Cookies Preferences