Plymstock, Plymouth

£1,450pcm
Let Agreed
This property listing is now Let Agreed

3 Bedroom Semi-Detached House for rent in Plymouth

1 3 1
  • Older-style extended semi-detached house
  • Very popular central Plymstock location
  • Available from 22 September 2025
  • Unfurnished accommodation
  • 3 bedrooms & family bathroom
  • Feature kitchen/dining room
  • Impressive-sized lounge
  • Ample off-road parking & garage
  • Lovely southerly-facing rear garden

Beautifully-presented older-style semi-detached property with accommodation briefly comprising 3 bedrooms, family bathroom, lovely extended ground floor accommodation including a feature lounge, kitchen/dining room & separate downstairs cloakroom/WC. Ample off-road parking to the front & garage. Lovely southerly-facing enclosed rear garden. Available unfurnished on a long-term basis.

Dean Cross Road, Plymstock, Pl9 7Az -

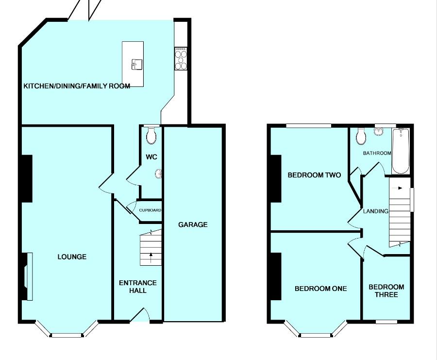
Accommodation - Access to the property is gained via the part double-glazed entrance door leading into the entrance hall.

Entrance Hall - 4.70m x 1.75m incl stairs (15'5 x 5'9 incl stairs) - Exposed timber floor. Under-stairs storage cupboard housing the gas boiler. Stairs rising to the first floor accommodation. Doors providing access to the ground floor accommodation.

Downstairs Cloakroom/Wc - Low level toilet and sink unit. Tiled floor. Built-in extractor fan. Window to the rear elevation.

Lounge - 8.10m into bay x 3.48m (26'7 into bay x 11'5) - This room could be utilised as a lounge/dining room if so required. 2 fireplaces. Exposed timber floor. Double-glazed bay window to the front elevation. Opening overlooking the kitchen/dining room.

Kitchen/Dining Room - 6.35m x 3.96m (20'10 x 13') - A lovely light, bright open space with vaulted ceiling. 2 Velux roof windows to the rear elevation. Bi-folding doors opening to the rear patio providing a view of the garden. Within the kitchen area there is a free-standing gas range cooker with a stainless-steel splash-back and double-sized extractor hood which will be included in the tenancy. Wooden work surfaces with tiled splash-backs. Island unit with stainless-steel work surface and drainer. Built-in dishwasher.

First Floor Landing - Double-glazed window to the side elevation. Loft hatch, please note this may well be locked and not used for the tenancy. Doors providing access to the first floor accommodation.

Bathroom - 2.31m x 1.73m (7'7 x 5'8) - Comprising a bath with tiled area surround, shower unit with spray attachment, small shower screen and rail, low level toilet and a pedestal wash basin with mixer tap. Vertical towel rail/radiator. Cupboard with shelving. Obscured double-glazed window to the rear elevation.

Bedroom Two - 3.89m x 3.53m at widest point (12'9 x 11'7 at wide - Double-glazed window to the rear elevation with a lovely open aspect over local rooftops and views towards Burrow Hill and the surrounding district.

Bedroom One - 4.09m into bay x 3.56m (13'5 into bay x 11'8) - Double-glazed bay window to the front elevation.

Bedroom Three - 2.41m x 1.75m (7'11 x 5'9) - Double-glazed window to the front elevation.

Outside - To the front of the property there is a hedged enclosed gravelled front area with ample parking together with some trees and bushes. The rear garden is southerly-facing and gently sloping with a good-sized patio area adjacent to the rear of the property leading to a further lawned section of garden beyond which is a further planted section with a shed. There are a number of mature shrubs and trees.

Council Tax - Plymouth City Council
Council tax band D

Rental Holding Deposit - The agent may require a holding deposit equivalent to a week's rent in order to secure the property. This amount would then be deducted from the 1st month's rent.

Property Ref: 11002660_32187549

Share:

Similar Properties

Ford, Plymouth

4 Bedroom House | £1,450pcm

Fabulous period property, which has been recently refurbished, available in August 2024 on a long-term basis. The accomm...

Philip Gardens, Plymstock

4 Bedroom Detached House | £1,400pcm

Available to let from January 2019 is this executive four bedroom house with double garage. The property briefly compris...

Barton Road, Plymouth

4 Bedroom House | £1,400pcm

Well-appointed modern 3-storey family home overlooking Hooe Lake available from April 2023 for long-term rental. Unfurni...

Candish Drive, Plymouth

3 Bedroom Detached Bungalow | £1,475pcm

Delightful detached bungalow located in a very popular residential area available from April 2024. The accommodation bri...

Plympton, Plymouth

3 Bedroom Semi-Detached House | £1,495pcm

Available now is this stunning completely refurbished semi-detached family home located in a very popular part of Plympt...

Elburton, Plymouth

4 Bedroom Detached House | £1,500pcm

Detached family home with unfurnished accommodation - available November 2024 & briefly comprising 2 receptions, kitchen...

Julian Marks Estate Agents (Plymstock)

2 The Broadway, Plymstock, Plymstock, Devon, PL9 7AW

01752 401128

How much is your home worth?

Use our short form to request a valuation of your property.

Request a Valuation
©2025 The Guild of Property Professionals. All rights reserved. Terms and Conditions | Privacy Policy | Cookie Policy | Complaints Policy | Members Login
The Guild of Property Professionals Trading Address: 121 Park Lane, London W1K 7AG. GPEA Limited. Registered in England & Wales.  Company No: 02819824.  Registered Office Address: 2 St. Stephen's Court, St. Stephen's Road, Bournemouth, Dorset, England, BH2 6LA.  VAT Registration No: 576 8795 61
Book a Property Valuation Update Cookies Preferences