Staddiscombe, Plymouth

£795pcm
Let Agreed
This property listing is now Let Agreed

1 Bedroom Flat for rent in Plymouth

1 1 1
  • Purpose-built ground floor flat available from end of May/early June 2024
  • Recently refurbished accommodation throughout
  • Long-term rental, unfurnished accommodation
  • Lounge/dining room
  • Modern fitted kitchen
  • 1 bedroom
  • Modern shower room
  • Enclosed private garden
  • Electric heating
  • Double-glazing

Available from end of May/early June 2024 is this lovely refurbished purpose-built ground floor garden flat. The accommodation briefly comprises a lounge/dining room, modern fitted kitchen, 1 double bedroom with wardrobe & new modern shower room. Double-glazing & electric heating. Enclosed private rear garden.

Battershall Close, Staddiscombe, Pl9 9Uu -

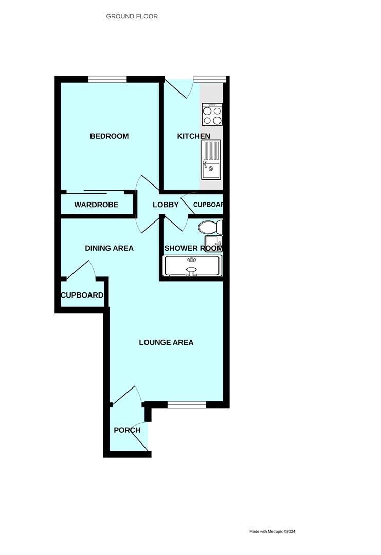
Accommodation - Access to the property is gained via the uPVC double-glazed entrance door leading into the entrance porch.

Entrance Porch - Inner door leading into the lounge/dining room.

Lounge Area - 3.29 x 3.14 (10'9" x 10'3") - Wall-mounted electric heater. Double-glazed window to the front elevation.

Dining Area - 2.71 x 1.95 (8'10" x 6'4") - Under-stairs storage cupboard. Wall-mounted electric heater. Doorway leading into the inner lobby.

Inner Lobby - Built-in cupboard with shelving and housing the hot water cylinder. Doorway leading to the bedroom.

Bedroom - 2.72 x 3.28 to wardrobe face (8'11" x 10'9" to war - Built-in wardrobes to one wall. Wall-mounted electric heater. Double-glazed window to the rear elevation overlooking the garden.

Shower Room - 1.88 x 1.64 (6'2" x 5'4") - Comprising a walk-in shower cubicle with shower unit and spray attachment, sink unit with mixer tap and a cupboard beneath and a low level toilet. Wall-mounted electric heater.

Kitchen - 3 x 1.70 incl kitchen units (9'10" x 5'6" incl kit - Series of matching eye-level and base units with work surfaces. Inset single drainer sink unit with mixer tap. Built-in 4-ring induction hob with an electric oven beneath. Space and plumbing for washing machine. Space for under-counter fridge. Double-glazed window. Part double-glazed door leading out to the rear garden.

Outside - To the rear of the property is a level enclosed fenced garden area which is paved.

Council Tax - Plymouth City Council
Council tax band B

Rental Holding Deposit - The agent may require a holding deposit equivalent to a week's rent in order to secure the property. This amount would then be deducted from the 1st month's rent.

Property Ref: 33111066

Share:

Similar Properties

Plymstock, Plymouth

2 Bedroom Semi-Detached House | £795pcm

Character semi-detached cottage located in a very popular central, convenient part of Plymstock. The unfurnished accommo...

46 Ebrington Street, Plymouth

1 Bedroom Apartment | £795pcm

Located in the heart of the City Centre of Plymouth is this modern purposed built apartment. Sitting on the top floor in...

Green Park Road, Plymstock, Plymouth

2 Bedroom Semi-Detached Bungalow | £795pcm

Very well-presented semi-detached bungalow with unfurnished accommodation, comprising lounge, dining room, newly-fitted...

Clovelly View, Turnchapel

3 Bedroom Terraced House | £800pcm

Lovely character home, refurbished throughout & nestled in this waterside hamlet with 2 balconies overlooking the quay....

Plymstock Road, Plymstock, Plymouth

2 Bedroom Detached Bungalow | £800pcm

Detached bungalow in central Plymstock with unfurnished accommodation comprising fitted kitchen, lounge, conservatory, 2...

Plymstock, Plymouth

2 Bedroom Semi-Detached House | £800pcm

SORRY VIEWING DAY FULLY BOOKED - NO APPOINTMENTS AVAILABLE Modern semi-detached house in a popular central Plymstock loc...

Julian Marks Estate Agents (Plymstock)

2 The Broadway, Plymstock, Plymstock, Devon, PL9 7AW

01752 401128

How much is your home worth?

Use our short form to request a valuation of your property.

Request a Valuation
©2026 The Guild of Property Professionals. All rights reserved. Terms and Conditions | Privacy Policy | Cookie Policy | Complaints Policy | Members Login
The Guild of Property Professionals Trading Address: 121 Park Lane, London W1K 7AG. GPEA Limited. Registered in England & Wales.  Company No: 02819824.  Registered Office Address: 2 St. Stephen's Court, St. Stephen's Road, Bournemouth, Dorset, England, BH2 6LA.  VAT Registration No: 576 8795 61
Book a Property Valuation Update Cookies Preferences