Sutton Wharf, Plymouth

£950pcm
Let Agreed
This property listing is now Let Agreed

1 Bedroom Flat for rent in Plymouth

1 1 1
  • Fourth floor apartment
  • Popular central Plymouth location
  • Unfurnished accommodation
  • Available on a long-term basis from October 2024
  • Open-plan kitchen/living area
  • 1 double bedroom
  • Modern bathroom
  • Full range of appliances
  • Electric heating
  • Double-glazing

Available from October 2024 is this lovely 4th floor one-bedroom apartment located in the Barbican area of Plymouth, convenient for all the local amenities. The accommodation briefly comprises an open-plan kitchen/living area with a full range of appliances, one double bedroom and a modern bathroom. The property benefits from double-glazing & electric heating.

Dolphin House, Sutton Wharf, Plymouth, Pl4 0Bl -

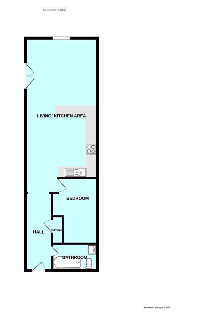
Accommodation - Access to the property is gained via the communal address door. Stairs and lift leading to the 4th floor. Solid entrance door leading into the entrance hall.

Entrance Hall - Entry phone system. Cupboard concealing the consumer unit. Built-in storage cupboard with shelving and housing the hot water tank. Laminate floor. Doors providing access to the accommodation.

Open-Plan Kitchen/Living Area - 9.11 overall length x 4.24 (29'10" overall length - Within the kitchen area there is a series of eye-level and base units with work surfaces. Built-in breakfast bar. Inset one-&-a-half bowl single drainer sink unit with mixer tap. Free-standing electric cooker. Integrated dishwasher. Washing machine. Free-standing fridge-freezer. Within the living/dining area there is an electric heater, shelving unit, double-glazed window to the rear elevation and double doors opening to the Juliette balcony to the side elevation with lovely open views over the local rooftops towards The Hoe and back towards Plymouth city centre. Laminate floor.

Bedroom - 3.85 x 2.58 (12'7" x 8'5") - Recessed storage area. Air conditioning unit.

Bathroom - 2.68 x 1.57 (8'9" x 5'1") - White modern suite comprising a panel bath with tiled area surround, shower unit with spray attachment and shower screen, sink unit with a vanity cupboard beneath and low level wc. Built-in extractor fan.

Council Tax - Plymouth City Council
Council tax band B

Rental Holding Deposit - The agent may require a holding deposit equivalent to a week's rent in order to secure the property. This amount would then be deducted from the 1st month's rent.

Property Ref: 11002660_33395606

Share:

Similar Properties

Plymstock, Plymouth

4 Bedroom Semi-Detached House | £950pcm

Extended family home with unfurnished accommodation available for long-term let from end June 2019, briefly comprising s...

Chaddlewood, Plymouth

4 Bedroom House | £950pcm

Link detached family home with unfurnished accommodation, available from September 2019, comprising modern kitchen, loun...

Plymstock, Plymouth

2 Bedroom Semi-Detached Bungalow | £950pcm

VIEWING DAY BOOKED . SORRY NO FURTHER APPOINTMENTS Older-style bungalow with accommodation briefly comprising kitchen/di...

Staddiscombe, Plymouth

3 Bedroom Semi-Detached House | £975pcm

Available now on a long-term basis is this lovely modern family home. It is unfurnished & has accommodation comprising f...

Plympton, Plymouth

2 Bedroom Terraced House | £975pcm

Available from April 2024 is this lovely terraced property located in a walkway within a popular cul-de-sac in Plympton....

Plympton, Plymouth

3 Bedroom Semi-Detached House | £995pcm

VIEWING DAY FULLY BOOKED - SORRY NO FURTHER APPOINTMENTS Available from the end of March 2022 is this conveniently locat...

Julian Marks Estate Agents (Plymstock)

2 The Broadway, Plymstock, Plymstock, Devon, PL9 7AW

01752 401128

How much is your home worth?

Use our short form to request a valuation of your property.

Request a Valuation
©2025 The Guild of Property Professionals. All rights reserved. Terms and Conditions | Privacy Policy | Cookie Policy | Complaints Policy | Members Login
The Guild of Property Professionals Trading Address: 121 Park Lane, London W1K 7AG. GPEA Limited. Registered in England & Wales.  Company No: 02819824.  Registered Office Address: 2 St. Stephen's Court, St. Stephen's Road, Bournemouth, Dorset, England, BH2 6LA.  VAT Registration No: 576 8795 61
Book a Property Valuation Update Cookies Preferences