Finkle Street, Pontefract

£950pcm

Commercial Property for rent in Pontefract

  • Prime location on Finkle Street, Pontefract town centre
  • Currently trading as a Turkish restaurant
  • Seating for over 34 diners in a comfortable layout
  • Well-positioned bar area with space for alcohol, glassware, fridges, and till system
  • Good-sized kitchen with ample room for equipment
  • Dedicated pot washing and preparation area with double sink, spray, chiller, and shelving
  • Side access door for deliveries and waste management
  • Customer WC facilities
  • Suitable for continued restaurant use or adaptable for alternative hospitality ventures
  • Option to purchase all appliances, furniture, and full contents for £15,000, offering a ready-to-trade opportunity

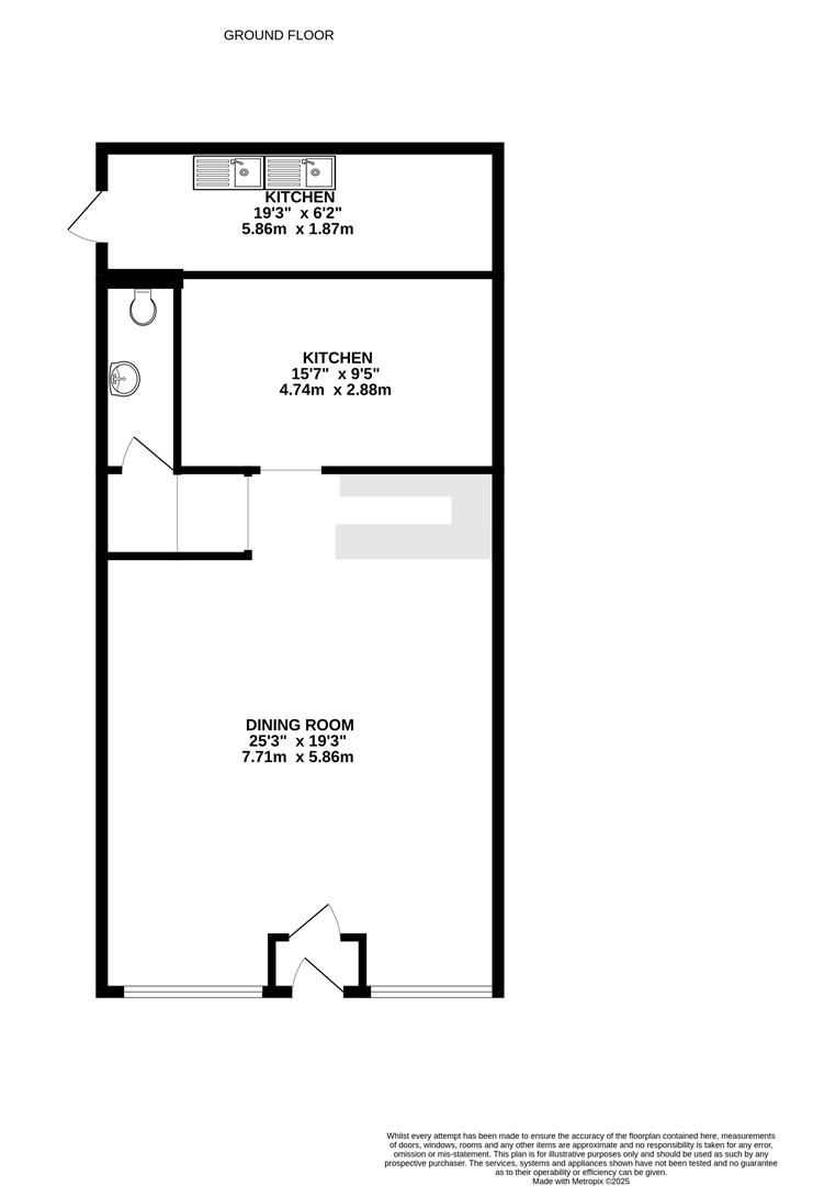
Located on Finkle Street in the heart of Pontefract, this well-presented commercial property is currently operating as a Turkish restaurant. The premises offer seating for over 34 covers, a welcoming bar area with ample storage and service space, a good-sized kitchen, and a dedicated pot washing/preparation area with double sinks, chiller, shelving, and side access. Customer WC facilities are also provided. In addition, all appliances, furniture, and the full contents within the premises can be purchased from the owner for £15,000, presenting an excellent turnkey opportunity for those looking to continue as a restaurant or adapt the space for a new hospitality venture.

Seating Area - 5.62 x 6.54 (18'5" x 21'5") - The restaurant features a well-arranged seating area with capacity for over 34 diners, offering a comfortable and welcoming environment. The layout provides flexibility to accommodate both small groups and larger parties, with space designed to maximise covers while maintaining a relaxed dining atmosphere. The décor and ample light enhance the setting, making it suitable for a variety of dining concepts.

Bar Area - 1.45 x 4.04 (4'9" x 13'3") - The property includes a well-positioned bar area with ample space for displaying and storing alcoholic beverages, glassware, and accessories. The layout provides room for a till system, under-counter fridges, and additional storage, ensuring an efficient and practical setup for serving customers. Designed for both functionality and ease of service, the bar complements the main dining area and enhances the overall flow of the restaurant.

Kitchen - 3.78 x 4.09 (12'4" x 13'5") - The property benefits from a good-sized kitchen measuring approximately 3.78m x 4.09m, providing ample space to accommodate all essential equipment required for the efficient operation of a busy restaurant. The layout allows for practical workflow and food preparation, with sufficient room for cooking appliances, refrigeration, and storage, making it well-suited to a wide range of cuisines.

Prep And Pot Washing Room - 1.87 x 3.86 (6'1" x 12'7") - The property includes a dedicated pot washing and preparation area, fitted with a double sink and spray for efficient cleaning. A chiller and ample shelving provide convenient storage and organisation, while a side access door adds practicality for deliveries and waste management. This space is designed to support the smooth running of the kitchen and overall restaurant operations.

Wc - 1.09 x 3.66 (3'6" x 12'0") -

Property Ref: 53422_34181369

Share:

Similar Properties

Poppy Fields View, Pontefract

2 Bedroom Not Specified | £950pcm

This attractive, part-furnished home is perfect for professionals or a small family, offering a well-laid-out and comfor...

Wheatcroft, Castleford

3 Bedroom Semi-Detached House | £900pcm

This amazing three bed semi-detached property is not to be missed! With enclosed gardens to both the front and rear of t...

The Square, Airedale, Castleford

2 Bedroom Flat | £800pcm

***ELECTRICITY AND WATER BILLS INCLUDED*** Embrace the charm of urban living in this inviting two-bedroom second-floor f...

Queens Park Drive, Castleford

Commercial Property | £1,000pcm

An exciting opportunity to take over a well-established café premises in a busy residential and local shopping area of C...

Glastonbury Avenue, Wakefield

3 Bedroom Detached House | £1,300pcm

ADDITIONAL PHOTOS TO FOLLOW - Nestled on Glastonbury Avenue in Wakefield, this three-bedroom detached house presents an...

Leeds Road, Castleford, Allerton Bywater

Commercial Property | £1,500pcm

Based in Castleford, on the bustling Leeds Road, this commercial property presents an exceptional opportunity for entrep...

Castle Dwellings (Castleford)

22 Bank Street, Castleford, West Yorkshire, WF10 1JD

01977 285 111

How much is your home worth?

Use our short form to request a valuation of your property.

Request a Valuation
©2025 The Guild of Property Professionals. All rights reserved. Terms and Conditions | Privacy Policy | Cookie Policy | Complaints Policy | Members Login
The Guild of Property Professionals Trading Address: 121 Park Lane, London W1K 7AG. GPEA Limited. Registered in England & Wales.  Company No: 02819824.  Registered Office Address: 2 St. Stephen's Court, St. Stephen's Road, Bournemouth, Dorset, England, BH2 6LA.  VAT Registration No: 576 8795 61
Book a Property Valuation Update Cookies Preferences