1 Cobwebs Corner, Brickyard, Porthcawl

£1,800pcm

3 Bedroom Semi-Detached House for rent in Porthcawl

1 3 1

A charming and beautifully presented fully furnished property located in the heart of Porthcawl, just a short walk from the beach and town centre.

This delightful home offers comfortable, turn-key living - ideal for professionals, couples, or those looking for a coastal retreat. The property includes modern furnishings throughout, a well-equipped kitchen, stylish living space, and cosy bedrooms - all ready to move straight in.

Council Tax Band: C (Bridgend County Borough Council)
Deposit: £2,076.92
Holding Deposit: £413.79
Parking options: On Street
Garden details: Front Garden
Electricity supply: Mains
Heating: Gas Mains
Water supply: Mains
Sewerage: Mains
Broadband: FTTC

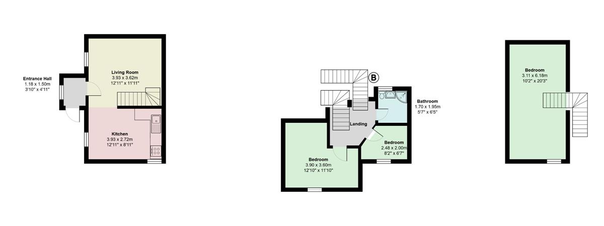
Entrance hall w: 1.18m x l: 1.5m x h: 2.2m (w: 3' 10" x l: 4' 11" x h: 7' 3")
Light Green barn door upon entry, white floorboards, white walls, one window overlooking front.

Living room w: 3.62m x l: 3.93m x h: 2.39m (w: 11' 11" x l: 12' 11" x h: 7' 10")
White painted floorboards, three white painted walls, one stone wall with a log burner, one window overlooking front, staircase leading upstairs, one white radiator.

Kitchen w: 2.72m x l: 3.93m x h: 2.42m (w: 8' 11" x l: 12' 11" x h: 7' 11")
White wooden floorboards, white walls with white tiles surrounding appliances, integrated black hob, white sink with silver tap, one window overlooking front, white cupboards and shelving unit, blue worktop.

Bedroom 1 w: 3.9m x l: 3.6m x h: 2.2m (w: 12' 10" x l: 11' 10" x h: 7' 3")
blue carpet, three yellow walls, one yellow wallpapered wall with blue plant pattern, one white radiator, one window overlooking front.

Bedroom 2 w: 2.5m x l: 2.1m x h: 2.2m (w: 8' 2" x l: 6' 11" x h: 7' 3")
Blue carpet, three yellow walls, one yellow patterned wallpapered wall, one white radiator, one window overlooking front.

Bathroom w: 1.7m x l: 1.95m x h: 2.2m (w: 5' 7" x l: 6' 5" x h: 7' 3")
Wooden floorboards, white affect walls, white sink with silver tap, white toilet, white shower with glass sliding door, silver towel radiator, one window overlooking rear.

Bedroom 3 w: 3m x l: 6.2m x h: 1.4m (w: 9' 10" x l: 20' 4" x h: 4' 7")
Loft area, one side wooden floorboards, other side beige carpeted, white walls, one window overlooking side of the building.

Property Ref: RL1387

Share:

Similar Properties

Cwrt Pant Yr Awel, Lewistown, Bridgend

3 Bedroom Semi-Detached House | £1,250pcm

* Beautifully Presented Three Bedroom Semi * Smart Lettings are pleased to offer for let this beautifully presented thre...

55 Campbell Drive

2 Bedroom Flat | £1,150pcm

RARELY AVAILABLE Smart Lettings are pleased to present for rent, a spacious two bedroom flat, in the popular Windsor Qua...

20b Queen Street, Bridgend

Shop | £1,000pcm

Commercial Unit To Let - Former Kitchen Showroom / Deli / Pet Food RetailA well-presented commercial unit available to l...

Unit C7/2, Main Avenue Treforest Industrial Estate, Treforest Industrial Estate, Pontypridd

Commercial Property | £9,000pa

Commercial Unit To Let - Treforest Industrial EstateA well-positioned commercial unit of approximately 140m? is now avai...

High Street, Barry

Shop | £10,000pa

Prime Location, newly refurbished retail space available soon.....Please note Rent is Excluding VAT.

Former Barclays Bank PLC, - Bethcar Street, Ebbw Vale

Shop | £12,000pa

The property is arranged over ground and basement floors, providing a ground floor banking hall with ancillary accommoda...

Smart Lettings (Pontycymer)

Pontycymer, Bridgend, CF32 8DB

01656657033

How much is your home worth?

Use our short form to request a valuation of your property.

Request a Valuation
©2026 The Guild of Property Professionals. All rights reserved. Terms and Conditions | Privacy Policy | Cookie Policy | Complaints Policy | Members Login
The Guild of Property Professionals Trading Address: 121 Park Lane, London W1K 7AG. GPEA Limited. Registered in England & Wales.  Company No: 02819824.  Registered Office Address: 2 St. Stephen's Court, St. Stephen's Road, Bournemouth, Dorset, England, BH2 6LA.  VAT Registration No: 576 8795 61
Book a Property Valuation Update Cookies Preferences