London Road, POULTON

£1,550pcm
Let Agreed
This property listing is now Let Agreed

3 Bedroom Cottage for rent in Poulton

3 3 1
  • Beautiful Cotswold Cottage
  • 3 - 4 Bedrooms
  • 2 - 3 Reception Rooms
  • Beautiful Period Features
  • Gas Fired Central Heating
  • Large Off Road Parking Area
  • Available For A Long Let If Desired
  • Village Community Location

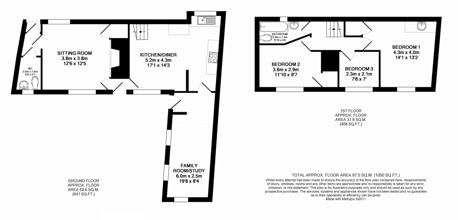
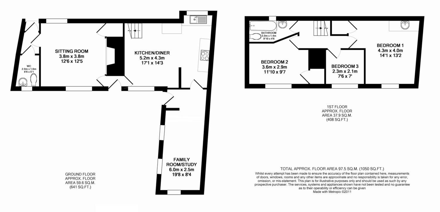
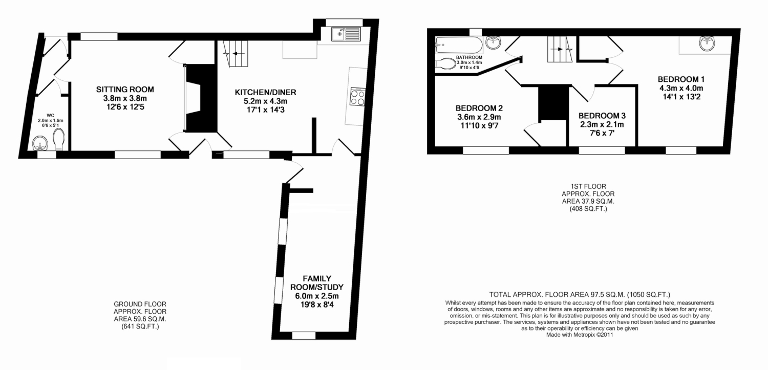
A spacious and recently updated 3-4 bedroom Cotswold stone cottage, situated in this popular and easily accessible village some 6 miles east of Cirencester, and with the added benefit of ample off road parking. Available immediately and for a long let if desired, the semi-detached accommodation offers a superb blend of modern convenience alongside traditional period features such as the impressive open fireplace in the lounge. In addition to the lovely, dual aspect lounge and beautifully wood-floored kitchen diner, the centrally heated cottage also benefits from a third, good-sized reception room which offers flexibility of use as additional family room, home office, or a guest bedroom 4 perhaps? Completing the ground floor is a useful cloakroom including WC, Belfast sink alongside space and plumbing for laundry as required. To the first floor, the cottage offers a total of 3 bedrooms - each with views over the garden and 2 of generous double proportions, together with a well-appointed family bathroom featuring a modern suite including over bath shower. Externally, the house is set back from the public road with a private, enclosed garden to the front and a large, rear parking area which is accessed via a sweeping gated driveway and with a handy timber storage shed, early viewing is highly recommended.
Viewings are welcomed by appointment 6 days a week although be aware that viewings may require at least 24 hours' notice to arrange access. Please note that prior to any subsequent tenancy offer being accepted, all prospective tenants will be required to supply identification documents and proof of affordability.

Agent notes: these particulars have been prepared as a general guide only. A detailed survey has not been carried out, nor the services, appliances, fittings, etc, been tested. If room sizes are included, they are for guidance and illustration purposes only. They may not be to scale and should not be relied upon for furnishing or other purposes. If there are any important matters likely to affect your decision to proceed, please contact us before viewing the property.

Tenant protection: Moore Allen & Innocent is a member of the royal institution of chartered surveyor's client money protection scheme, and a member of the property ombudsman independent redress scheme. You can find out more details via our website or by contacting the office directly.

Landlords: do you own a similar property? Moore Allen & Innocent are an independent, multi-award winning, sales and lettings estate agency with over 175 years of property experience across the Cotswolds and beyond. If you have a similar property that you would like rented out or are looking for an agent to take away the stress and manage a property for you, we would be delighted to discuss how we can help. For more information regarding our services and a free, no-obligation review, please contact us today.

Property Ref: 593341_10146604

Share:

Similar Properties

Whelford, Fairford

2 Bedroom Barn Conversion | £1,550pcm

*** MOORE ALLEN & INNOCENT *** are delighted to offer for rent this superb 2 BEDROOM, 2 SHOWER /BATHROOM property presen...

Barnsley Park, Barnsley

2 Bedroom Cottage | £1,550pcm

*** MOORE ALLEN & INNOCENT *** are very pleased to offer this BEAUTIFULLY CONVERTED 2 DOUBLE BEDROOM single storey cotta...

Bell Lane, Lechlade GL7

4 Bedroom Terraced House | £1,550pcm

*** MOORE ALLEN & INNOCENT *** are delighted to offer for rent this BEAUTIFULLY APPOINTED 4 BEDROOM family home with OFF...

Coxwell Street, CIRENCESTER

3 Bedroom Cottage | £1,575pcm

***Moore Allen & Innocent*** are very pleased to offer this classic 3 bedroom Cotswold stone period property nestled wit...

Farmington, Gloucestershire, GL54

3 Bedroom Semi-Detached House | £1,595pcm

*** MOORE ALLEN & INNOCENT *** are delighted to offer this 3 BEDROOM SEMI DETACHED House quietly situated within this PI...

Nightingale Way, SOUTH CERNEY

4 Bedroom Semi-Detached House | £1,595pcm

*** MOORE ALLEN & INNOCENT *** are thrilled to offer this modern 4 BEDROOM town house situated in the sought after CERNE...

Moore Allen & Innocent (Cirencester)

33 Castle Street, Cirencester, Gloucestershire, GL7 1QD

01285 648100

How much is your home worth?

Use our short form to request a valuation of your property.

Request a Valuation
©2026 The Guild of Property Professionals. All rights reserved. Terms and Conditions | Privacy Policy | Cookie Policy | Complaints Policy | Members Login
The Guild of Property Professionals Trading Address: 121 Park Lane, London W1K 7AG. GPEA Limited. Registered in England & Wales.  Company No: 02819824.  Registered Office Address: 2 St. Stephen's Court, St. Stephen's Road, Bournemouth, Dorset, England, BH2 6LA.  VAT Registration No: 576 8795 61
Book a Property Valuation Update Cookies Preferences