Quickswood , Primrose Hill NW3

£7,778pcm
Let
This property listing is now Let

5 Bedroom House for rent in Primrose Hill

1 5 3

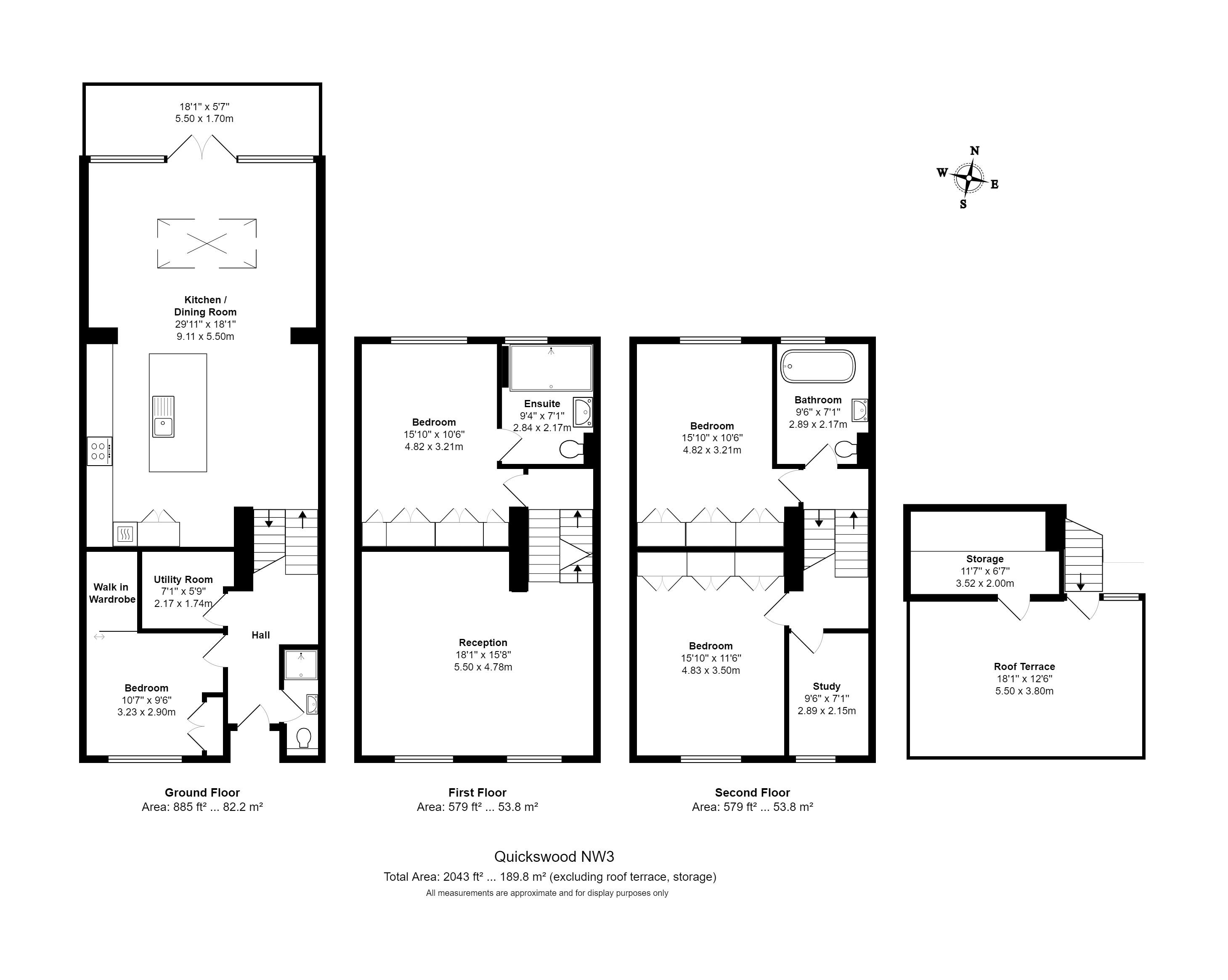
Stunning 4 / 5 bedroom , approx 2043 sq ft , 3 bathroom townhouse with large, decked, south- facing roof terrace in the much sought after Quickswood private estate. Located within a short walking distance of Primrose Hill as well as the shops and restaurants of England’s Lane and close to Chalk Farm (Northern Line). The house comprises; Ground floor; double bedroom with walk in wardrobe, separate shower room, utility room and storage space, leading up to a large spacious modern fully fitted kitchen / diner with central island, modern polished resin floor, and looking out to a small patio with a gorgeous living wall. A further few steps lead up to the first floor which comprises; a lovely bright reception room, the master suite with fitted wardrobes and large ensuite shower room. Second floor comprises; a further 2 double bedrooms with ample storage, spacious and modern family bathroom with freestanding bath plus an additional small bedroom / study, and access to a large, private decked south facing roof terrace with large storage cupboard. The house further benefits from off street parking, secure bike storage, wood floors, keyless entry, Nest alarm, locks and thermostats, access to communal green spaces within the estate and is available on an unfurnished/ part furnished by separate negotiation from the end of July. EPC rating - C / Council tax band - G / 6 week security deposit £11,970

Important Information

  • This Council Tax band for this property is: G

Property Ref: HAM_HAM230022

Share:

Similar Properties

Fitzjohns Avenue , Belsize Park NW3

5 Bedroom Flat | £7,778pcm

Imposing, bright and spacious, ground floor, five bedroom, three bathroom apartment with off street parking for one car,...

Adamson Road, Swiss Cottage, NW3

4 Bedroom Flat | £7,583pcm

Stunning, bespoke, three bedroom plus additional study, duplex apartment located over the raised and ground floors of a...

Strathmore Court, Park Road St Johns Wood

3 Bedroom Not Specified | £6,998pcm

Elegant three bedroom, two bathroom 1791 sq ft apartment located in a prestigious mansion building offering fabulous vie...

Fitzjohns Avenue, Belsize Park, NW3

5 Bedroom Flat | £8,558pcm

Spectacular 5 bedroom, 4.5 bathroom duplex apartment measuring approximately 2832 sq. ft with private lift access direct...

Carlingford Road, Hampstead, NW3

5 Bedroom Flat | £9,750pcm

Stunning, bespoke, five bedroom family home over three floors, approx 2,842 sq ft (264 sq m) finished to the highest of...

Strathmore Court, Park Road St Johns Wood

4 Bedroom Not Specified | £10,032pcm

Exquisite Sixth-Floor Penthouse with Breathtaking Views Over Regent’s Park. This superb sixth-floor penthouse apartment,...

Property Divas (Hampstead)

Rosslyn Hill, Hampstead, London, NW3 1NH

020 7431 8000

How much is your home worth?

Use our short form to request a valuation of your property.

Request a Valuation
©2026 The Guild of Property Professionals. All rights reserved. Terms and Conditions | Privacy Policy | Cookie Policy | Complaints Policy | Members Login
The Guild of Property Professionals Trading Address: 121 Park Lane, London W1K 7AG. GPEA Limited. Registered in England & Wales.  Company No: 02819824.  Registered Office Address: 2 St. Stephen's Court, St. Stephen's Road, Bournemouth, Dorset, England, BH2 6LA.  VAT Registration No: 576 8795 61
Book a Property Valuation Update Cookies Preferences