South Road, Saffron Walden

£2,900pcm
Let Agreed
This property listing is now Let Agreed

4 Bedroom Terraced House for rent in Saffron Walden

4 2
  • Up to six bedroom spacious family home
  • Character features throughout
  • Two/three reception rooms
  • High specification kitchen, open plan with large dining/family area
  • Garden with garage to rear
  • Convenient and sought after location
  • Off road parking
  • Accommodation set over four floors
  • Spacious living accommodation
  • EPC E. Council tax band G

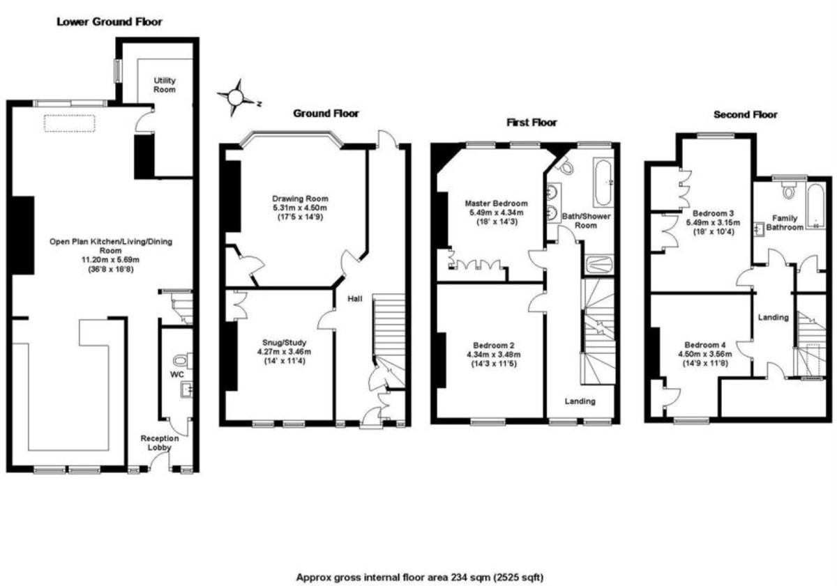
A characterful, imposing and extremely spacious property occupying a tucked away position ideally located in the heart of Saffron Walden and close by to a range of local schools. This stunning home provides light and airy living accommodation spread over four floors, whilst retaining a fantastic homely feel. The accommodation comprises;

ENTRANCE HALL
Solid oak flooring, door leading to WC, and walkway to open plan living room and kitchen. Staircase leading to the first floor, double glazed sash windows to the front aspect.

CLOAKROOM
Newly fitted and tiled with wash hand basin, low level WC.

KITCHEN/BREAKFAST ROOM/DINING ROOM
Kitchen is fitted with a range of high quality base and eye level units with electric AGA, double integrated oven with gas hob hob and extraction unit over, integrated dishwasher, and free standing fridge freezer. Towards the other side of the room are double glazed patio doors to the rear aspect, opening onto the sunken patio/courtyard area. The reception area has a continuation of the solid oak flooring, with underfloor heating. Door leading to;

UTILITY ROOM
Continuation of solid oak flooring, with a range of high quality base and eye level units, ceramic Butler sink and space and plumbing for a washing machine.

Carpeted stairs leading to;

FIRST FLOOR HALLWAY
Continuation of carpet throughout the top three floors. Stunning landing area with doors leading to;

LIVING ROOM
Spacious living room with characterful feel. Feature fireplace with log burner, storage cupboard and double glazed sash windows to rear.

STUDY
Good sized study with double glazed sash windows to front aspects, overlooking the front garden.

Stairs leading to;

SECOND FLOOR HALLWAY
Doors leading to;

BEDROOM 1
Double bedroom, double glazed sash window to front aspect, feature fireplace gives traditional feel.

BEDROOM 2
Double bedroom, double glazed sash windows to rear aspect.

FIRST FLOOR FAMILY BATHROOM
Modern three piece suite comprising pedestal wash hand basin, low level WC, panelled bath unit, and separate shower enclosure.

Stairs leading to;

THIRD FLOOR LANDING
Light and spacious area with double glazed sash windows to front aspect. Doors leading to;

BEDROOM 3
Double bedroom, double glazed sash windows to front aspect.

BEDROOM 4
Double bedroom, double glazed sash windows to rear aspect.

SECOND FLOOR FAMILY BATHROOM
Modern three piece suite comprising pedestal wash hand basin, low level WC and panelled bath unit with shower attached.
 

OUTSIDE The property is set back from the road with the house approached via a paved walkway providing access to two front doors, one lower and one higher level. The extensive rear garden is predominantly laid to lawn, with contemporary glass balustrade leading to the sunken patio area accessed from the ground floor. At the bottom of the garden is a single garage, and a space to park one car.  

LOCATION South Road is ideally situated close to the heart of the historic town of Saffron Walden, just a short walk from the market square, the common and the beautiful Bridge End Gardens. The town itself has an abundance of boutiques, coffee shops and restaurants, along with many popular high street retailers, including Waitrose and a twice weekly thriving market. The town's leisure facilities include an 18 hole golf course, a cinema and an 800 seat concert hall. The town is well situated with Audley End station within 3 miles, providing a regular service to London's Liverpool Street in approximately 55 minutes. Alternatively, the M11 can be accessed at junction 8, Bishop's Stortford. Stansted airport is within 19 miles and the University City of Cambridge is within 15 miles to the North. 

Property Ref: 11202695_101747002216

Share:

Similar Properties

Springhill Road, Saffron Walden

4 Bedroom Detached Bungalow | £2,200pcm

A spacious, four bedroom, refurbished bungalow with a recently installed kitchen, two bath/shower rooms, garden workshop...

Hill Street, Saffron Walden

2 Bedroom Semi-Detached House | £1,475pcm

A charming, Grade II Listed, two bedroom, period property located in the very heart of Saffron Walden. The property, wit...

Stortford Road, Clavering

2 Bedroom Maisonette | £1,200pcm

A spacious two bedroom, first floor, duplex maisonette located in the sought after village of Clavering. Available with...

Bulls Bridge Farm, Bumpstead Road, Hempstead

4 Bedroom Barn Conversion | £3,500pcm

A stunning and individual barn style detached four bedroom, three bathroom new build property offering contemporary and...

Station Street, Saffron Walden

1 Bedroom Retirement Property | Guide Price £100,000

A generous one-bedroom, top floor retirement apartment, with delightful views over the communal gardens. Located in a so...

Farmadine House, Saffron Walden

2 Bedroom Retirement Property | Guide Price £106,000

A light and spacious two-bedroom retirement apartment in a sought-after setting.

Arkwright & Co (Saffron Walden)

Saffron Walden, Essex, CB10 1AR

01799 668600

How much is your home worth?

Use our short form to request a valuation of your property.

Request a Valuation
©2025 The Guild of Property Professionals. All rights reserved. Terms and Conditions | Privacy Policy | Cookie Policy | Complaints Policy | Members Login
The Guild of Property Professionals Trading Address: 121 Park Lane, London W1K 7AG. GPEA Limited. Registered in England & Wales.  Company No: 02819824.  Registered Office Address: 2 St. Stephen's Court, St. Stephen's Road, Bournemouth, Dorset, England, BH2 6LA.  VAT Registration No: 576 8795 61
Book a Property Valuation Update Cookies Preferences