Netton, Salisbury

£1,700pcm

2 Bedroom Cottage for rent in Salisbury

3 2 1
  • Detached thatched cottage
  • Sought after village in the Woodford Valley
  • Cosy sitting room with open fireplace
  • Two double bedrooms
  • Fitted kitchen
  • Wine cellar
  • 2 off road parking spaces
  • Dining room
  • Oak flooring and beamed ceilings
  • Private garden with shed

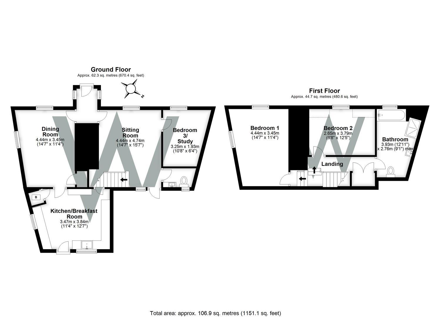
** PROPERTY NOW RE-AVAILABLE ** A fully refurbished two-bedroom thatched cottage in the sought-after Woodford Valley, featuring two double bedrooms, a study, open fireplace, cellar, garden, and off-road parking, under 20 minutes from Salisbury.

A charming two/three bedroom detached cottage in sought-after village within the Woodford Valley. The cottage has been fully renovated from top to bottom to a high standard, with accommodation comprising: Entrance porch, dining room with understairs cupboard through to re-fitted, bespoke kitchen. The kitchen comprises an excellent range of units with natural wood worktop, electric hob, single electric oven, integral washing machine and integral under-counter fridge, under-counter freezer and breakfast bar. Larder cupboard, boiler cupboard and door to garden. Beamed sitting room with a superb, working inglenook fireplace and door to garden. Study/bedroom 3. Cloakroom. Stairs from sitting room up to the first floor with double aspect master bedroom, good-sized second bedroom and a superb, spacious bathroom with separate walk-in cubicle with twin showerheads. Oil fired central heating via new Grant combination boiler. Real oak flooring throughout the ground floor and new beige carpets on the stairs and first floor. New double glazed windows throughout. The cottage has a wealth of charming character throughout including beamed ceilings, is part-thatched and part-tiled and there is also a useful, dry cellar accessed from a hatch in the front garden. There is a small front garden with perimeter dwarf wall and a mainly enclosed rear garden comprising lawn, paved sitting area and new garden shed. Gated side access and parking for two cars. Unfurnished with carpets and curtain poles/blinds

A Note From The Whites Letting Team - Thank you for considering Whites as your letting agent. As a proud member of the Royal Institution of Chartered Surveyors (RICS), we aspire to uphold its core values by providing a fair, efficient, and transparent service for all prospective tenants. Below we've outlined how we manage property enquiries and applications to help set expectations and guide you through the letting application process.

To begin the process of enquiring about one of our properties, please click the 'Request Further Details/Info' button on the property listing. This will send us your contact information, and we'll get back to you as soon as possible with a short questionnaire to complete. Once we've received your completed questionnaire, your enquiry will be registered with the relevant Property Manager. Please note, only those who complete this step will be considered as having formally enquired about the property.

Due to the high level of interest we often receive, we regret that we aren't often able to offer everyone a viewing. Where possible, we handle enquiries in the order they are received and arrange viewings in groups of up to 4 for the first round. If the property remains available, an additional round of viewings may be scheduled. To manage expectations, we may also temporarily pause viewings to review enquiries. If this happens, we'll do our best to update the property listing accordingly.

Please note that applications are not decided on a first-come, first-served basis. We aim to ensure a fair process for everyone, and all applications will be carefully considered on its merits by us, in conjunction with the landlord, before a final decision is made.

The availability date listed is provisional and will only be confirmed once referencing has been successfully completed.

Property Ref: 665745_34170599

Share:

Similar Properties

The Headlands, Downton, Salisbury

4 Bedroom Cottage | £1,700pcm

** CURRENTLY UNDERGOING REFERENCING**A picturesque four bedroom, unfurnished thatched cottage, situated in the popular v...

Mill Road, Salisbury

3 Bedroom Semi-Detached House | £1,700pcm

3-bed Victorian townhouse with modern amenities, park views, open-plan kitchen, garden, and close to city center.

Fovant, Salisbury

4 Bedroom Detached House | £1,675pcm

A well appointed four bedroom, family home located in the popular and picturesque village of Fovant with stunning views,...

Gibson Place, Longhedge, Salisbury

4 Bedroom Detached House | £1,750pcm

A beautifully presented detached family home situated on the popular Longhedge development.

Snowdrop Cottage, Tollard Royal

3 Bedroom Cottage | £1,750pcm

A well specified, 1400 sq ft three-bedroom detached cottage in a popular village on the edge of Rushmore Park and close...

Buttercup Close, Salisbury

3 Bedroom Townhouse | £1,750pcm

Situated in Buttercup Close in Harnham is a stylish three-story townhouse , with a south-facing courtyard, and excellent...

Whites Estate Agents (Salisbury)

47 Castle Street, Salisbury, Wilts, SP1 3SP

01722 336 422

How much is your home worth?

Use our short form to request a valuation of your property.

Request a Valuation
©2025 The Guild of Property Professionals. All rights reserved. Terms and Conditions | Privacy Policy | Cookie Policy | Complaints Policy | Members Login
The Guild of Property Professionals Trading Address: 121 Park Lane, London W1K 7AG. GPEA Limited. Registered in England & Wales.  Company No: 02819824.  Registered Office Address: 2 St. Stephen's Court, St. Stephen's Road, Bournemouth, Dorset, England, BH2 6LA.  VAT Registration No: 576 8795 61
Book a Property Valuation Update Cookies Preferences