Nelson Avenue, Minster On Sea, Sheerness

£825pcm
Let Agreed
This property listing is now Let Agreed

3 Bedroom Detached Bungalow for rent in Sheerness

2 3 1
  • Detached Bungalow
  • Popular Location
  • Detached Garage Plus Driveway For 4/5 Vehicles
  • No Chain
  • Conservatory
  • The Perfect Place For Retirement
  • EPC Rating 59 (D)
  • Price Range £310,000 - £325,000
  • One Not To Be Missed!

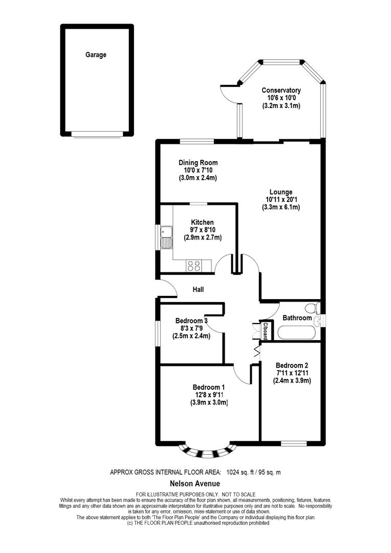
PRICE RANGE OF £310,000 - £325,000. THE PERFECT DETACHED BUNGALOW TO RETIRE OR RAISE YOUR FAMILY BEING SOLD WITH NO CHAIN! We are delighted to present this beautiful bungalow to the market boasting good size living accommodation. Situated in Nelson Avenue, Minster, the location offers easy access to the village, town centre, beach and local parks. The property itself has had a number of upgrades in recent years including new windows and doors fitted in 2015, new roof and replacement of fascias and soffits. Entering the property there is an internal hallway which provides access to three bedrooms and a family bathroom, door leading into the lounge/ dining room and french doors into the conservatory. Externally, there is front garden area, driveway to side for 4/5 vehicles and a detached garage (with power and light), the rear garden is perfect for someone looking for an easy to maintain garden area with the added benefit of being South facing. This really is a lovely bungalow and well worth a viewing.

Property Ref: 29098359

Share:

Similar Properties

Manor Road, Rushenden

3 Bedroom Terraced House | £825pcm

IMMEDIATELY AVAILABLE! Call now to view this recently refurbished house on Manor Road, Rushenden. The property has a mod...

Bismuth Drive, Sittingbourne

2 Bedroom Apartment | £825pcm

STUNNING DETACHED COACH HOUSE! Situated on the Sonora Fields development, we are delighted to bring to the market this i...

Roberts Close, Sittingbourne

2 Bedroom Bungalow | £825pcm

AVAILABLE IMMEDIATELY! New to the market is this two bedroom extended bungalow in Roberts Close. Bungalows are rarely av...

Halfway Road, Halfway, Sheerness

3 Bedroom Terraced House | £850pcm

AVAILABLE IMMEDIATELY!! THREE BEDROOM HOUSE IN HALFWAY. Large family home and conveniently located close to schools and...

Dumergue Avenue, Queenborough

3 Bedroom Terraced House | £850pcm

Are you looking for a house in Queenborough? This house has had a complete overhaul from top to bottom and will be ready...

Alexandra Road, Sheerness

3 Bedroom Terraced House | £850pcm

IMMEDIATELY AVAILABLE! Call now to view this large terraced house available to rent on Alexandra Road. The property is w...

LambornHill (Sittingbourne)

West Street, Sittingbourne, Kent, ME10 1AJ

01795 293000

How much is your home worth?

Use our short form to request a valuation of your property.

Request a Valuation
©2026 The Guild of Property Professionals. All rights reserved. Terms and Conditions | Privacy Policy | Cookie Policy | Complaints Policy | Members Login
The Guild of Property Professionals Trading Address: 121 Park Lane, London W1K 7AG. GPEA Limited. Registered in England & Wales.  Company No: 02819824.  Registered Office Address: 2 St. Stephen's Court, St. Stephen's Road, Bournemouth, Dorset, England, BH2 6LA.  VAT Registration No: 576 8795 61
Book a Property Valuation Update Cookies Preferences