Hanbury Street, Shoreditch, London

£1,000pcm
Let Agreed
This property listing is now Let Agreed

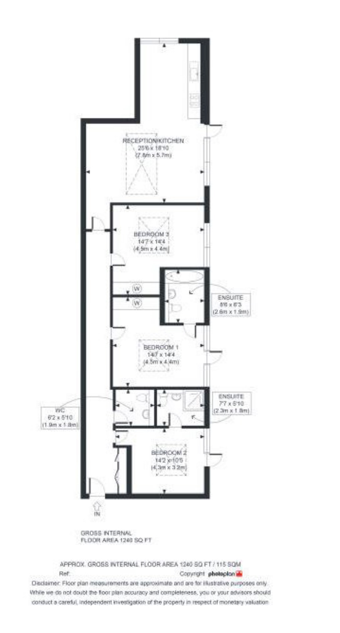
3 Bedroom Penthouse for rent in Shoreditch

1 3 3
  • Roof Terrace Furnished/Unfurnished
  • Lift
  • Central Heating
  • New Build
  • Double Glazing
  • Wood Floors
  • Porter and Security

Stunning 3 bedroom, 3 bathroom PENTHOUSE APARTMENT with breathtaking views of London from the LARGE PRIVATE TERRACE. This penthouse flat has been fitted out to a very high standard and spec and has all the latest appliances that you would expect from a flat of this standard. Each of the 3 bedrooms are spacious and have ensuites. The flat further benefits from central heating, a lift and 24 hour security.

Stunning 3 bedroom, 3 bathroom flat with breathtaking views of London from the large roof terrace. This penthouse flat has been fitted out to a very high standard and spec and has all the latest appliances that you would expect from a flat of this standard. Each of the 3 bedrooms are spacious and have ensuites. The flat further benefits from central heating, a lift and 24 hour security.

Important notice: Victorstone, their clients and any joint agents give notice that: These particulars are prepared as a general guide to the property and do not form part of any offer or contract and must not be relied upon as statements or representations of fact. They have not conducted a structural survey and the services, appliances and specific fittings have not been tested. All photographs, measurements, floorplans and distances referred to are given as a guide only. Any and all fixtures and fittings listed in these particulars are deemed removable by the vendor. Any measurements should not be relied upon for the purchase of flooring or any other fixtures or fittings. Ground rent, service charges and any other lease details (where applicable) and council tax are given as a guide only and should be checked and confirmed by your Solicitor prior to exchange of contracts.

Property Ref: 25661_27477463

Share:

Similar Properties

Bethnal Green Road, Bethnal Green, London

5 Bedroom Apartment | £925pcm

FIVE DOUBLE BEDROOM apartment with TWO BATHROOMS located within an impressive WARE HOUSE CONVERSION just of Bethnal gree...

Laburnum Street, Haggerston, London

4 Bedroom Town House | £900pcm

Arranged over four floors, this STUNNING FOUR DOUBLE BEDROOM, THREE BATHROOM TOWNHOUSE offers a rare opportunity to secu...

City Road, Islington, London

2 Bedroom Apartment | £900pcm

A stunning HIGH SPEC two double bedroom apartment forming part of the desirable Art Deco inspired EAGLE development. Sit...

Butlers Wharf West, Shad Thames, London

3 Bedroom Apartment | £1,150pcm

Stunning Three Bedroom bedroom apartment set in this imposing WAREHOUSE CONVERSION apartment to rent in a popular deve...

High Street North, East Ham, London

Commercial Property | £15,600pa

First and second floor office. The premises are a short walk from East Ham underground Station and the High Street is se...

Upton Lane, Forest Gate, London

Commercial Property | £16,000pa

A1 Shop. Located close to the busy junction of Romford Road and Upton Lane, this very large unit benefits from excellent...

Victorstone Property Consultants (Shoreditch)

53 Hanbury Street, Shoreditch, London, E1 5JP

0207 426 5411

How much is your home worth?

Use our short form to request a valuation of your property.

Request a Valuation
©2026 The Guild of Property Professionals. All rights reserved. Terms and Conditions | Privacy Policy | Cookie Policy | Complaints Policy | Members Login
The Guild of Property Professionals Trading Address: 121 Park Lane, London W1K 7AG. GPEA Limited. Registered in England & Wales.  Company No: 02819824.  Registered Office Address: 2 St. Stephen's Court, St. Stephen's Road, Bournemouth, Dorset, England, BH2 6LA.  VAT Registration No: 576 8795 61
Book a Property Valuation Update Cookies Preferences