Elderberry Close, Bricket Wood, St. Albans, Hertfordshire, AL2

£3,800pcm
Let Agreed
This property listing is now Let Agreed

4 Bedroom Detached House for rent in St. Albans

4 4 2

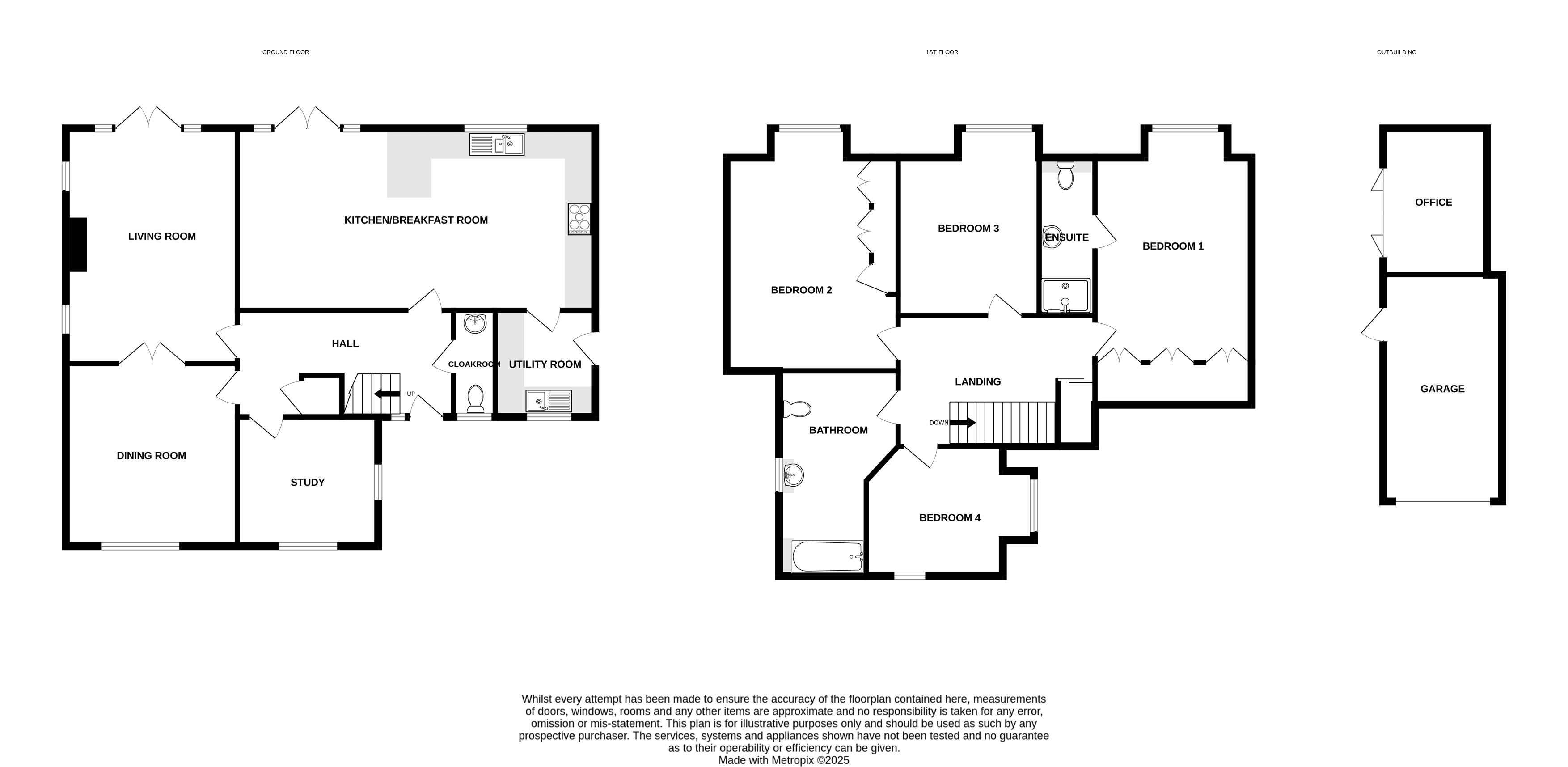
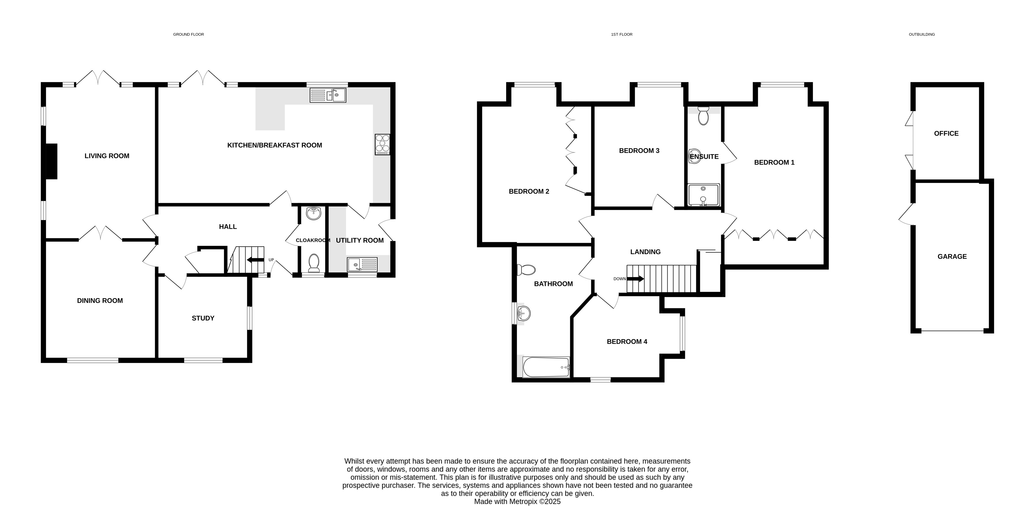
Nestled on the sought-after Elderberry Close in Bricket Wood, St. Albans, this impressive four-bedroom detached family residence is offered in stunning condition.
Designed with both comfort and style in mind, the property features three versatile reception rooms—perfect for family living or hosting gatherings—alongside a modern and generous kitchen breakfast and dining space at the heart of the home.Upstairs, four well-proportioned bedrooms and two bathrooms provide plenty of room for the whole family. To the rear, the beautifully maintained garden offers privacy and a serene escape, with the added benefit of backing onto woodland, creating a picturesque and peaceful setting. The property also benefits from a versatile outbuilding, complete with power and heating, ideal as a home office, studio, or hobby roomLocated in the charming village of Bricket Wood, the home combines a quiet, countryside feel with easy access to local amenities. The private road enhances the sense of exclusivity, while the garage and ample off-street parking add everyday convenience. Finished to a high standard with modern touches throughout, this is a rare opportunity to secure a beautifully presented home in a highly desirable location.

Property Ref: LUM250308_L

Share:

Similar Properties

Watling Street, Radlett, Hertfordshire, WD7

4 Bedroom Semi-Detached House | £3,750pcm

An impressive 4 bedroom 2 bathroom family home situated on Watling Street, this stunning property benefits from off-stre...

Lullington Garth, Borehamwood, Hertfordshire, WD6

4 Bedroom Semi-Detached House | £3,600pcm

An impressive four-bedroom extended family home, located on a sought-after road just off Furzehill Road.

Watling Street, Radlett, Hertfordshire, WD7

4 Bedroom Semi-Detached House | £3,500pcm

A recently renovated 4 double bedroom property located on Watling Street with off-street parking.Briefley comprising; pr...

Greenwood Gardens, Shenley, Radlett, Hertfordshire, WD7

5 Bedroom Detached House | £3,900pcm

This impressive five-bedroom residence sits at the far end of Porters Park, within a sought-after and peaceful cul-de-sa...

Links Drive, Elstree, Borehamwood, Hertfordshire, WD6

4 Bedroom Detached House | £4,000pcm

Situated on the highly sought-after Links Drive in Elstree, this beautifully refurbished family home offers stylish, mod...

Oddesey Road, Borehamwood, Hertfordshire, WD6

4 Bedroom Semi-Detached House | £4,000pcm

A stunning four-bedroom family home located in the ever-desirable location of Borehamwood, this property has recently un...

Lumley Estates (Radlett)

72 Watling Street, Radlett, Hertfordshire, WD7 7NP

01923 853366

How much is your home worth?

Use our short form to request a valuation of your property.

Request a Valuation
©2026 The Guild of Property Professionals. All rights reserved. Terms and Conditions | Privacy Policy | Cookie Policy | Complaints Policy | Members Login
The Guild of Property Professionals Trading Address: 121 Park Lane, London W1K 7AG. GPEA Limited. Registered in England & Wales.  Company No: 02819824.  Registered Office Address: 2 St. Stephen's Court, St. Stephen's Road, Bournemouth, Dorset, England, BH2 6LA.  VAT Registration No: 576 8795 61
Book a Property Valuation Update Cookies Preferences