St Johns Wood Park, St Johns Wood

£1,400pw

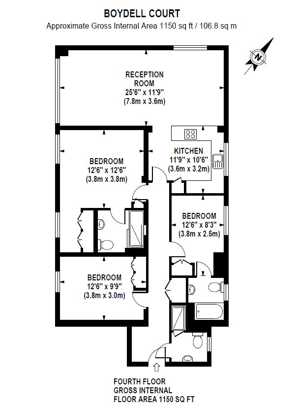
3 Bedroom Flat for rent in St Johns Wood Park

1 3 3
  • Three bedrooms
  • Three bathrooms
  • Fourth floor
  • Lift
  • Spacious reception
  • 24 hour concierge
  • Secured gated development
  • Parking by separate negotiation
  • Available 23rd March

A beautifully decorated three double bedroom apartment set within the ever popular Boydell Court, conveniently located within the heart of St John's Wood. The apartment which is situated on the fourth floor, features a great size open plan kitchen/reception/dining room fabulous for entertaining, three double bedrooms, two of which have en-suite bathrooms, fitted wardrobes in each of the rooms as well as a separate shower room. Further benefits include air-conditioning throughout, 24hr concierge, lift and a parking space available to rent by separate negotiation.

Heating & hot water is included in the rent.



Boydell Court is located within easy reach of the amenities and transport links of Swiss Cottage and St John's Wood.

Available 23rd March on a furnished or unfurnished basis.

Property Ref: WES_WES180012

Share:

Similar Properties

St Johns Wood Park, St Johns Wood

3 Bedroom Flat | £1,400pw

A beautiful three bedroom apartment set within the ever popular Boydell Court, conveniently located within the heart of...

St Johns Wood Park, St Johns Wood

3 Bedroom Flat | £1,400pw

Beautifully presented is this three double bedroom apartment set within the ever popular Boydell Court, conveniently loc...

St Johns Wood Park, St Johns Wood

3 Bedroom Flat | £1,400pw

Beautifully presented, this three double bedroom apartment is set within the ever popular Boydell Court, conveniently lo...

St Johns Wood Park. St Johns Wood

4 Bedroom House | £2,608pw

An immaculately presented four bedroom new build house, conveniently located in the heart of St John's Wood, set with wi...

Finchley Road, London

1 Bedroom Flat | Guide Price £276,000

SHARED OWNERSHIP 60%. An extremely impressive one bedroom apartment situated on the first floor (with a lift) of The Le...

Christchurch Avenue, Kilburn

1 Bedroom Flat | Asking Price £300,000

A superb first floor larger than average studio apartment set within this traditional period semi-detached residence. Th...

Oakhill Residential (Belsize Park)

West Hampstead, Belsize Park, London, NW6 1DS

020 3544 4440

How much is your home worth?

Use our short form to request a valuation of your property.

Request a Valuation
©2026 The Guild of Property Professionals. All rights reserved. Terms and Conditions | Privacy Policy | Cookie Policy | Complaints Policy | Members Login
The Guild of Property Professionals Trading Address: 121 Park Lane, London W1K 7AG. GPEA Limited. Registered in England & Wales.  Company No: 02819824.  Registered Office Address: 2 St. Stephen's Court, St. Stephen's Road, Bournemouth, Dorset, England, BH2 6LA.  VAT Registration No: 576 8795 61
Book a Property Valuation Update Cookies Preferences