Loudoun Road, St Johns Wood NW8

£450pw
Let Agreed
This property listing is now Let Agreed

1 Bedroom Apartment for rent in St John's Wood

1
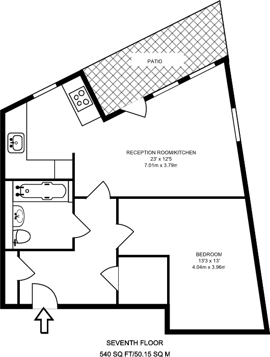
  • Modern One Double Bedroom Apartment
  • Private Balcony with Panoramic Views
  • Bright Reception Room
  • Open Plan High Quality Kitchen
  • En Suite Shower Room
  • Solid Wood Flooring
  • Under Floor Heating
  • Set within a Contemporary New Build
  • Moments from South Hampstead & Swiss Cottage Stations

A modern, brand new one bedroom flat in a contemporary new build. The accommodation comprises a bright reception room with solid wood floors, open plan modern high quality kitchen, double bedroom and a en suite shower room. The flat further benefits from under floor heating and a good size balcony offering panoramic views over St. John’s Wood. The Move is ideally located for access to central London via Swiss Cottage station (Jubilee Line). South Hampstead overground station and numerous bus routes into the West End are also close at hand.

Property Ref: 58726_40374

Share:

Similar Properties

Euston Road, Euston NW1

1 Bedroom Flat | £450pw

Excellent spacious 1 Bedroom flat located on the 1st floor of an attractive mansion block, newly refurbished throughout...

Regents Park Road, Primrose Hill, NW1

1 Bedroom Apartment | £450pw

This super apartment with the perfect meld of period features and contemporary convenience, beautifully appointed, newly...

Leighton Crescent, Kentish Town NW5

1 Bedroom Apartment | £450pw

Spacious superbly refurbished one bedroom flat overlooking a park square. Stylishly modernised within a substantial Vict...

St Augustine's Road, Camden NW1

2 Bedroom Apartment | £460pw

A beautiful two bedroom garden apartment with its own private entrance, located within the Camden Square conservation ar...

St Augustine's Road, Camden NW1

1 Bedroom Apartment | £460pw

A beautiful one double bedroom with study garden apartment located within the Camden Square conservation area. Set withi...

Nottingham Place, Marylebone W1U

Apartment | £465pw

A contemporary studio apartment situated within a beautiful period conversion located on one of Marylebone's most desira...

Olivers Town (Kentish Town)

189 Kentish Town Road, Kentish Town, London, NW5 2JU

0207 2841222

How much is your home worth?

Use our short form to request a valuation of your property.

Request a Valuation
©2025 The Guild of Property Professionals. All rights reserved. Terms and Conditions | Privacy Policy | Cookie Policy | Complaints Policy | Members Login
The Guild of Property Professionals Trading Address: 121 Park Lane, London W1K 7AG. GPEA Limited. Registered in England & Wales.  Company No: 02819824.  Registered Office Address: 2 St. Stephen's Court, St. Stephen's Road, Bournemouth, Dorset, England, BH2 6LA.  VAT Registration No: 576 8795 61
Book a Property Valuation Update Cookies Preferences