Staines, Surrey

£2,100pcm
Let Agreed
This property listing is now Let Agreed

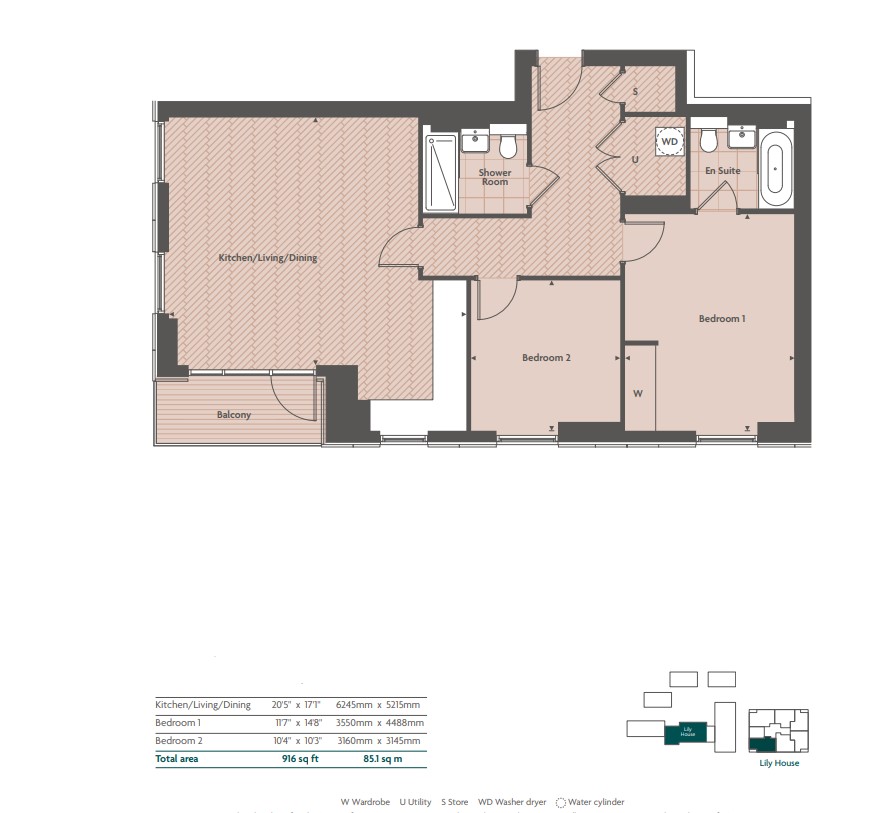
2 Bedroom Apartment for rent in Staines

1 2 2
  • Twelfth Floor Apartment
  • 24 Hour Concierge
  • Two Bedrooms
  • Two Bathrooms
  • Brand New Apartment
  • Modern Fitted Kitchen
  • Private Gym
  • Cinema Room
  • Balcony
  • EPC C

Eden Grove is Berkeley Homes' beautifully designed, brand new development in Staines-upon Thames. This stunning two bedroom two bathroom twelfth floor apartment features an open-plan kitchen and living area, private balcony and also includes the use of a fantastic range of amenities such as a private meeting rooms, private gym, cinema room, co-working space, 24-hour concierge and landscaped communal gardens. Available immediately.

Important Information

  • This Council Tax band for this property is: C
  • EPC Rating is C

Property Ref: 2702049

Share:

Similar Properties

Staines, Surrey

2 Bedroom Apartment | £2,100pcm

***PARKING INCLUDED*** Eden Grove is Berkeley Homes' beautifully designed, brand new development in Staines-upon-Thames....

Staines

2 Bedroom Flat | £2,100pcm

Originally one of the show apartments, this first floor flat is presented in pristine condition throughout, almost as ne...

Staines

2 Bedroom Flat | £2,100pcm

Presented in superb condition throughout, this spacious apartment enjoys splendid views from its private balcony. Measur...

STAINES, SURREY

2 Bedroom Flat | £2,153pcm

*EXCLUSIVE OFFER- GET 6 WEEKS' RENT FREE* Amazing Amenities Spaces, Resident App with Exclusive Perks, Town Centre Locat...

Staines, Surrey

4 Bedroom House | £2,195pcm

Located in a quiet, desirable cul-de-sac, yet just a short walk from the mainline station and town centre, this spacious...

Staines

3 Bedroom Semi-Detached House | £2,200pcm

Located at the end of this lovley no through road, a well presented three bedroom family home with a large rear garden,...

Seymours (Staines - Upon- Thames)

Staines - Upon- Thames, Surrey, TW18 4QY

01784682828

How much is your home worth?

Use our short form to request a valuation of your property.

Request a Valuation
©2026 The Guild of Property Professionals. All rights reserved. Terms and Conditions | Privacy Policy | Cookie Policy | Complaints Policy | Members Login
The Guild of Property Professionals Trading Address: 121 Park Lane, London W1K 7AG. GPEA Limited. Registered in England & Wales.  Company No: 02819824.  Registered Office Address: 2 St. Stephen's Court, St. Stephen's Road, Bournemouth, Dorset, England, BH2 6LA.  VAT Registration No: 576 8795 61
Book a Property Valuation Update Cookies Preferences