Blackfriars Street, Stamford

£2,500pcm
Let Agreed
This property listing is now Let Agreed

3 Bedroom End of Terrace House for rent in Stamford

4 3 3
  • Deceptively Spacious Period Terraced Home
  • Beautifully Presented Throughout
  • Minutes From Stamford's High Street
  • 4 Reception Rooms
  • Kitchen, Utility & Ground Floor Shower Room
  • 3 Double Bedrooms, Bathroom & Shower Room to First Floor
  • Cellar
  • Off Road Parking for 1 Vehicle & 2 Courtyard Gardens
  • Available Now
  • Please see Keys Facts for Tenants for Material Information Disclosures


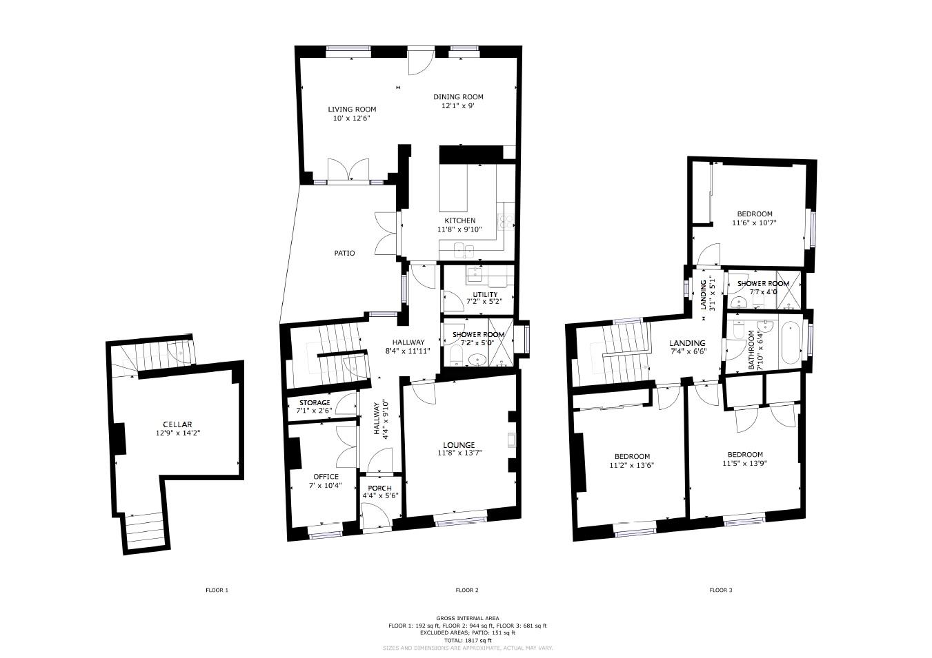
Briefly the accommodation comprises; Ground Floor - Porch, Entrance Hall, Lounge, Office, Kitchen, Living Room, Dining Room, Internal Courtyard, Utility, and Shower Room. Lower Ground Floor - Cellar. First Floor - Landing, 3 Double Bedrooms, Bathroom room, and Shower Room. Outside - To the rear is a Courtyard Garden that also doubles as off road parking for 1 vehicle, this is access via Gas Lane through an electric roller door. The is a further private internal courtyard which can be accessed from the living room and kitchen.

Agents Note:
Holding Deposit - £576
Tenancy Security Deposit – £2884
Local Authority – South Kesteven District Council
Council Tax Band – D
EPC Rating - TBC

Porch
1.32m x 1.68m (4'4" x 5'6")

Entrance Hallway

Lounge
3.56m x 4.14m (11'8" x 13'7")

Office
2.13m x 3.15m (7'0" x 10'4")

Shower Room
2.18m x 1.52m (7'2" x 5'0")

Utility
2.18m x 1.57m (7'2" x 5'2")

Kitchen
11'8" x 9'10" (36'1"'26'2"" x 29'6"'32'9"")

Dining Room
3.68m x 2.74m (12'1" x 9'0")

Living Room
3.05m' x 3.81m (10'0' x 12'6")

Internal Courtyard

Cellar
3.89m x 4.32m (12'9" x 14'2")

Landing

Bedroom
3.40m x 4.11m (11'2" x 13'6")

Bedroom
3.48m x 4.19m (11'5" x 13'9")

Bedroom
3.51m x 3.23m (11'6" x 10'7")

Bathroom
2.39m x 1.93m (7'10 x 6'4")

Shower Room
2.31m x 1.22m (7'7" x 4'0")

Rear Courtyard with Off Road Parking


Sizes and dimensions are calculated using a laser measuring modelling device and as such whilst representative it must be noted that they are all approximate, actual sizes may vary.

Important Information

  • This Council Tax band for this property is: D

Property Ref: 43069_34176378

Share:

Similar Properties

Eastgate, Deeping St. James, Peterborough

3 Bedroom Detached House | £2,000pcm

A spacious and flexible three double bedroom detached home offering four generous reception rooms, a large private garde...

Stocken Hall, Stretton, Oakham

3 Bedroom Character Property | £2,000pcm

Approached down a sweeping driveway and set within an iconic Grade II* listed country house dating back to the early 17t...

North Street, Stamford

4 Bedroom Terraced House | £1,995pcm

A deceptively spacious and beautifully renovated, highly individual 4-bedroom, 3-bathroom townhouse in the heart of Stam...

Bentley Street, Stamford

1 Bedroom Flat | £140,000

***IDEAL FIRST TIME BUY*** This well presented 1-bedroom flat, is situated within a short walk of Stamford’s High Street...

Torkington Gardens, Stamford

2 Bedroom Flat | £150,000

This well presented two-bedroom first floor apartment is set within the grounds of the popular over 55’s development of...

Ladywell, Oakham

2 Bedroom Terraced House | Asking Price £170,000

Tucked away in a quiet cul-de-sac, just a short walk from Oakham’s historic town centre, train station, and local amenit...

Goodwin Property (Stamford)

St Johns Street, Stamford, Lincolnshire, PE9 2DA

01780 750000

How much is your home worth?

Use our short form to request a valuation of your property.

Request a Valuation
©2026 The Guild of Property Professionals. All rights reserved. Terms and Conditions | Privacy Policy | Cookie Policy | Complaints Policy | Members Login
The Guild of Property Professionals Trading Address: 121 Park Lane, London W1K 7AG. GPEA Limited. Registered in England & Wales.  Company No: 02819824.  Registered Office Address: 2 St. Stephen's Court, St. Stephen's Road, Bournemouth, Dorset, England, BH2 6LA.  VAT Registration No: 576 8795 61
Book a Property Valuation Update Cookies Preferences