Gas Lane, Stamford, Lincolnshire

£1,100pcm
Let
This property listing is now Let

2 Bedroom End of Terrace House for rent in Stamford

2 2 1
  • Period End Of Terrace
  • Very Close To The Town Centre
  • Well Presented Throughout
  • Sitting Room
  • Kitchen + Conservatory/Dining Room
  • 2 Bedrooms + Loft Room
  • Bathroom
  • Courtyard Garden
  • Please refer to attached Key Facts for Buyers for Material Information disclosures


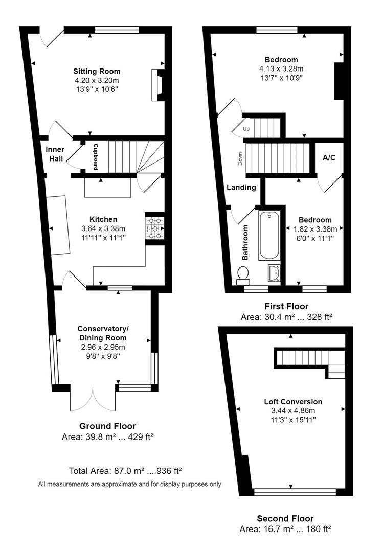
The property offers good size living accommodation throughout which briefly comprises: Ground Floor: Sitting room, bespoke fitted Kitchen, Conservatory/Dining Room. First Floor: landing, 2 first floor bedrooms, and bathroom. Second Floor: loft room conversion which has lovely views.

Outside to the rear is a small fully enclosed courtyard garden.

Agents Note:
Holding Deposit - £253
Tenancy Security Deposit – £1,269
Local Authority – South Kesteven District Council
Council Tax Band – C
EPC Rating - D

Sitting Room
13' 6'' x 10' 6'' (4.11m x 3.20m)

Inner Hall

Kitchen
11' 11'' x 11' 1'' (3.63m x 3.38m)

Conservatory/Dining Room
9' 8'' x 9' 8'' (2.94m x 2.94m)

Landing

Bedroom
13' 7'' x 10' 9'' (4.14m x 3.27m)

Bedroom
6' 0'' x 11' 1'' (1.83m x 3.38m)

Bathroom

Loft Conversion
11' 3'' x 15' 11'' (3.43m x 4.85m)


Sizes and dimensions are calculated using a laser measuring modelling device and as such whilst representative it must be noted that they are all approximate, actual sizes may vary.

Important Information

  • This Council Tax band for this property is: C
  • EPC Rating is D

Property Ref: GPS03339

Share:

Similar Properties

New Cross Road, Stamford

2 Bedroom Terraced House | £1,100pcm

A well-presented Victorian terrace in a sought-after Stamford location, just a short walk from the town centre and the R...

St. Marys Street, Stamford

3 Bedroom Flat | £995pcm

A characterful 3 bedroom second-floor apartment set in the heart of Stamford town centre, offering generous living space...

Byron Way, Stamford

2 Bedroom Semi-Detached House | £995pcm

Two bedroom semi-detached house located in a sought-after residential location just off Empingham Road, close to the man...

Doughty Street, Stamford

3 Bedroom Semi-Detached House | £1,150pcm

Extremely well presented 3 bedroom semi detached home in a sought after Stamford location, offering two reception rooms,...

Church Road, Ketton

3 Bedroom Cottage | £1,195pcm

Charming stone cottage in the heart of Ketton with driveway parking and a private courtyard garden. Offering three gener...

Water Street, Stamford

2 Bedroom Semi-Detached House | £1,295pcm

A beautifully presented two-bedroom town house in the heart of Stamford, offering stylish interiors, a private sheltered...

Goodwin Property (Stamford)

St Johns Street, Stamford, Lincolnshire, PE9 2DA

01780 750000

How much is your home worth?

Use our short form to request a valuation of your property.

Request a Valuation
©2026 The Guild of Property Professionals. All rights reserved. Terms and Conditions | Privacy Policy | Cookie Policy | Complaints Policy | Members Login
The Guild of Property Professionals Trading Address: 121 Park Lane, London W1K 7AG. GPEA Limited. Registered in England & Wales.  Company No: 02819824.  Registered Office Address: 2 St. Stephen's Court, St. Stephen's Road, Bournemouth, Dorset, England, BH2 6LA.  VAT Registration No: 576 8795 61
Book a Property Valuation Update Cookies Preferences