Water Street, Stamford

£995pcm
Let
This property listing is now Let

2 Bedroom Cottage for rent in Stamford

1 2 1
  • Tucked Away Character Cottage
  • Large Open Plan Living/Dining/Kitchen
  • Separate Garden Room
  • Private Courtyard Garden to Rear
  • 2 Bedrooms and a Bathroom
  • Close to Burghley and the Town Centre
  • Please refer to attached Key Facts for Tenants - Material Information Disclosures


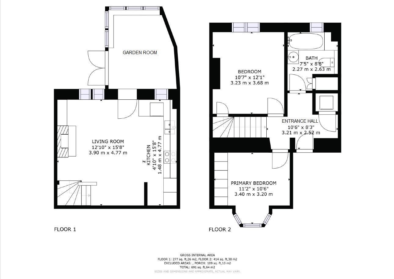
Entering the cottage through the quaint garden at the front, you are welcomed into the first floor of the property, comprised of two well-proportioned bedrooms and bathroom with shower over bath. Stairs lead down to the cottage’s lower floor, with open-plan living room and kitchen, flooded with light from the adjoining garden room and rear courtyard garden beyond. Viewing is an absolute must to truly appreciate this charming and unique property and all that it has to offer.

Agents Note:
Holding Deposit - £229
Tenancy Security Deposit – £1148
Local Authority – South Kesteven District Council
Council Tax Band – C
EPC Rating - D

Entrance Hall

Bedroom 1
12' 2'' x 10' 10'' (3.71m x 3.30m)

Bedroom 2
10' 4'' x 9' 2'' (3.15m x 2.79m)

Bathroom

Living Room/Dining Room/Kitchen
15' 8'' x 17' 10'' (4.77m x 5.43m)

Garden Room
11' 7'' x 10' 5'' (3.53m x 3.17m)

Front and Rear Courtyards


Sizes and dimensions are calculated using a laser measuring modelling device and as such whilst representative it must be noted that they are all approximate, actual sizes may vary.

Important Information

  • This Council Tax band for this property is: C
  • EPC Rating is D

Property Ref: 43069_34221087

Share:

Similar Properties

Brooklands Way, Bourne

3 Bedroom Terraced House | £995pcm

Situated in a popular modern development this mid terrace 3 bedroom house really is ideally positioned just a short walk...

Welland Mews, STAMFORD, Lincolnshire

2 Bedroom Detached House | £995pcm

A well-presented first-floor apartment, ideally located within easy walking distance of Stamford town centre, in a highl...

Caithness Road, Stamford

3 Bedroom Semi-Detached House | £995pcm

Superbly presented 3-bedroom semi-detached home located in the sought-after residential area. Recently updated with bran...

Rock Road, Stamford

2 Bedroom Cottage | £1,000pcm

Extremely well presented character Cottage, centrally located but in a discrete position just moments from Waitrose and...

Gresley Drive, Stamford

3 Bedroom Terraced House | £1,095pcm

A well-proportioned three-bedroom terraced house situated on Gresley Drive, offering a blend of cosy accommodation and a...

Gresley Drive, Stamford

2 Bedroom Terraced House | £1,095pcm

Lovely modern two bedroom terraced property situated in this sought after location on the door step of Stamford Railway...

Goodwin Property (Stamford)

St Johns Street, Stamford, Lincolnshire, PE9 2DA

01780 750000

How much is your home worth?

Use our short form to request a valuation of your property.

Request a Valuation
©2026 The Guild of Property Professionals. All rights reserved. Terms and Conditions | Privacy Policy | Cookie Policy | Complaints Policy | Members Login
The Guild of Property Professionals Trading Address: 121 Park Lane, London W1K 7AG. GPEA Limited. Registered in England & Wales.  Company No: 02819824.  Registered Office Address: 2 St. Stephen's Court, St. Stephen's Road, Bournemouth, Dorset, England, BH2 6LA.  VAT Registration No: 576 8795 61
Book a Property Valuation Update Cookies Preferences