Perth Road, Stamford

£1,295pcm
Let Agreed
This property listing is now Let Agreed

3 Bedroom Detached House for rent in Stamford

2 3 1
  • 3 Bedroom Detached Family Home
  • Popular Residential Area
  • Convenient for Town, A1 & Local Schooling
  • Lounge, Kitchen Dining Room
  • Modern Kitchen
  • Modern Family Bathroom
  • Enclosed Rear Garden, Driveway and Single Garage
  • EPC Rating D
  • Please refer to attached Key Facts for Tenants for Material Information Disclosures


The accommodation is extremely well presented and briefly comprises: entrance hall, lounge, open plan dining /kitchen. Upstairs there are 3 good sized bedrooms, one with built in wardrobe, and a family bathroom. Outside there is a single garage with off street parking to the front, whilst to the rear is a fully enclosed garden, laid to lawn with a patio area.

Agents Note:
Holding Deposit - £298
Tenancy Security Deposit – £1,494
Local Authority – South Kesteven District Council
Council Tax Band – C
EPC Rating - D

Entrance Hall
1.80m x 4.39m (5'11" x 14'5")

Lounge
3.30m x 5.05m (10'10" x 16'7")

Dining Room
2.69m x 3.12m (8'10" x 10'3")

Kitchen
2.51m x 2.97m (8'3" x 9'9")

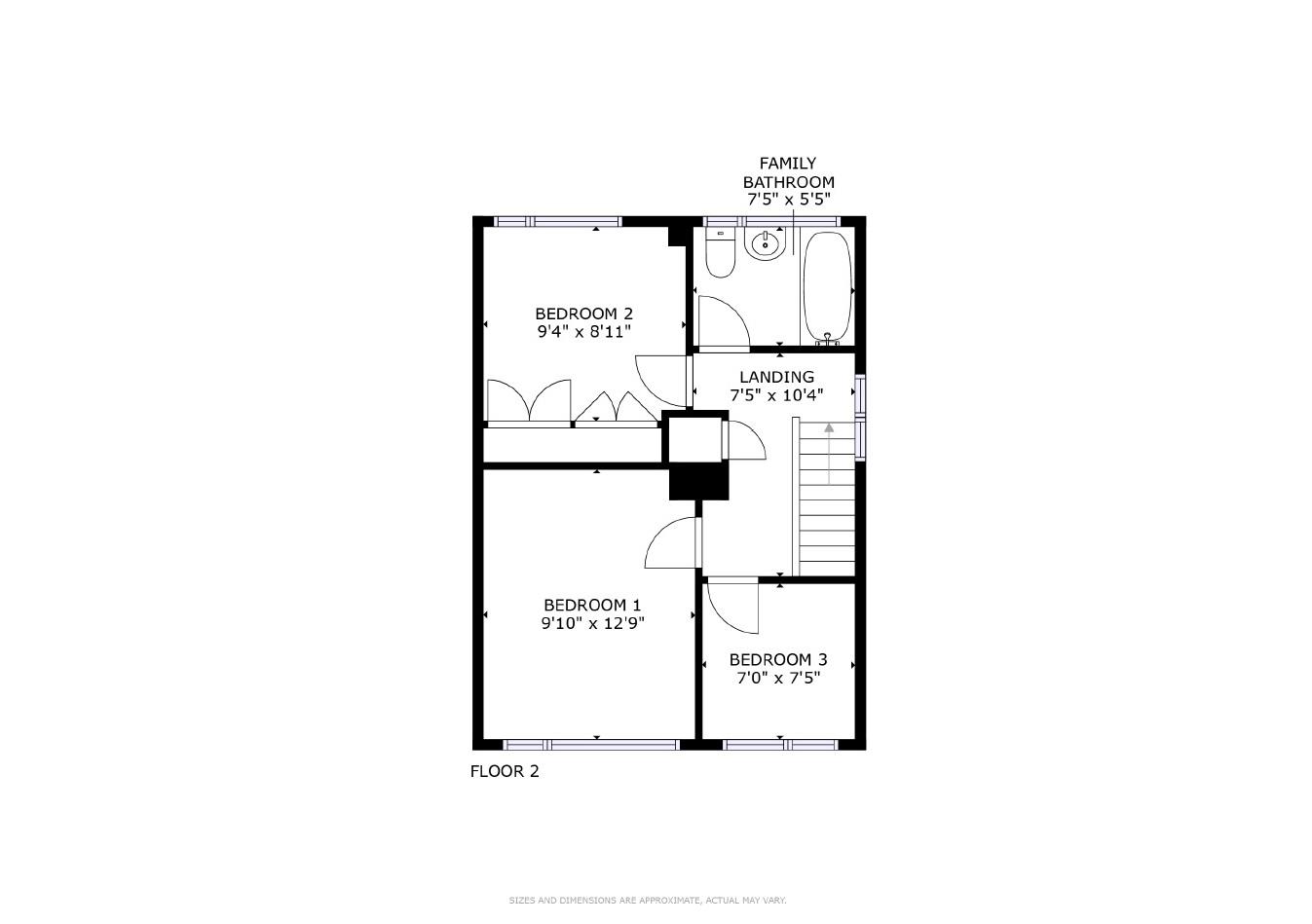
Landing
2.26m x 3.15m (7'5" x 10'4")

Bedroom 1
3.00m x 3.89m (9'10" x 12'9")

Bedroom 2
2.84m x 2.72m (9'4" x 8'11")

Bedroom 3
2.13m x 2.26m (7'0" x 7'5")

Family Bathroom
2.26m x 1.65m (7'5" x 5'5")

Single Garage


Sizes and dimensions are calculated using a laser measuring modelling device and as such whilst representative it must be noted that they are all approximate, actual sizes may vary

Important Information

  • This Council Tax band for this property is: C
  • EPC Rating is D

Property Ref: 43069_34239588

Share:

Similar Properties

Elgar Way, Stamford

3 Bedroom Semi-Detached House | £1,295pcm

BRAND NEW Kitchen, Bathroom, Radiators, Flooring, Decor and Doors. This established 3 Bedroom house with garage, parking...

Carisbrooke Grove, Stamford

3 Bedroom End of Terrace House | £1,200pcm

Modern three-bedroom end terrace in a popular residential area off Empingham Road. Well-presented throughout with neutra...

Riverside Place, Stamford

2 Bedroom Flat | £1,195pcm

A generously proportioned two-bedroom top-floor apartment ideally situated in the heart of town, just a short stroll fro...

Cecil Court, Wharf Road, Stamford

2 Bedroom Detached House | £1,350pcm

Uniquely situated in a tucked away location in the very heart of Stamford’s Town Centre, sits this two-bedroom detached...

Brooke Avenue, Stamford

3 Bedroom Detached Bungalow | £1,395pcm

Well presented, modern, 3 bedroom, 2 bathroom detached bungalow with a single garage, off street parking and a generous...

Rose Cottage, Easton on the Hill

4 Bedroom Detached House | £1,650pcm

Exceptionally well presented stone cottage offering good sized family home, in a secluded position, on the edge of this...

Goodwin Property (Stamford)

St Johns Street, Stamford, Lincolnshire, PE9 2DA

01780 750000

How much is your home worth?

Use our short form to request a valuation of your property.

Request a Valuation
©2025 The Guild of Property Professionals. All rights reserved. Terms and Conditions | Privacy Policy | Cookie Policy | Complaints Policy | Members Login
The Guild of Property Professionals Trading Address: 121 Park Lane, London W1K 7AG. GPEA Limited. Registered in England & Wales.  Company No: 02819824.  Registered Office Address: 2 St. Stephen's Court, St. Stephen's Road, Bournemouth, Dorset, England, BH2 6LA.  VAT Registration No: 576 8795 61
Book a Property Valuation Update Cookies Preferences