Haddon Road, Stamford

£1,195pcm
Let
This property listing is now Let

3 Bedroom Semi-Detached House for rent in STAMFORD

2 3 1
  • 3 Bedroom Semi Detached House
  • Overlooking Green to Front
  • Close to Amenities
  • Well Presented Kitchen
  • L Shaped Living Dining Room
  • Stylish Family Bathroom Featuring a Separate Spa Bath and Body-Jet Shower
  • Larger than Average Rear Garden
  • Off Road Parking & Single Garage
  • Please see Key Facts for Tenants for Material Information Disclosures


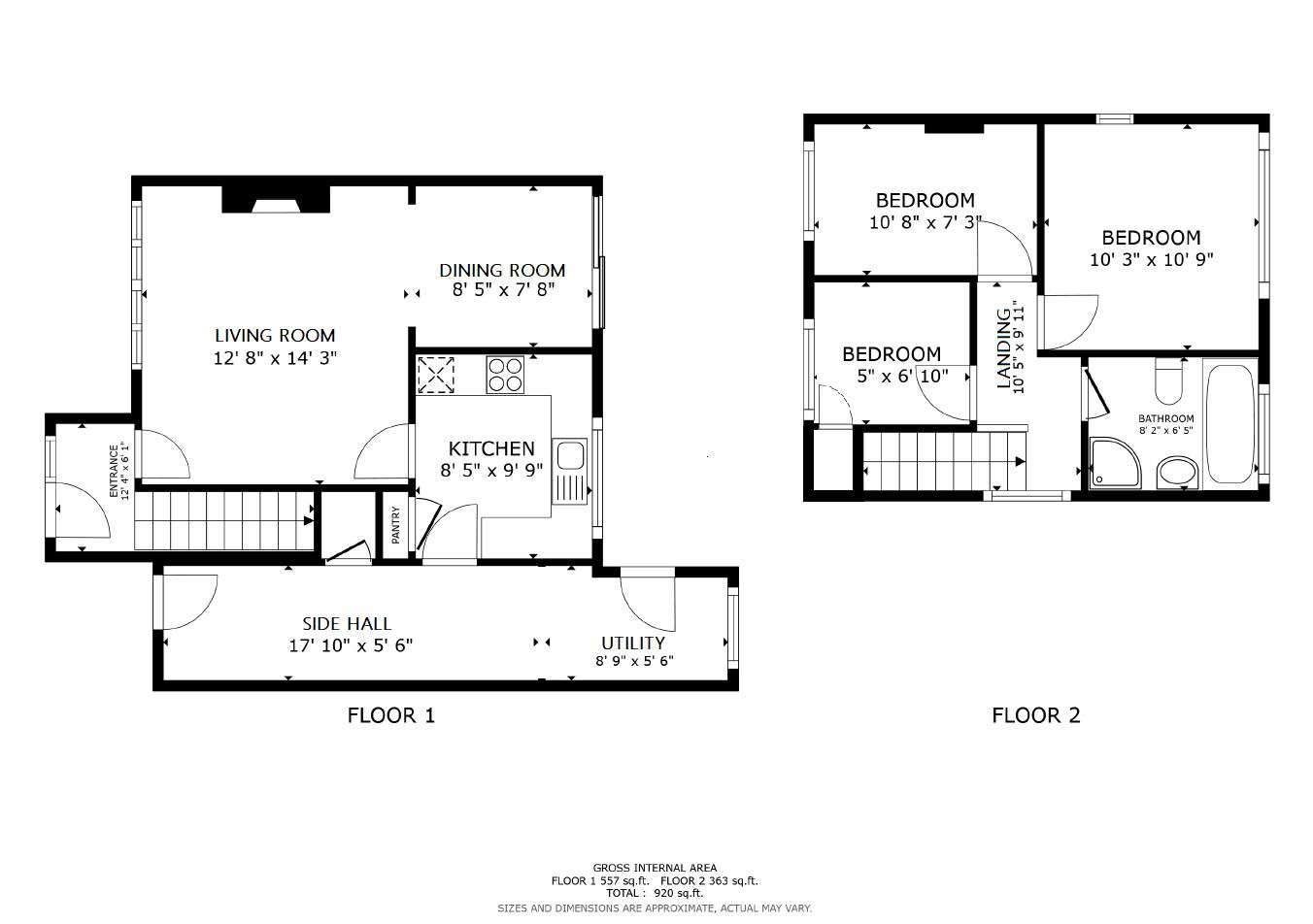
The accommodation at 22 Haddon Road has been thoughtfully refurbished to create a comfortable and contemporary home, offering well-planned living spaces ideal for modern family life. On the ground floor, the welcoming entrance hall leads into the bright and spacious L-shaped lounge/dining room, featuring a real flame fire and generous room for both relaxation and dining. The fitted kitchen provides practical workspace and storage, with direct access to the full-depth utility/storage area, which benefits from doors to both the front and rear of the property. Completing the ground floor is the stylish family bathroom, equipped with a separate spa bath and a body-jet shower for a luxurious finish. Upstairs, there are three well-proportioned bedrooms, each offering good natural light and flexibility for a variety of uses.

Agents Note:
Holding Deposit - £276.00
Tenancy Security Deposit – £1384.00
Local Authority – South Kesteven
Council Tax Band – B
EPC Rating - D

Entrance Hall

Living Room
3.86m x 4.34m (12'8" x 14'3")

Dining Room
2.57m x 2.34m (8'5" x 7'8")

Kitchen
2.57m x 2.97m (8'5" x 9'9")

Side Hall And Utility
8.10m x 1.68m (26'7" x 5'6")

Landing

Bedroom 1
3.12m x 3.28m (10'3" x 10'9")

Bedroom 2
3.25m x 2.21m (10'8" x 7'3")

Bedroom 3
1.52m x 2.08m (5'0" x 6'10")

Family Bathroom
2.49m x 1.96m (8'2" x 6'5")


Sizes and dimensions are calculated using a laser measuring modelling device and as such whilst representative it must be noted that they are all approximate, actual sizes may vary.

Important Information

  • This Council Tax band for this property is: B
  • EPC Rating is D

Property Ref: 43069_34340250

Share:

Similar Properties

Fincham Drive, Crowland, Peterborough

3 Bedroom End of Terrace House | £1,195pcm

A modern 3 Bed, 2 Bathroom semi-detached home with driveway parking, single garage and an enclosed rear garden, further...

Riverside Place, Stamford

2 Bedroom Flat | £1,195pcm

A generously proportioned two-bedroom top-floor apartment ideally situated in the heart of town, just a short stroll fro...

Arran Road, Stamford

3 Bedroom Semi-Detached House | £1,195pcm

Extremely well presented, high-specification two/three-bedroom home that’s been completely modernised throughout - featu...

Gresley Drive, Stamford

2 Bedroom Terraced House | £1,200pcm

A well-presented two-bedroom home with a generous conservatory, enclosed rear garden and allocated parking. The property...

Caledonian Road, STAMFORD, Lincolnshire

3 Bedroom Semi-Detached House | £1,200pcm

3 Bedroom family home with 2 receptions, garage and off street parking as well as a low maintenance enclose courtyard ga...

Schofield Road, Oakham

3 Bedroom Detached House | £1,250pcm

This modern 3-bedroom detached house sits on the edge of the popular market town of Oakham in a quiet residential area,...

Goodwin Property (Stamford)

St Johns Street, Stamford, Lincolnshire, PE9 2DA

01780 750000

How much is your home worth?

Use our short form to request a valuation of your property.

Request a Valuation
©2026 The Guild of Property Professionals. All rights reserved. Terms and Conditions | Privacy Policy | Cookie Policy | Complaints Policy | Members Login
The Guild of Property Professionals Trading Address: 121 Park Lane, London W1K 7AG. GPEA Limited. Registered in England & Wales.  Company No: 02819824.  Registered Office Address: 2 St. Stephen's Court, St. Stephen's Road, Bournemouth, Dorset, England, BH2 6LA.  VAT Registration No: 576 8795 61
Book a Property Valuation Update Cookies Preferences