Langton Walk, Stamford, Lincolnshire

£1,795pcm
Let Agreed
This property listing is now Let Agreed

4 Bedroom Town House for rent in Stamford

2 4 3
  • Beautifully Presented 4 Bedroom Town House
  • Spacious Flexible Accommodation Over Three Floors
  • Close to Malcolm Sargent Primary School
  • Living/Dining Room with French Doors Leading to the Rear Garden
  • First Floor Reception Room
  • Master Bedroom with En Suite Shower Room
  • Three further Bedrooms, Shower Room and Family Bathroom
  • Single Garage & Parking
  • Please see Key Facts for Tenants for Material Information Disclosures


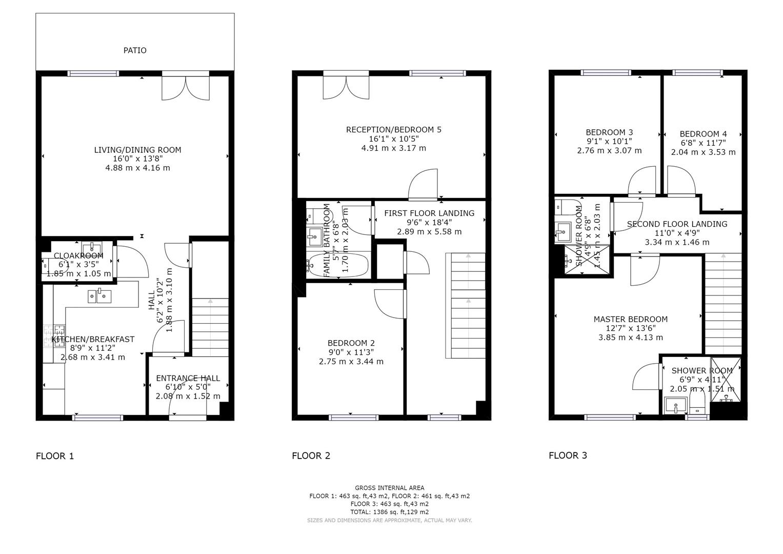
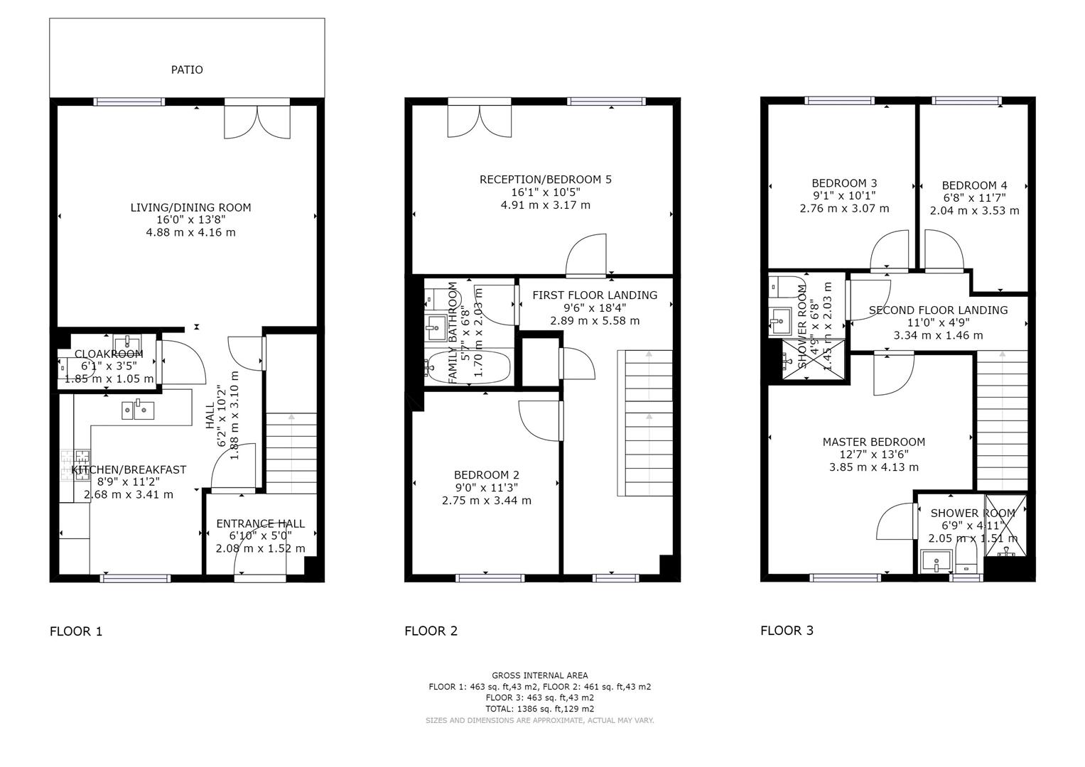
The ground floor comprises a welcoming entrance hall, a cloakroom, and a superb open-plan kitchen, dining, and living space, complete with integrated appliances and French doors leading out to the rear garden. On the first floor, there is an additional sitting room or potential fifth bedroom featuring a Juliet balcony, alongside a well-proportioned double bedroom and a contemporary family bathroom.

The top floor hosts the principal bedroom with an en-suite shower room, as well as two further bedrooms and a third bathroom—ideal for children, guests, or use as home office space.

Outside, the property benefits from a low-maintenance front garden and an enclosed rear garden with both lawn and patio areas. Gated access leads to a single garage and driveway parking for one car.

Agents Note:
Holding Deposit - £414
Tenancy Security Deposit – £2071
Local Authority – South Kesteven District Council
Council Tax Band – D
EPC Rating - B

Entrance Hall
2.08m x 1.52m (6'10" x 5'0")

Kitchen/Breakfast Room
11' 3'' x 8' 9'' (3.43m x 2.66m)

Living Dining Room
13' 9'' x 16' 0'' (4.19m x 4.87m)

Downstairs Cloakroom
1.85m x 1.04m (6'1" x 3'5")

First Floor Landing
2.90m max x 5.59m (9'6" max x 18'4")

Reception Room / Bedroom 5
10' 2'' x 16' 0'' (3.10m x 4.87m)

Bedroom 2
11' 3'' x 9' 0'' (3.43m x 2.74m)

Bathroom
6' 8'' x 5' 8'' (2.03m x 1.73m)

Second Floor Landing
3.35m x 1.45m (11'0" x 4'9")

Master Bedroom
13' 9'' x 12' 7'' (4.19m x 3.83m) max

En Suite Shower Room
2.06m x 1.50m (6'9" x 4'11")

Bedroom 3
10' 0'' x 9' 0'' (3.05m x 2.74m)

Bedroom 4
11' 6'' x 6' 8'' (3.50m x 2.03m)

Shower Room
1.45m x 2.03m (4'9" x 6'8")

Garage + Off Street Parking

Fully Enclosed Rear Garden


Sizes and dimensions are calculated using a laser measuring modelling device and as such whilst representative it must be noted that they are all approximate, actual sizes may vary.

Important Information

  • This Council Tax band for this property is: D
  • EPC Rating is B

Property Ref: GPS03556

Share:

Similar Properties

Tennyson Way, Stamford

4 Bedroom Detached House | £1,795pcm

A well-presented four bedroom detached family home located in a popular residential cul-de-sac on Tennyson Way, within e...

North Street, Stamford

4 Bedroom Terraced House | £1,750pcm

A deceptively spacious and beautifully renovated, highly individual 4-bedroom, 3-bathroom townhouse in the heart of Stam...

Conduit Road, Stamford

3 Bedroom End of Terrace House | £1,500pcm

Finished to an exceptionally high standard throughout this 3 bedroom family home is modern and spacious with family bath...

Gunthorpe Road, Peterborough

4 Bedroom Detached House | £1,850pcm

A spacious four-bedroom semi-detached home offering over 1,600 sq ft of accommodation, with generous living space, moder...

High Street, Ketton

3 Bedroom Cottage | £1,995pcm

A beautifully presented and thoughtfully renovated three-bedroom detached home, set within the highly sought-after Rutla...

Stocken Hall, Stretton, Oakham

3 Bedroom Character Property | £2,000pcm

Approached down a sweeping driveway and set within an iconic Grade II* listed country house dating back to the early 17t...

Goodwin Property (Stamford)

St Johns Street, Stamford, Lincolnshire, PE9 2DA

01780 750000

How much is your home worth?

Use our short form to request a valuation of your property.

Request a Valuation
©2026 The Guild of Property Professionals. All rights reserved. Terms and Conditions | Privacy Policy | Cookie Policy | Complaints Policy | Members Login
The Guild of Property Professionals Trading Address: 121 Park Lane, London W1K 7AG. GPEA Limited. Registered in England & Wales.  Company No: 02819824.  Registered Office Address: 2 St. Stephen's Court, St. Stephen's Road, Bournemouth, Dorset, England, BH2 6LA.  VAT Registration No: 576 8795 61
Book a Property Valuation Update Cookies Preferences