Surbiton

£2,200pcm
Let Agreed
This property listing is now Let Agreed

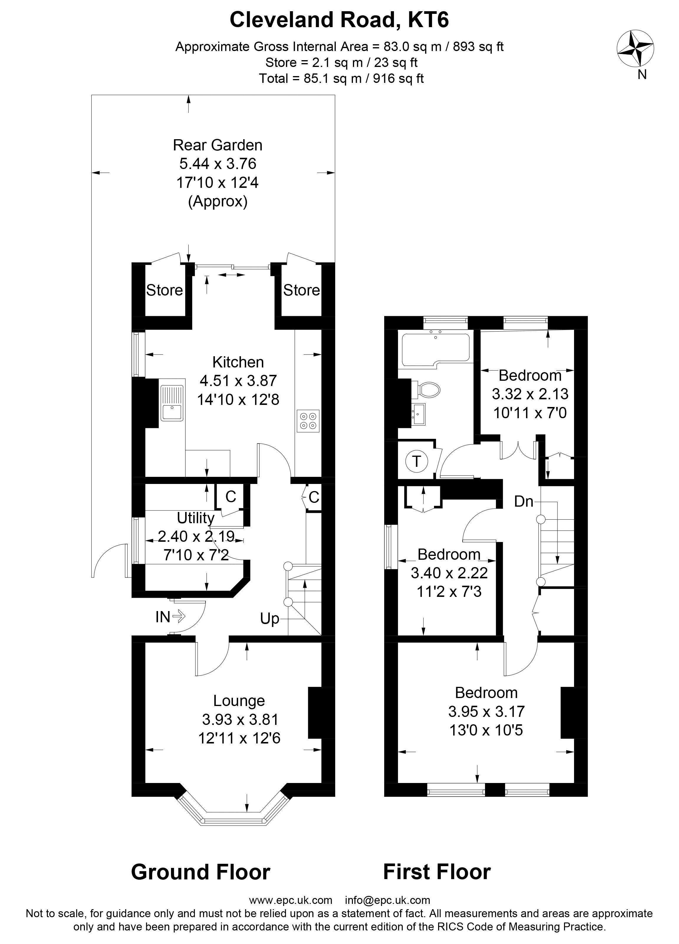
3 Bedroom House for rent in Surrey

1 3 1
  • Pretty Semi Detached Cottage
  • Sought after River Road
  • Three bedrooms
  • South facing garden
  • Original features throughout

A semi-detached Victorian house located on a sought after River Road, within close proximity of Surbiton town centre, the River Thames and the popular Farmer's Market, bars and restaurants on Maple Road. The property offers well proportioned accommodation which comprises a living room with bay window and feature fireplace, utility room, modern Kitchen/breakfast room, three bedrooms and a well presented bathroom. The property further benefits from a south facing patio garden and original features throughout.

Property Ref: 2598754

Share:

Similar Properties

St Marks Hill, Surbiton KT6

2 Bedroom Apartment | £2,200pcm

Seymours of Surbiton is pleased to present this meticulously refurbished top-floor apartment to the market. Ideally situ...

Balaclava Road, Surbiton KT6

2 Bedroom Apartment | £2,200pcm

Seymours are proud to present to the market this apartment situated in this popular executive development near Surbiton...

Portsmouth Road

2 Bedroom Apartment | £2,175pcm

Seymours of Surbiton is pleased to present this outstanding ground floor two-bedroom apartment, ideally situated in a hi...

Surbiton

2 Bedroom Apartment | £2,250pcm

Presented to the market in immaculate conditon, this three bedroom garden flat has been tastefully modernised to showcas...

Esher

2 Bedroom Cottage | £2,250pcm

This rarely available for rent, Beautiful grade II listed Victorian two bedroom cottage is ideally located for both Eshe...

Cottage Grove, Surbiton KT6

2 Bedroom Semi-Detached House | £2,250pcm

Seymours are delighted to present to the market this two bedroom house in a quiet location in central Surbiton. Located...

Seymours (Surbiton)

13 Brighton Road, Surbiton, Surrey, KT6 5LX

020 8390 3333

How much is your home worth?

Use our short form to request a valuation of your property.

Request a Valuation
©2026 The Guild of Property Professionals. All rights reserved. Terms and Conditions | Privacy Policy | Cookie Policy | Complaints Policy | Members Login
The Guild of Property Professionals Trading Address: 121 Park Lane, London W1K 7AG. GPEA Limited. Registered in England & Wales.  Company No: 02819824.  Registered Office Address: 2 St. Stephen's Court, St. Stephen's Road, Bournemouth, Dorset, England, BH2 6LA.  VAT Registration No: 576 8795 61
Book a Property Valuation Update Cookies Preferences