Flistridge Road, UPPER MINETY

£2,995pcm
Let Agreed
This property listing is now Let Agreed

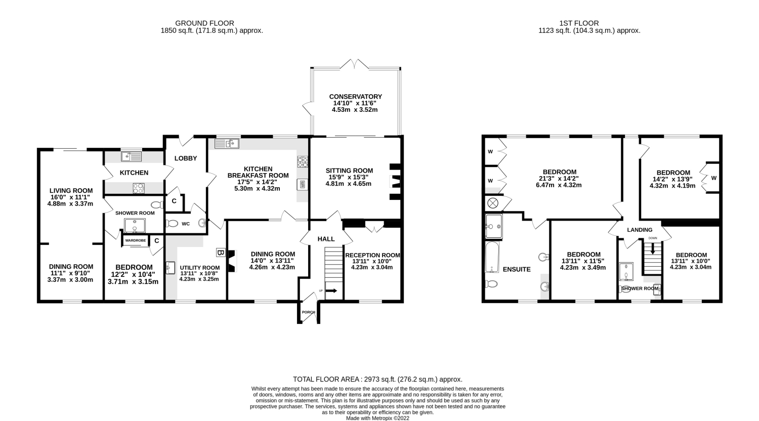
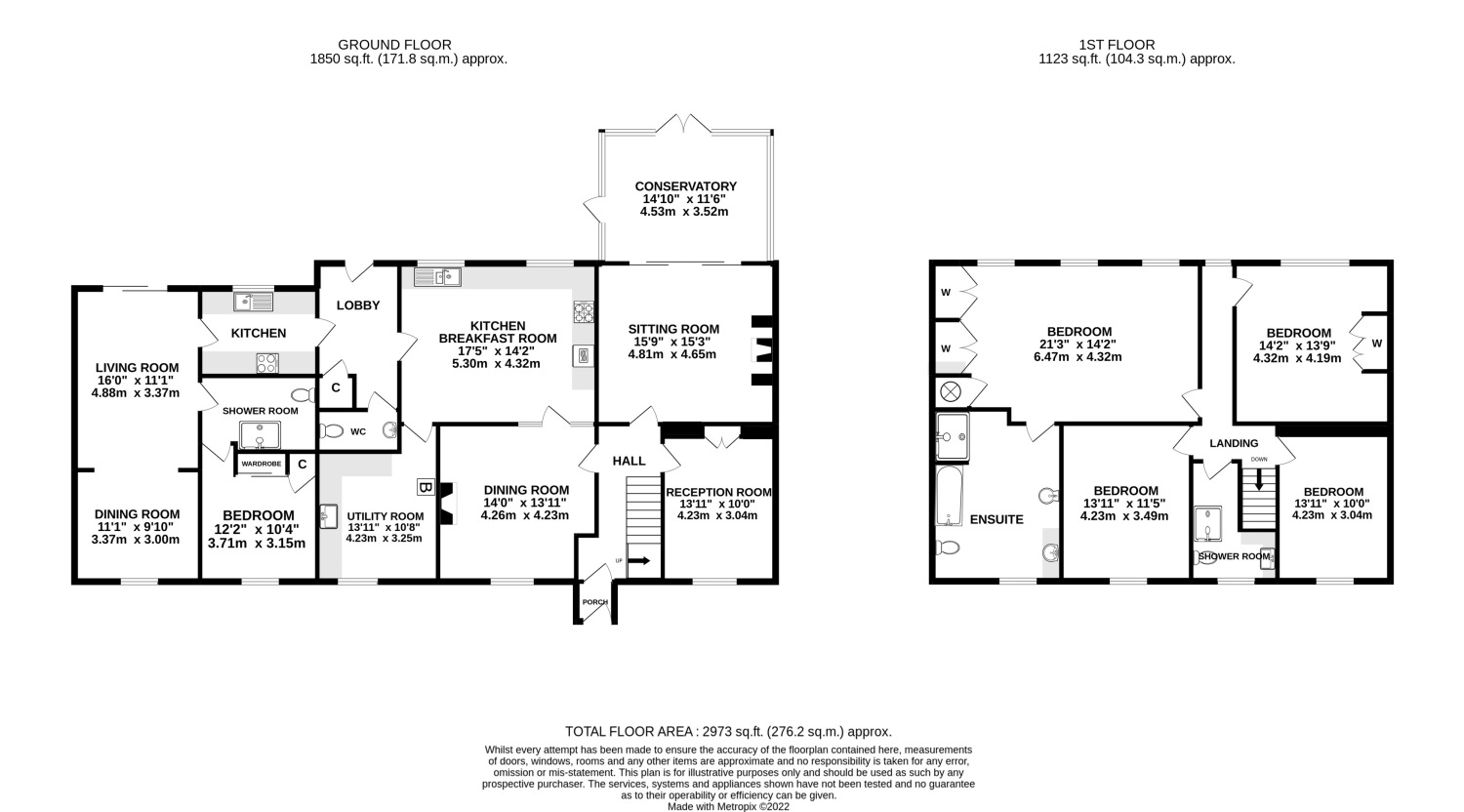
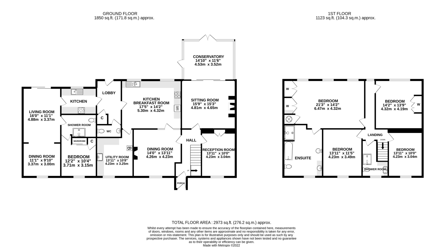
5 Bedroom Detached House for rent in Upper Minety

5 5 3
  • Very Spacious Family Home
  • Extensive Lawned Gardens - Maintenance Included
  • 5 Good Sized Reception Rooms In All
  • 5 Double Bedrooms In Total
  • Large, Well Appointed Master Bedroom Suite
  • Gas Fired Central Heating
  • Triple Car Port And Workshop
  • Gigaclear Ultrafast Fibre Option
  • Pretty Rural Village Location
  • Available Early Now

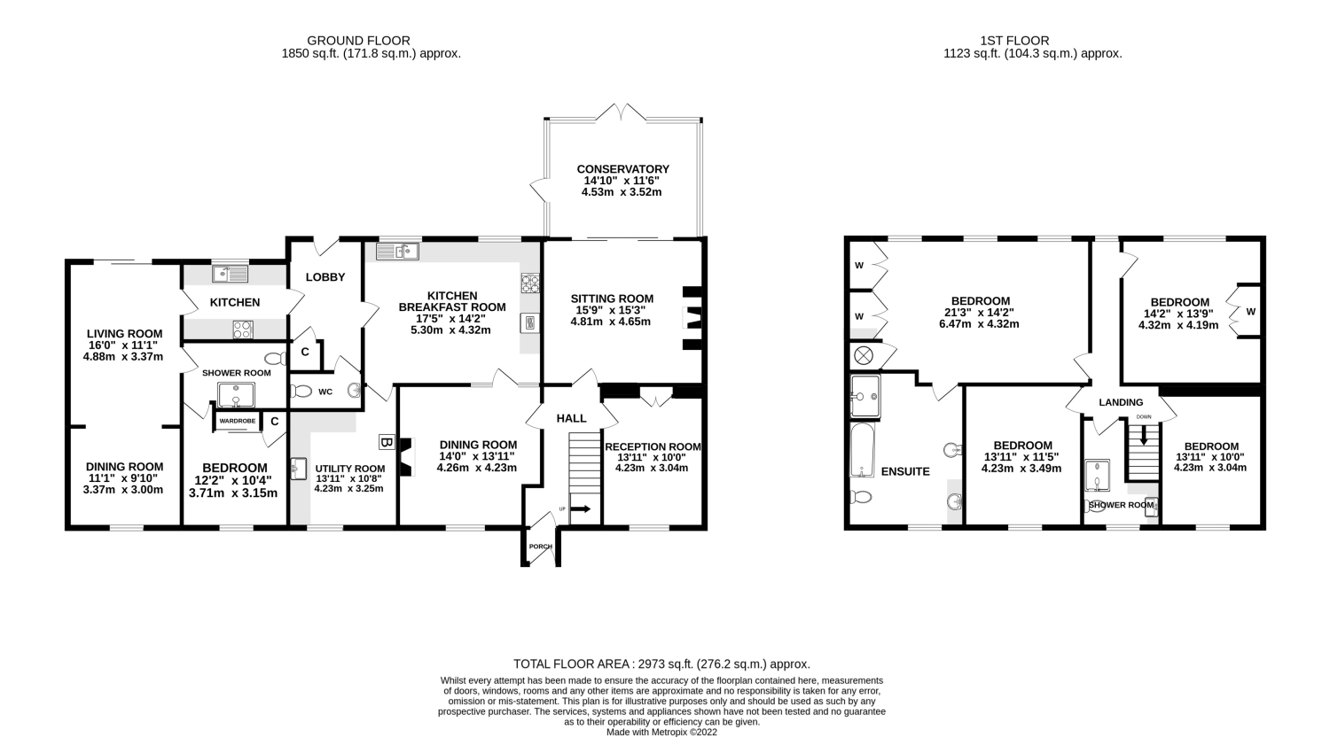
A fabulous opportunity to rent this substantial five-bedroom, five-reception room detached family home, set within extensive grounds on the edge of a peaceful and picturesque village. Conveniently located between Cirencester and Malmesbury, and within easy reach of the Cotswold Water Park, this attractive period property extends to around 3,000 sq. ft. The accommodation has been sympathetically updated to suit modern living, whilst retaining the character and charm of its original design. Highlights include a spacious kitchen/family room, multiple reception rooms, and a superb conservatory with a wonderful southerly outlook across the gardens.
The home offers excellent flexibility, including a ground floor self-contained annexe with double bedroom and en-suite shower room – ideal for multi-generational living, an au pair, or dedicated home office. Externally, the property enjoys large landscaped gardens laid mainly to lawn (maintenance included), alongside a gated gravel driveway, triple garage, and workshop. Available early January, this rare rental opportunity combines generous space, period character, and modern comfort in an idyllic rural setting.Viewings are welcomed by appointment 6 days a week although be aware that viewings may require at least 24 hours' notice to arrange access. Please note that prior to any subsequent tenancy offer being accepted, all prospective tenants will be required to supply identification documents and proof of affordability.
Agent notes: these particulars have been prepared as a general guide only. A detailed survey has not been carried out, nor the services, appliances, fittings, etc, been tested. If room sizes are included, they are for guidance and illustration purposes only. They may not be to scale and should not be relied upon for furnishing or other purposes. If there are any important matters likely to affect your decision to proceed, please contact us before viewing the property.

Tenant protection: Moore Allen & Innocent is a member of the royal institution of chartered surveyor's client money protection scheme, and a member of the property ombudsman independent redress scheme. You can find out more details via our website or by contacting the office directly.

Landlords: do you own a similar property? Moore Allen & Innocent are an independent, multi-award winning, sales and lettings estate agency with over 175 years of property experience across the Cotswolds and beyond. If you have a similar property that you would like rented out or are looking for an agent to take away the stress and manage a property for you, we would be delighted to discuss how we can help. For more information regarding our services and a free, no-obligation review, please contact us today.

Property Ref: 593341_10197954

Share:

Similar Properties

Beech Lane, HAWKESBURY UPTON

3 Bedroom Barn Conversion | £2,995pcm

*** MOORE ALLEN & INNOCENT *** are delighted to offer this EXCEPTIONALLY HIGH QUALITY 3 DOUBLE BEDROOM BARN CONVERSION s...

Corinium Gate, Cirencester

4 Bedroom Detached House | £2,995pcm

A RARE and superb opportunity to acquire this spacious 4 BEDROOM DETACHED home in a SOUGHT AFTER location within walking...

Cargill Place, Oaksey

4 Bedroom Detached House | £2,800pcm

*** MOORE ALLEN & INNOCENT *** are delighted to offer this particularly spacious 4-5 double bedroom family home within t...

Fosse Cross, CHEDWORTH

3 Bedroom Detached House | £3,500pcm

*** MOORE ALLEN & INNOCENT *** are delighted to offer this SUBSTANTIAL 3 double bedroom family home with DOUBLE GARAGE a...

Somerford Keynes, Cirencester

3 Bedroom Detached House | £3,600pcm

A fabulous opportunity to rent this beautiful exceptionally spacious THREE DOUBLE BEDROOM, beautifully presented DETACHE...

Old Post Office Farm, Rendcomb, Cirencester

4 Bedroom Farm House | £3,750pcm

*** MOORE ALLEN & INNOCENT *** are delighted to offer this HIGH QUALITY 4 DOUBLE BEDROOM PERIOD property set within SIZE...

Moore Allen & Innocent (Cirencester)

33 Castle Street, Cirencester, Gloucestershire, GL7 1QD

01285 648100

How much is your home worth?

Use our short form to request a valuation of your property.

Request a Valuation
©2026 The Guild of Property Professionals. All rights reserved. Terms and Conditions | Privacy Policy | Cookie Policy | Complaints Policy | Members Login
The Guild of Property Professionals Trading Address: 121 Park Lane, London W1K 7AG. GPEA Limited. Registered in England & Wales.  Company No: 02819824.  Registered Office Address: 2 St. Stephen's Court, St. Stephen's Road, Bournemouth, Dorset, England, BH2 6LA.  VAT Registration No: 576 8795 61
Book a Property Valuation Update Cookies Preferences