Oaksey Road, UPPER MINETY

£995pcm
Let Agreed
This property listing is now Let Agreed

2 Bedroom Cottage for rent in Upper Minety

2 2 1
  • Spacious Lodge Cottage
  • 2-3 Bedrooms
  • 1-2 Reception Rooms
  • Fitted Kitchen /Breakfast Room
  • Bath With Fitted Shower Over
  • Low Maintenance Garden And Off Road Parking
  • Ultrafast Fibre Broadband Option
  • LPG Gas Central Heating

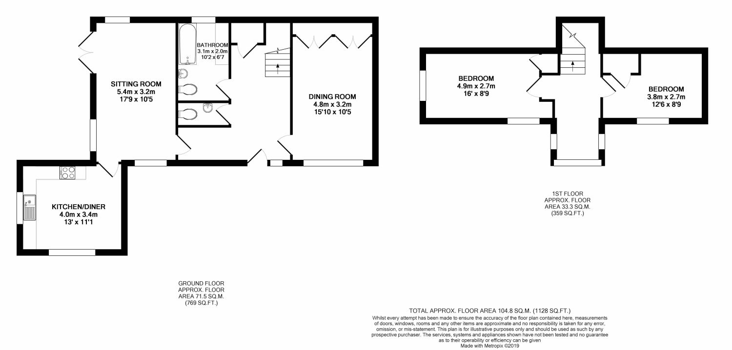
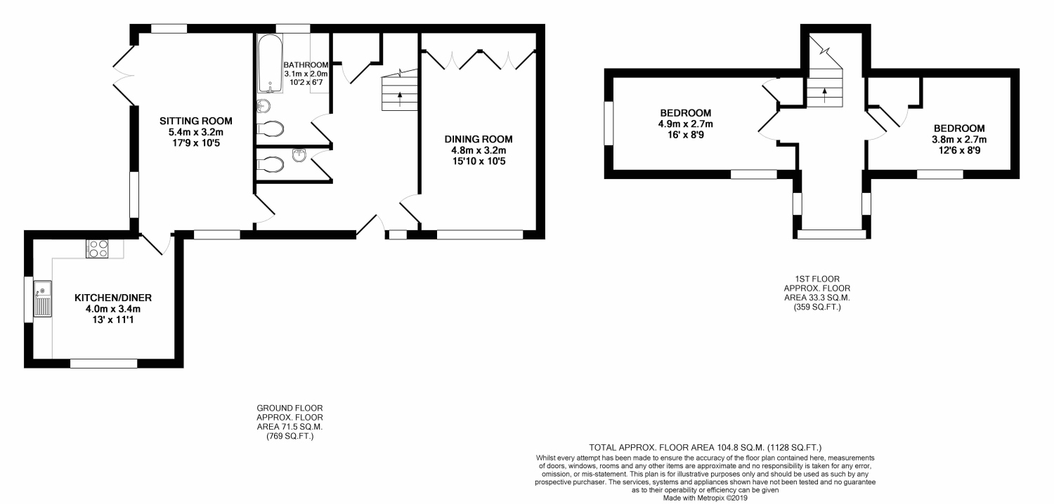
A spacious 2 /3-bedroom lodge cottage quietly situated within the grounds of a larger period property in the attractive rural village of Upper Minety on the Gloucestershire/Wiltshire border and within easy reach of Kemble station.
Available immediately, the flexible and well-presented accommodation is set over 2 floors and briefly comprises a welcoming entrance hall with access to the principal reception rooms and stairs to the first floor.
Of particular note with this property is the adaptable layout allowing for the second reception room to be used for a variety of purposes as required - whether a living room, home office /study or a guest /bedroom 3 perhaps?
In addition, there is a dual aspect kitchen /breakfast room with a range of units and space for appliances, dining table and seating. Also on the ground floor is a well-appointed family bathroom featuring a white bath suite with a fitted shower over.
To the first floor there are 2 bedrooms, including a comfortable double with open views as well as a good-sized landing.
Externally there is a secluded garden area which has been landscaped with artificial grass for ease of maintenance, together with allocated off-road parking within the courtyard itself.
Gigaclear ultrafast broadband connections are now available within the village further enhancing the appeal of this superb opportunity.

Viewings are welcomed by appointment 6 days a week although be aware that viewings may require at least 24 hours' notice to arrange access. Please note that prior to any subsequent tenancy offer being accepted, all prospective tenants will be required to supply identification documents and proof of affordability.

Agent notes: these particulars have been prepared as a general guide only. A detailed survey has not been carried out, nor the services, appliances, fittings, etc, been tested. If room sizes are included, they are for guidance and illustration purposes only. They may not be to scale and should not be relied upon for furnishing or other purposes. If there are any important matters likely to affect your decision to proceed, please contact us before viewing the property.

Tenant protection: Moore Allen & Innocent is a member of the royal institution of chartered surveyor's client money protection scheme, and a member of the property ombudsman independent redress scheme. You can find out more details via our website or by contacting the office directly.

Landlords: do you own a similar property? Moore Allen & Innocent are an independent, multi-award winning, sales and lettings estate agency with over 175 years of property experience across the Cotswolds and beyond. If you have a similar property that you would like rented out or are looking for an agent to take away the stress and manage a property for you, we would be delighted to discuss how we can help. For more information regarding our services and a free, no-obligation review, please contact us today.

Property Ref: 593341_9204595

Share:

Similar Properties

Mullings Court, CIRENCESTER

2 Bedroom Apartment | £995pcm

*** MOORE ALLEN & INNOCENT *** Are pleased to offer this updated 2 double bedroom top floor lift accessed apartment with...

Drift Way, CIRENCESTER

2 Bedroom Semi-Detached House | £995pcm

*** MOORE ALLEN & INNOCENT *** are very pleased to offer this modern 2 DOUBLE BEDROOM semi-detached property located at...

Perrinsfield, LECHLADE

3 Bedroom Terraced House | £995pcm

*** MOORE ALLEN & INNOCENT *** are delighted to offer for rent this VERY WELL PRESENTED 3-bedroom CUL-DE-SAC property wh...

Miserden Park, Miserden GL6

2 Bedroom Apartment | £1,000pcm

** MOORE ALLEN & INNOCENT *** is very pleased to present this GOOD-SIZED 2 DOUBLE BEDROOM TOP FLOOR APARTMENT POSITIONED...

Drift Way, CIRENCESTER

2 Bedroom Semi-Detached House | £1,000pcm

*** MOORE ALLEN & INNOCENT *** are pleased to offer this TWO BEDROOM semi-detached family home located in a CUL-DE-SAC s...

Chapel Close, KEMPSFORD

2 Bedroom Semi-Detached Bungalow | £1,050pcm

*** MOORE ALLEN & INNOCENT *** are delighted to offer this well presented 2 DOUBLE BEDROOM BUNGALOW overlooking fields t...

Moore Allen & Innocent (Cirencester)

33 Castle Street, Cirencester, Gloucestershire, GL7 1QD

01285 648100

How much is your home worth?

Use our short form to request a valuation of your property.

Request a Valuation
©2026 The Guild of Property Professionals. All rights reserved. Terms and Conditions | Privacy Policy | Cookie Policy | Complaints Policy | Members Login
The Guild of Property Professionals Trading Address: 121 Park Lane, London W1K 7AG. GPEA Limited. Registered in England & Wales.  Company No: 02819824.  Registered Office Address: 2 St. Stephen's Court, St. Stephen's Road, Bournemouth, Dorset, England, BH2 6LA.  VAT Registration No: 576 8795 61
Book a Property Valuation Update Cookies Preferences