Manor Road, Wallington, SM6

£1,300pcm
Let Agreed
This property listing is now Let Agreed

1 Bedroom Flat for rent in Wallington

1 1 1
  • Council Tax Band: B
  • Double Glazed Windows
  • Bicycle Store Room
  • Security Entry Phone System
  • Close to Station & Town Centre
  • Modern Bathroom & Kitchen
  • Neutral Decor

We are pleased to offer to the market this beautifully presented one bedroom first floor flat which is conveniently located to Wallington railway station and town centre being only 0.1 of a mile walk away. Benefits include secure bicycle store room, double glazing, modern interior with neutral décor, security entry phone system and central location.

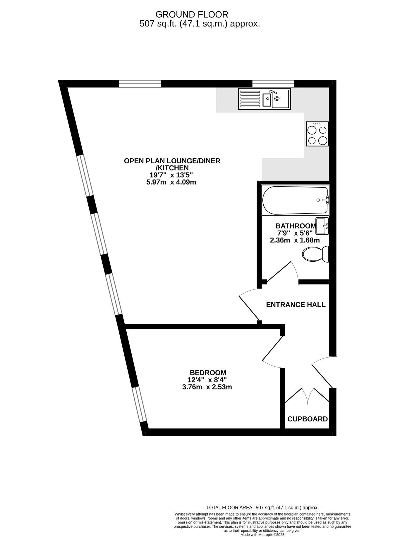
Lounge
19' 7" x 13' 4" (5.97m x 4.06m) Open plan to kitchen with a 3 seater sofa, table and chairs, which can be removed if required.

Kitchen
7' 10" x 5' 11" (2.39m x 1.80m) Open plan to lounge: Modern fully fitted kitchen with electric hob and oven, integrated fridge freezer and washer dryer.

Bedroom
12' 4" x 8' 4" (3.76m x 2.54m) Laminate wood floor, free standing double wardrobe, front aspect double glazed window.

Bathroom
7' 9" x 5' 6" (2.36m x 1.68m) Modern bathroom suite with thermostatically controlled shower over bath and heated towel rail.

Bicycle Store Room


Tenancy Info
Relevant letting fees
Holding Deposit: 1 weeks rent.
Security Deposit: 5 weeks rent.
During the tenancy:
Payment of £50.00 inclusive of VAT if you want to change the tenancy agreement
Payment of interest for the late payment of rent at a rate of 3% above The Bank of England base rate.
Payment of £15.00 per hour inclusive of VAT for the reasonably incurred costs for the loss of keys/security devices
Payment of any unpaid rent or other reasonable costs associated with your early termination of the tenancy
Tenant protection
Homecare Estates is a member of is a part of the National Federation of Property Professionals Client Money Protection Scheme through their membership of ARLA Propertymark (The Association of Residential Letting Agents).
Homecare Estates is a member of The Property Ombudsman, which is a redress scheme. You can find out more details on the agent’s website or by contacting the agent directly.
Please note that lettings agents are required by law to publish on their websites information for potential tenants about relevant fees, redress schemes and client money protection schemes (including the names of those schemes). Relevant fees must also be published on third party websites, such as Rightmove. For properties to rent in England, details of the agent’s membership of any redress scheme and client money protection scheme must also be published with their fees on Rightmove. It is the agent’s responsibility to ensure that all relevant information is provided to Rightmove and is up to date and accurate. If the relevant information does not appear here, the agent may have included it within the property description.

Property Ref: 12094001_29124901

Share:

Similar Properties

Grosvenor Road, Wallington, SM6

1 Bedroom Flat | £1,300pcm

A modern one bedroom first (top) floor flat newly redecorated throughout and located in a quiet residential area within...

21 Spencer Road, SOUTH CROYDON, CR2

2 Bedroom Flat | £1,300pcm

A two double bedroom flat situated on the 2nd (top) floor which has been re-decorated and new carpets fitted. With local...

Brodie House, Harcourt Avenue, SM6

1 Bedroom Flat | £1,300pcm

A beautifully presented and spacious one bedroom ground floor flat conveniently situated within a 0.5 of a mile walk to...

The Chase, Wallington, SM6

1 Bedroom Maisonette | £1,350pcm

We are pleased to present to the market this modern one bedroom ground floor maisonette, with private rear garden. It is...

Basinghall Gardens, Sutton, SM2

2 Bedroom Flat | £1,400pcm

A well presented two double bedroom purpose built flat, situated on the 10th floor with two lifts. Conveniently situated...

Bute Court, Bute Road, Wallington, SM6

2 Bedroom Flat | £1,400pcm

Located 0.3 miles from Wallington train station, this two bedroom first floor (top) property is offered to the rental ma...

Homecare Estates (Wallington)

Wallington, Surrey, SM6 8QG

020 8395 8111

How much is your home worth?

Use our short form to request a valuation of your property.

Request a Valuation
©2025 The Guild of Property Professionals. All rights reserved. Terms and Conditions | Privacy Policy | Cookie Policy | Complaints Policy | Members Login
The Guild of Property Professionals Trading Address: 121 Park Lane, London W1K 7AG. GPEA Limited. Registered in England & Wales.  Company No: 02819824.  Registered Office Address: 2 St. Stephen's Court, St. Stephen's Road, Bournemouth, Dorset, England, BH2 6LA.  VAT Registration No: 576 8795 61
Book a Property Valuation Update Cookies Preferences