West End

£1,925pcm
Let Agreed
This property listing is now Let Agreed

3 Bedroom Not Specified for rent in West End

3
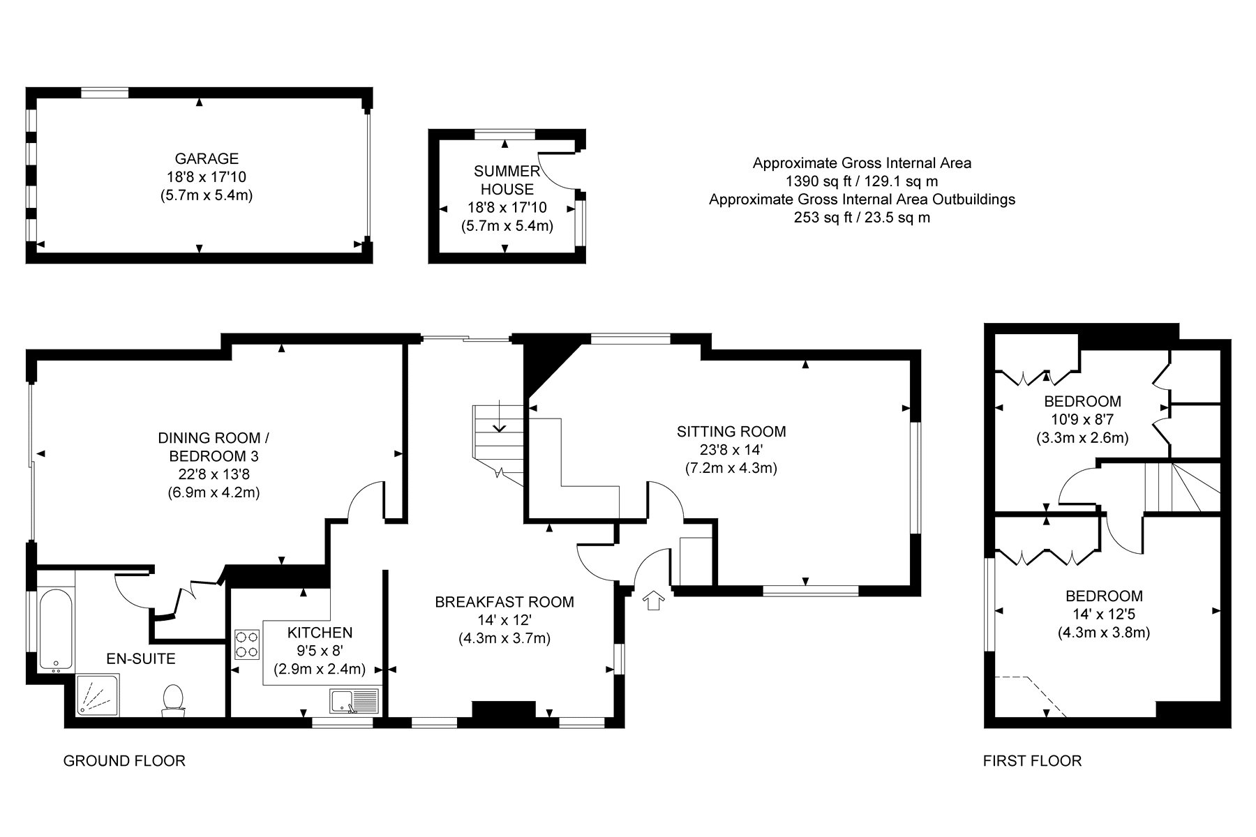
  • Three Bedroom Charlet Bungalow
  • 2 Reception Rooms
  • One Bathroom
  • Unfurnished
  • Detached Garage with Car Port
  • EPC Rating Band D
  • Council Tax Band E
  • Deposit £2500

A charming character cottage located in the popular village of West End and presented to the market in excellent condition throughout. Originally dating back to 1926, the property has been cleverly extended and lovingly cared for by the current owner to create what is now a wonderful home with flexible and adaptable accommodation. The property is accessed via large timber gates to the front and lead to a driveway that provides ample off-street parking. The South Westerly orientation allows for plenty of natural light, a theme that continues throughout the property and rear garden. Internally the property provides flexible living accommodation and is deceptively spacious. A loft conversion has created two bedrooms, one currently being utilised as the master that boasts a range of bespoke wardrobes. On the ground floor there are 2/3 generous reception rooms creating a delightful living space. To the front, a triple aspect music room is flooded with natural light. The hand-built feature fireplace with granite mantle provides the main feature for the room. The middle reception room provides the ideal area to relax. Three well situated windows brighten the room, again a feature fireplace provides the central feature From here there is access to the kitchen. A range of eye and base level units are offered that incorporate appliances and are nicely finished with feature lighting. The final reception room has in the past been used as a downstairs third bedroom by virtue of the adjoining en-suite bathroom. It is generous in size with large patio doors providing wonderful views over the stunning rear garden. Completing the downstairs is a luxurious four-piece bathroom suite with walk in shower cubicle and separate bathroom, floor to ceiling tiles offer a stylish finish. To the rear of the property is a sizeable garden that stretches approximately 75ft in length. A detached garage and car port round off what this wonderful house has to offer. Location West End village is conveniently located for access to Junction 3 of the M3 which in turn gives access to both Heathrow and Gatwick international airports. Education is well catered for with two excellent schools, the highly regarded Gordon’s School and Holy Trinity primary school. The Gosden Parade provides a good range of shops to include a news agents, butchers, hairdressers and coffee shop. Local dining is also excellent with the Inn At West End directly in the village whilst local Chobham village also offers several similar pub/restaurants. Brookwood station is approximately 2.3 miles with a regular direct service to Waterloo.

Property Ref: 2645466

Share:

Similar Properties

Bisley

3 Bedroom End of Terrace House | £1,900pcm

Well presented end terrace family home offering three double bedrooms, living/dining room, study/bed 4 (converted garage...

Goldsworth Park, Woking, GU21

3 Bedroom Not Specified | £1,900pcm

A well-presented three-bedroom link-detached house situated in a popular cul-de-sac, within walking distance of Goldswor...

Addlestone

4 Bedroom Not Specified | £1,900pcm

Located less than 400m from Chertsey High School (as the crow fies) is this end terrace four bedroom, two reception room...

Mount Hermon Road, Woking, Surrey, GU22

3 Bedroom Terraced House | £1,950pcm

A well-presented three bedroom home situated within a popular road in the heart of Woking Town Centre. Having been re-de...

West End

4 Bedroom Detached House | £1,950pcm

A well presented detached family home located in the popular village of West End. Comprising four bedrooms with en-suite...

West End, Woking, GU24

3 Bedroom Not Specified | £1,950pcm

A modern and well-presented link-detached home set in a quiet cul-de-sac in the village of West End, close to local amen...

Seymours (Woking)

Woking, Surrey, GU21 6XR

01483 741 300

How much is your home worth?

Use our short form to request a valuation of your property.

Request a Valuation
©2025 The Guild of Property Professionals. All rights reserved. Terms and Conditions | Privacy Policy | Cookie Policy | Complaints Policy | Members Login
The Guild of Property Professionals Trading Address: 121 Park Lane, London W1K 7AG. GPEA Limited. Registered in England & Wales.  Company No: 02819824.  Registered Office Address: 2 St. Stephen's Court, St. Stephen's Road, Bournemouth, Dorset, England, BH2 6LA.  VAT Registration No: 576 8795 61
Book a Property Valuation Update Cookies Preferences