Chapel Street, Chichester

£1,295pcm
Let
This property listing is now Let

2 Bedroom Flat for rent in West Sussex

1 2 1
  • Two bedrooms | Open plan sittting/dining room | Bespoke fitted kitchen | Integrated white goods | City centre location

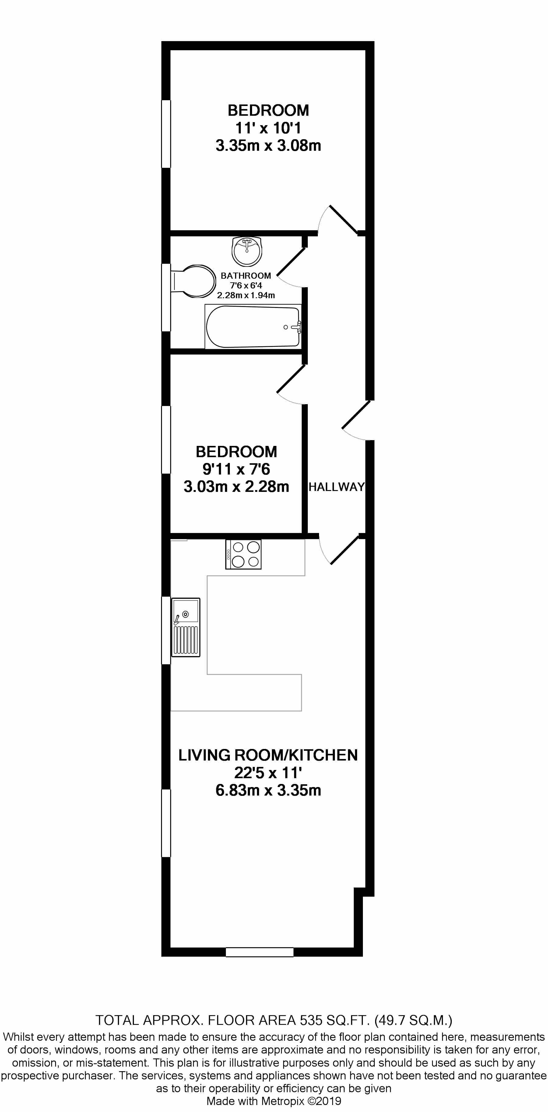
Situated within a thoughtfully designed development off Chapel Street, Apartment 2 is accessed via a secure communal entrance with an intercom entry system. Inside, the apartment features a bright and spacious open-plan kitchen and living area. The contemporary kitchen is appointed with a breakfast bar, integrated appliances, and an induction hob, all finished to a high standard.

The accommodation comprises two bedrooms—one small double and one single—along with a sleek family bathroom featuring a bathtub and overhead shower.

While the property does not include dedicated parking, residents may apply for a permit through Chichester District Council for use of local city centre car parks.

Offered on an unfurnished basis, this property presents an exceptional opportunity to reside in one of Chichester’s most sought-after central locations.

SITUATION

Ideally situated just three minutes’ walk from The Cross, this apartment lies in the very heart of Chichester, a city celebrated for its rich heritage and cultural attractions.

Nearby are the acclaimed Chichester Festival Theatre, Pallant House Gallery, and the historic Priory Park. The area offers a strong selection of schools, including Bishop Luffa, Chichester High Schools, and leading independent options such as The Prebendal, Oakwood, and Portsmouth Grammar.

Chichester also benefits from both a university and a college of further education.

For sailing and outdoor pursuits, Chichester Marina, Itchenor Sailing Club, and the Salterns Way cycle path—leading to the sandy shores of West Wittering—are all within easy reach, along with access to the South Downs National Park.

Important Information

  • This Council Tax band for this property is: C
  • EPC Rating is E

Property Ref: CHR200109

Share:

Similar Properties

Northshore Boatyard, Itchenor

2 Bedroom Flat | £1,295pcm

Positioned above the renowned Quarterdeck Café at the heart of Northshore Boatyard, this beautifully refurbished two-dou...

Chapel Street, Chichester

2 Bedroom Ground Floor Flat | £1,295pcm

A spacious two-bedroom ground-floor apartment, ideally positioned in the heart of Chichester

Halnaker, Chichester

2 Bedroom Terraced House | £1,295pcm

This renovated two-bedroom terraced cottage offers the perfect blend of character and comfort in the picturesque village...

Down Street, West Ashling

2 Bedroom End of Terrace House | £1,300pcm

A beautifully appointed cottage nestled within an idyllic downland village became available to rent on long term basis

Westgate, Chichester

3 Bedroom Terraced House | £1,305pcm

Tod Anstee are delighted to offer this charming period cottage in the heart of the cathedral city of Chichester. The pro...

Main Road, Chidham

3 Bedroom Flat | £1,312pcm

A newly decorated, modern two-bedroom apartment, just 5 miles from Chichester, is now available to rent on a long term b...

Tod Anstee (Chichester)

14 West Pallant, Chichester, West Sussex, PO19 1TB

01243 523723

How much is your home worth?

Use our short form to request a valuation of your property.

Request a Valuation
©2026 The Guild of Property Professionals. All rights reserved. Terms and Conditions | Privacy Policy | Cookie Policy | Complaints Policy | Members Login
The Guild of Property Professionals Trading Address: 121 Park Lane, London W1K 7AG. GPEA Limited. Registered in England & Wales.  Company No: 02819824.  Registered Office Address: 2 St. Stephen's Court, St. Stephen's Road, Bournemouth, Dorset, England, BH2 6LA.  VAT Registration No: 576 8795 61
Book a Property Valuation Update Cookies Preferences