Richmond Street, Weston-super-Mare

£25,000pa

Not Specified for rent in Weston-Super-Mare

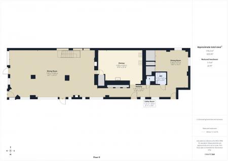
  • A 2656sq ft commanding restaurant & bar premises now available To Let.
  • Ready to trade with all fixtures & fittings included with an ingoing of £30,000.00
  • A rare accommodation with a full licence to trade until 04:00am.
  • Comfortably able to house 110 covers enticing a strong revenue potential.
  • Full Repairing & Insuring terms by negotiation
  • Strategically located on a corner plot on Richmond Street benefiting from excellent visibility & footfall.
  • Commercial EPC Rating: C63

David Plaister Ltd is delighted to offer this 2656sq ft, highly visible restaurant premises to let, prominently positioned in the heart of Weston-super-Mare town centre on the popular Richmond Street. The property enjoys excellent frontage and strong pedestrian footfall, providing outstanding exposure for a food-led business in a thriving central location.

The restaurant offers substantial internal accommodation, capable of seating up to approximately 110 covers, making it ideal for a wide range of dining concepts. The unit benefits from a layout well suited to immediate occupation, with fixtures and fittings included with an ingoing of £30,000.00, allowing an incoming operator to commence trading with minimal setup time.

The central position ensures strong passing trade throughout the day and evening, presenting a rare opportunity to secure a large-capacity restaurant unit in one of Weston-super-Mare’s most established commercial areas.

Property Ref: DPO250810

Share:

Similar Properties

Oxford Street, Weston-super-Mare

Not Specified | £20,000pa

David Plaister Ltd is pleased to offer this 1476sq ft restaurant and bar premises to let, prominently located on Oxford...

Mendip Business Park, Mendip Road, Rooksbridge

Light Industrial | £12,000pa

David Plaister Ltd are delighted to offer this commercial premises TO LET. Occupying strategic positioning within reach...

Waterloo Street, Weston-super-Mare

Retail Property (High Street) | £12,000pa

An attractive retail unit available to let at 26 Waterloo Street, BS23 1LN, occupying a prominent and easily visible pos...

St James Street, Weston-super-Mare

Retail Property (High Street) | £30,000pa

David Plaister Ltd is delighted to present this exceptional commercial property in the heart of Weston-super-Mare, ideal...

High Street, Weston-super-Mare, North Somerset, BS23 1HS

Not Specified | £32,000pcm

An outstanding opportunity to lease a prominent and fully equipped commercial restaurant in the heart of Weston-super-Ma...

St. Margarets Terrace, Weston-super-Mare, North Somerset

37 Bedroom Not Specified | £60,000pa

A commanding 37-bedroom hotel available to purchase, prominently positioned at the foot of the seafront in Weston-super-...

David Plaister Ltd (Weston-super-Mare)

Weston-super-Mare, North Somerset, BS23 1JN

01934 815 053

How much is your home worth?

Use our short form to request a valuation of your property.

Request a Valuation
©2026 The Guild of Property Professionals. All rights reserved. Terms and Conditions | Privacy Policy | Cookie Policy | Complaints Policy | Members Login
The Guild of Property Professionals Trading Address: 121 Park Lane, London W1K 7AG. GPEA Limited. Registered in England & Wales.  Company No: 02819824.  Registered Office Address: 2 St. Stephen's Court, St. Stephen's Road, Bournemouth, Dorset, England, BH2 6LA.  VAT Registration No: 576 8795 61
Book a Property Valuation Update Cookies Preferences