Horsell, Woking, GU21

£3,750pcm
Let Agreed
This property listing is now Let Agreed

4 Bedroom Detached House for rent in Woking

3 4 2
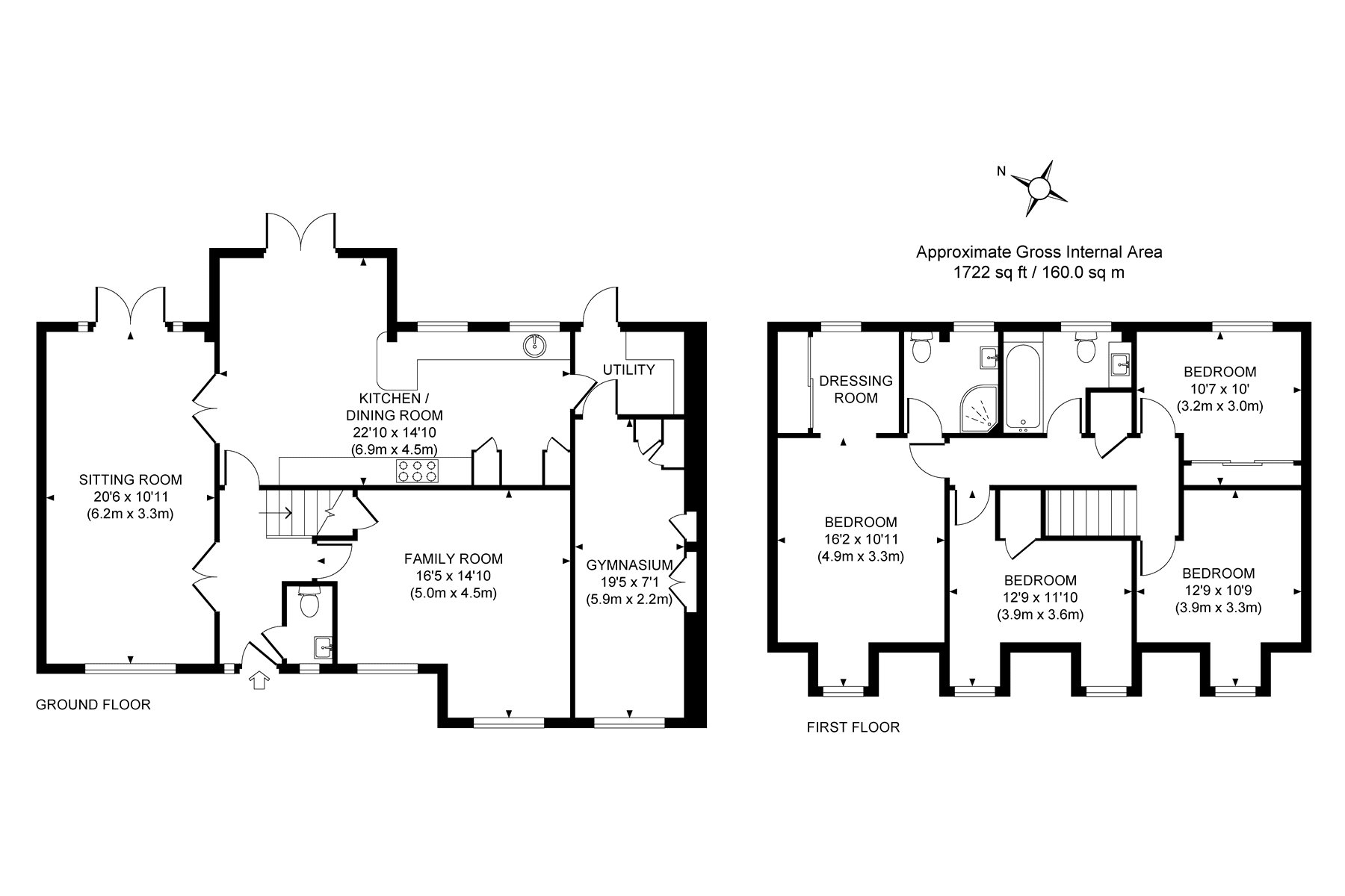
  • Four Bedroom Detached Family Home
  • Located on A Prime Road in Horsell Village
  • Three Generous Reception Rooms
  • Modern Kitchen/Diner
  • Utility Room
  • Four Double Bedrooms
  • Principal Suite with Dressing Area and En-suite
  • Private Rear Garden
  • Walking Distance to Woking Town and Mainline Station
  • Council Tax Band G

Tucked away on a leafy road in a prime Horsell location, this impressive detached home offers privacy, space and flexibility for family living. Surrounded by tall fir trees, the property enjoys a secluded frontage with ample driveway parking. On the ground floor, a central hallway leads to three generous reception rooms, including a bright main living room with access to the rear garden, a versatile family room, and a spacious modern kitchen diner with stylish units, worktops, and french doors to the garden. There’s also a useful utility room. Upstairs, a large landing leads to four double bedrooms, including a principal suite with a dressing area and en-suite bathroom. The remaining bedrooms are all well-sized and share a modern family bathroom. Outside, the rear garden is bordered by mature hedging for privacy, with a lawn ideal for children and a patio area perfect for enjoying the afternoon sun. Located close to the heart of Horsell Village, the home is within easy reach of the M25, M3, and fast trains to London Waterloo. A great range of local shops, schools, and walks are nearby, with Woking town centre offering wider shopping and leisure facilities just a short distance away.

Property Ref: 2691978

Share:

Similar Properties

Horsell

5 Bedroom Detached House | £3,750pcm

Dating back to 1927, this secluded Art Deco home in an exclusive Horsell cul-de-sac offers privacy and elegance within g...

Woking, Surrey, GU22

5 Bedroom Detached House | £3,750pcm

This spacious five-bedroom detached home offers over 2,200 sq. ft. of living space. The standout feature is the large op...

Woodham

5 Bedroom Detached House | £3,750pcm

A beautifully presented five bedroom detached property situated in a highly sought-after private road within Woodham and...

Sheerwater, Woking, Surrey

5 Bedroom Detached House | £3,800pcm

A wonderful spacious 5 bedroom detached home with modern flexible living and generous entertaining spaces. This home rea...

Woking, Surrey, GU22

4 Bedroom Detached House | £3,800pcm

An impressive individually designed contemporary four bedroom family home. Extended and updated to an exceptionally high...

Bisley, Woking, Surrey, GU24

5 Bedroom Detached House | £3,850pcm

An executive home of real substance offered in excellent condition throughout. This family home boasts five generously s...

Seymours (Woking)

Woking, Surrey, GU21 6XR

01483 741 300

How much is your home worth?

Use our short form to request a valuation of your property.

Request a Valuation
©2026 The Guild of Property Professionals. All rights reserved. Terms and Conditions | Privacy Policy | Cookie Policy | Complaints Policy | Members Login
The Guild of Property Professionals Trading Address: 121 Park Lane, London W1K 7AG. GPEA Limited. Registered in England & Wales.  Company No: 02819824.  Registered Office Address: 2 St. Stephen's Court, St. Stephen's Road, Bournemouth, Dorset, England, BH2 6LA.  VAT Registration No: 576 8795 61
Book a Property Valuation Update Cookies Preferences