Woking, Surrey

£1,100pcm
Let Agreed
This property listing is now Let Agreed

1 Bedroom Retirement Property for rent in Woking

1 1 1
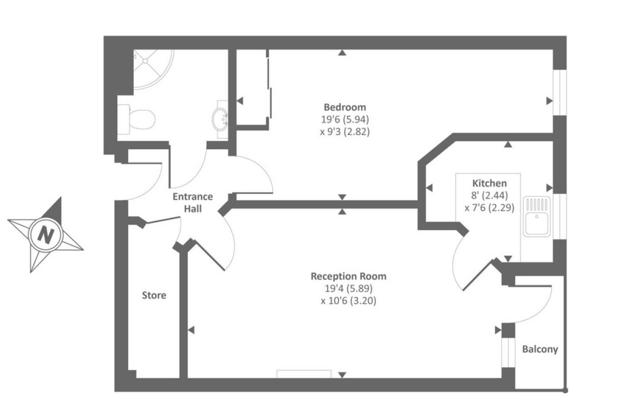
  • Stunning one bed retirement apartment
  • Over 60s only, lfit access
  • Private balcony with far-reaching views
  • In the heart of Woking town centre wardrobes
  • Large double bedrooms with fitted wardrobes
  • Modern shower room and kitchen
  • Living room with feature fireplace
  • Communal gardens and residents parking

A stunning one bedroom retirement apartment for the over 60's located on the second floor in the heart of Woking Town centre. Gated entry and communal gardens lead to the main entrance where residents can then enjoy a great sociable atmosphere with residents living and dining rooms great for getting together with friends and family. Lift access leads to the third floor where this bright apartment has been fully redecorated and re-carpeted offering a bright living room with feature fireplace and far-reaching views. The living space leads to a modern kitchen with a range of built in appliances including oven, hob and fridge-freezer. The bedroom is a large double with fitted wardrobes and is serviced by a modern shower room with low level WC, shower cubicle, and hand basin in vanity. A spacious airing cupboard and loft space are added bonuses offering ample storage. Further benefits include a private balcony residents parking, communal laundry room, guest suites for visitors, on site manager and heating costs included in service

Property Ref: 2698505

Share:

Similar Properties

Addlestone, Surrey, KT15

1 Bedroom Apartment | £1,100pcm

VIRTUAL VIEWING AVAILABLE Modern one bedroom apartment located in Addlestone within easy access of the M25. Living room,...

Knaphill

1 Bedroom Flat | £1,100pcm

This one bedroom flat offers large accommodation throughout. Benefitting from double bedroom, large lounge, separate kit...

New Haw, Surrey, KT15

1 Bedroom Flat | £1,100pcm

This one bedroom first floor flat is located in a quiet cul de sac in New Haw. It offers a double bedroom with built in...

Lightwater, Surrey, GU18

1 Bedroom Apartment | £1,125pcm

A one bedroom first floor maisonette situated in a peaceful cul-de-sac with plenty of living space. Featuring a double b...

West Byfleet

1 Bedroom Apartment | £1,125pcm

Constructed just a few years ago, this one bedroom apartment is situated approximately 200 yards from West Byfleet stati...

Knaphill

1 Bedroom Flat | £1,125pcm

A well presented first floor flat offering an open plan lounge/kitchen/diner. The flat offers a double bedroom with buil...

Seymours (Woking)

Woking, Surrey, GU21 6XR

01483 741 300

How much is your home worth?

Use our short form to request a valuation of your property.

Request a Valuation
©2026 The Guild of Property Professionals. All rights reserved. Terms and Conditions | Privacy Policy | Cookie Policy | Complaints Policy | Members Login
The Guild of Property Professionals Trading Address: 121 Park Lane, London W1K 7AG. GPEA Limited. Registered in England & Wales.  Company No: 02819824.  Registered Office Address: 2 St. Stephen's Court, St. Stephen's Road, Bournemouth, Dorset, England, BH2 6LA.  VAT Registration No: 576 8795 61
Book a Property Valuation Update Cookies Preferences