Woking, Surrey, GU22

£2,600pcm
Let Agreed
This property listing is now Let Agreed

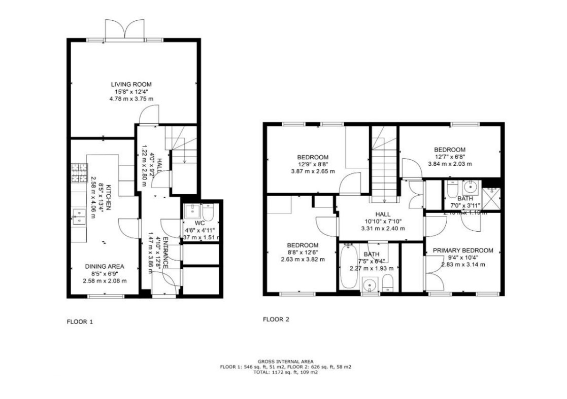
4 Bedroom Semi-Detached House for rent in Woking

1 4 2
  • Semi-Detached Family Home
  • Four Bedrooms
  • Spacious Kitchen/Diner
  • Separate Living Room
  • En-& Family Bathroom
  • Downstairs Cloakroom
  • Car Port & Driveway
  • Largest Garden In Development
  • Council Tax Band E
  • Security Deposit - £3,057

A well presented four bedroom semi-detached house, boasting the largest garden in the development. The property features a spacious kitchen/dining area, a separate living room leading out to the garden, plus a downstairs cloakroom. The first floor has four good sized bedrooms, an en-suite to master and a family bathroom. Externally the house has a large car port and a driveway.

Property Ref: 2479359

Share:

Similar Properties

Chertsy, Surrey, KT16

3 Bedroom Detached House | £2,600pcm

A newly redecorated detached home, located in a popular residential estate in Chertsey. The property comprises three dou...

West End, Woking, Surrey, GU24

4 Bedroom House | £2,600pcm

A well-proportioned four bedroom detached family home located on the popular Nursery Green development. The property off...

Woking, Surrey, GU21

3 Bedroom Detached House | £2,600pcm

A superbly presented detached townhouse sitting in a quiet courtyard development behind electric gates, in the centre of...

Brookwood, Woking, Surrey, GU24

3 Bedroom Semi-Detached House | £2,650pcm

A beautifully presented and extended semi-detached home, ideally located just 0.1 miles from Brookwood station. The prop...

Woking

4 Bedroom Town House | £2,650pcm

This beautiful presented three story modern townhouse is situated in a convenient location, approximately one mile from...

Woking

4 Bedroom Town House | £2,650pcm

This stunning four bedroom new build property includes a spacious kitchen/living room and downstairs cloakroom on the gr...

Seymours (Woking)

Woking, Surrey, GU21 6XR

01483 741 300

How much is your home worth?

Use our short form to request a valuation of your property.

Request a Valuation
©2026 The Guild of Property Professionals. All rights reserved. Terms and Conditions | Privacy Policy | Cookie Policy | Complaints Policy | Members Login
The Guild of Property Professionals Trading Address: 121 Park Lane, London W1K 7AG. GPEA Limited. Registered in England & Wales.  Company No: 02819824.  Registered Office Address: 2 St. Stephen's Court, St. Stephen's Road, Bournemouth, Dorset, England, BH2 6LA.  VAT Registration No: 576 8795 61
Book a Property Valuation Update Cookies Preferences