The Duchess, Woodstock

£2,495pcm
Let Agreed
This property listing is now Let Agreed

2 Bedroom Apartment for rent in Woodstock

2 2 1
  • Immaculately presented
  • Duplex apartment
  • Quaint shared courtyard
  • Two spacious double bedrooms
  • Gated, secure allocated parking

Woodstock is a charming market town steeped in history and surrounded by the natural beauty of the Oxfordshire countryside. Known for its picturesque streets and stunning Cotswold architecture, Woodstock offers a tranquil yet vibrant community atmosphere. The town is home to an array of independent shops, cosy cafes, and traditional pubs, providing residents with a delightful selection of local amenities. Woodstock is also renowned for its cultural attractions, including the world-famous Blenheim Palace, a UNESCO world Heritage Site, which offers beautiful gardens, historical exhibitions, and seasonal events. Additionally, the town boasts excellent transport links, making it easy to commute to nearby Oxford and beyond. Whether you are looking for a leisurely countryside walks or taste of local culture, Woodstock provides idyllic settling for a balanced lifestyle.

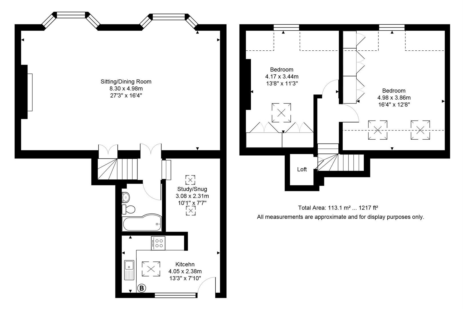
Property Information - Introducing " The Duchess" an immaculately presented two-bedroom duplex apartment available immediately on a short-let basis, perfect for a couple or single occupant looking to relocate or just simply explore the Cotswolds and beyond. Nestled in a prime location within Woodstock, this stunning property offers the perfect blend of modern comfort and historical charm.

Access to the property is through a quaint shared courtyard with seating to be enjoyed in those warmer spring and summer months. On entering the apartment you step through to a beautifully presented, fully equipped kitchen which has been designed for both functionality and style. From the Kitchen, you proceed to the grand open-plan living room, which combines dining and living space. The space is highlighted by an electric fireplace, creating a cosy ambiance. Large windows overlook the picturesque street, offering enchanting views of iconic Cotswold architecture. This homely space is further enhanced by unique and stylish lighting fixtures.

The Duchess spans two levels, with the upper floors comprising two spacious double bedrooms, each thoughtfully designed to provide comfort and tranquillity.

Contact agency for details about bills.

Additionally, the property offers gated, secure allocated parking for one car, providing peace of mind for residents. The shared courtyard features a lovely seating area, perfect for enjoying the warmer months.

The Duchess provides an exquisite living spaces that combines modern amenities with classic charm, making it an ideal stay for those seeking both comfort and convenience in a beautiful, historic setting.

Property Ref: 675436_33215569

Share:

Similar Properties

Bibury Road, Coln St Aldwyns, Cirencester

2 Bedroom Cottage | £2,495pcm

Coln St Aldwyns is a charming and peaceful village in the Cotswolds Area of Outstanding Natural Beauty, located between...

The Old Brewery

2 Bedroom House | £2,495pcm

Burford, often referred to as the 'Gateway to the Cotswolds', is a charming and historic market town steeped in characte...

The Garrett, Woodstock

2 Bedroom Apartment | £2,495pcm

Welcome to The Garrett a beautifully presented two bedroom duplex apartment located along Park Street, a prime Woodstock...

Hazel Cottage, Sandford St. Martin

3 Bedroom House | £2,500pcm

Hazel Bungalow is a charming 3-bedroom home situated in the idyllic village of Sandford St Martin. This rural setting of...

Bourton On The Hill

3 Bedroom House | £2,500pcm

Bourton-on-the-Hill is a picturesque Cotswold village renowned for its charming stone cottages, beautiful landscapes, an...

Annex at Oxleaze, Ducklington

2 Bedroom House | £2,500pcm

This stunning two-bedroom annex is located just outside the quaint village of Ducklington, just 1 mile from the market t...

The Cotswold Letting Agency (Burford)

Burford, Oxfordshire, OX18 4SN

01993684572

How much is your home worth?

Use our short form to request a valuation of your property.

Request a Valuation
©2025 The Guild of Property Professionals. All rights reserved. Terms and Conditions | Privacy Policy | Cookie Policy | Complaints Policy | Members Login
The Guild of Property Professionals Trading Address: 121 Park Lane, London W1K 7AG. GPEA Limited. Registered in England & Wales.  Company No: 02819824.  Registered Office Address: 2 St. Stephen's Court, St. Stephen's Road, Bournemouth, Dorset, England, BH2 6LA.  VAT Registration No: 576 8795 61
Book a Property Valuation Update Cookies Preferences